• Sledovat cenu
  •  

Zasílání upozornění emailem:

Rodinný dům, 127 m2 - Bří Čapků, Neratovice, okr. Mělník

Cena: 10 400 000 Kč
Stav:Volný
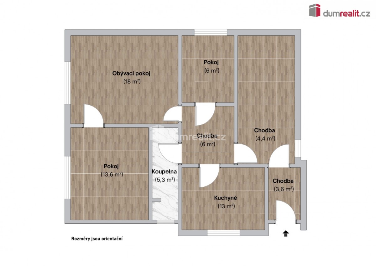
127 m2, cihlová, parcela 322 m2
Popis: Dumrealit. cz Vám nabízí Možný prodej domu o dvou bytových jednotkách 3+1, se sklepem, garáží, dílnou a studnou. Jde o zděný rodinný dům z roku 1982. Okna jsou plastová s izolační...m dvojsklem. Dům prošel částečnou rekonstrukcí. Koupelny, vytápění a elektřina v 2. NP (druhé nadzemní patro). Střecha je z alukrytu a vše je ještě pokryto modifikovaným plastem. Dům je vytápěn plynovým kotlem, vodu ohřívá elektrický bojler. V každém patře, které je propojené schodištěm se nachází byt 3+1. Dispozice domu umožňuje byty oddělit. Společné by zůstalo jen zádveří a spodní chodba. Lze tedy využívat dům jako dvougenerační. Ve dvou pokojích v 2. NP (druhé nadzemní patro) je instalovaná klimatizace. Pozemek je oplocený, vjezd uzavírá brána na el. pohon Hormann. Garáž má vrata sklopná. Stávající studna je využívána na automatickou závlahu pozemku. K dispozici je i menší dílna, sklad. Dům leží v blízkosti centra města s výbornou dostupností k občanské vybavenosti. Školky, školy či gymnázium a díle sportoviště - fotbalové hřiště, hokejový stadion či atletická dráha jen dokreslují kvalitu bydlení. Neratovice jsou velice dobře dostupné do Prahy či na Mělník. A to jak vlakem, autem či autobusem prostřednictvím PID. Pro bližší informace volejte makléře. Prohlídky jsou možné po dohodě. Ev. číslo: 652827. Energetický štítek: G
  • Vložení inzerátu:
    17.10.2025
  • Kód:
    3992348
  • Typ nemovitosti:
    Rodinný dům
  • Typ budovy:
    Cihlová
  • Zastavěná plocha:
    79 m2
  • Podlahová plocha:
    127 m2
  • Plocha parcely:
    322 m2
  • Balkón:
    Ano
  • Sklep:
    Ano
  • Stav objektu:
    Velmi dobrý
  • Energetická náročnost:
    G - Mimořádne nehospodárná
  • Nabídky v okolí:
  • Informace o obci:
    Obec Neratovice má 16414 obyvatel, z toho 11914 v produktivním věku.
    V obci se nachází pošta.
    V obci se nachází škola, popř. školka.
    V obci se nachází zdravotní zařízení.
    V obci je rozvod kanalizace.
    V obci je rozvod městské vody.
    V obci je rozvod plynu.
Lokalita: Bří Čapků , Neratovice, okres Mělník, Česká republika Bří Čapků, Neratovice, okr. Mělník

Kontakt

Ing. Jíří Šíma
Objednání prohlídky a více informací


Podobné nabídky v okolí


Volná pracovní místa ExpertPrace.cz
  • Objednání prohlídky a více informací
  •  
  • Poslat na e-mail
  •  

Zasílání odkazu na realitu emailem: