• Sledovat cenu
  •  

Zasílání upozornění emailem:

Pronájem nebytových prostor 14 m2 - Masarykova, Ústí nad Labem (již není v nabídce)

Cena: 4 999 Kč/měsíc
Stav:archiv
14 m2, cihlová
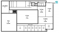
Popis: Reality 11 Vám zprostředkují podnájem kanceláře(poskytnout prostor pro audiovizualni tvorbu a IT. ) , která se nachází v centru města Ústí nad Labem, ulice Masarykova.
Nyní jsou k dispozici 4 kanceláře různých rozměrů.
D...ále je zde možnost využití společných prostor - koupelny, sociální zařízení WC a kuchyně.
Provozovatel požaduje jednu kauci+provize RK ve výši jednoho nájmu.
Volné ihned. Ev. číslo: 26669. Energetický štítek: G
  • Vložení inzerátu:
    20.12.2024
  • Kód:
    3900930
  • Typ nemovitosti:
    Kancelář
  • Typ budovy:
    Cihlová
  • Podlahová plocha:
    14 m2
  • Stav objektu:
    Velmi dobrý
  • Umístění objektu:
    Centrum
  • Energetická náročnost:
    G - Mimořádne nehospodárná
  • Nabídky v okolí:
  • Informace o obci:
    Obec Ústí nad Labem má 95464 obyvatel, z toho 66590 v produktivním věku.
    V obci se nachází pošta.
    V obci se nachází škola, popř. školka.
    V obci se nachází zdravotní zařízení.
    V obci je rozvod kanalizace.
    V obci je rozvod městské vody.
    V obci je rozvod plynu.

Podobné nabídky v okolí

Lokalita: Masarykova , Ústí nad Labem, okres Ústí nad Labem, Česká republika Masarykova, Ústí nad Labem