• Sledovat cenu
  •  

Zasílání upozornění emailem:

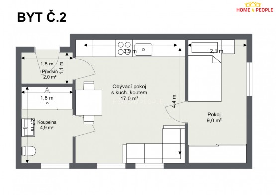
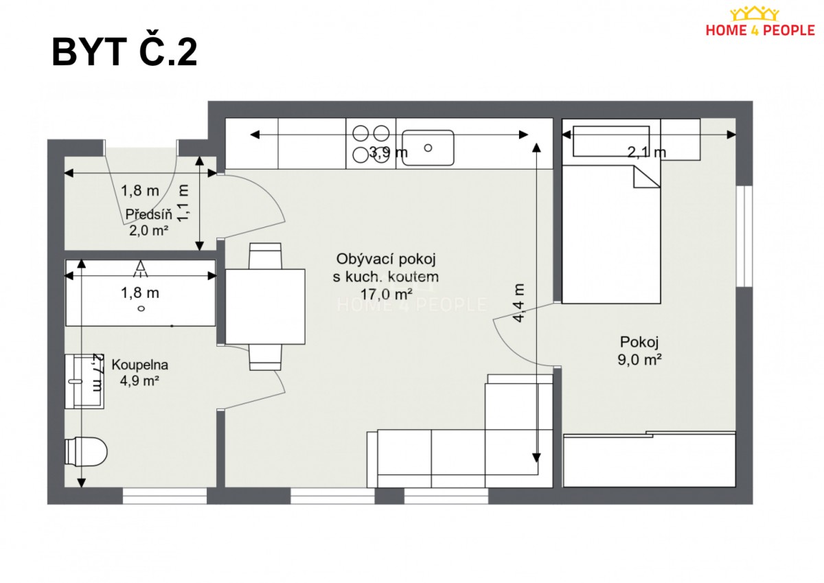
Pronájem bytu 2+kk, 33 m2 - Bylany , Chrášťany, okr. Kolín

Cena: 13 500 Kč/měsíc
Stav:Volný
2+kk, 33 m2, cihlová, OV, 2. podlaží
Popis: +popl. 5000 Kč, + kauce, provize RK. Zprostředkujeme Vám ve výhradním zastoupení majitele pronájem posledního bytu 2+kk, 33m² s malou zahrádkou v přízemí domu, která bude s...polečná pro všechny bytové jednotky v domě, v obci Bylany u Českého Brodu. Byt. jednotka momentálně prošla kompletní rekonstrukcí. Úplně nová kuchyňská linka včetně myčky. Jinak je byt bez vybavení. V koupelně najdete sprchový kout, umyvadlo a sociální zařízení WC. Hledáte klid v dojezdové vzdálenosti do Prahy, Českého Brodu či Kolína? Neváhejte mě kontaktovat pro více informací nebo prohlídku. Byt je volný od 1. 12. 2025 nebo dle dohody. Pronajímatel si vyhrazuje právo vybrat zájemce na základě jím zvolených kritérií. Ev. číslo: 32026. Energetický štítek: G (1 kWh/m2/rok).
Lokalita: Bylany , Chrášťany, okres Kolín, Česká republika Bylany , Chrášťany, okr. Kolín, Středočeský kraj

Kontakt

Martina Novotná (Voslářová)
Objednání prohlídky a více informací


Podobné nabídky v okolí


Volná pracovní místa ExpertPrace.cz
  • Objednání prohlídky a více informací
  •  
  • Poslat na e-mail
  •  

Zasílání odkazu na realitu emailem: