Pronájem bytu 3+kk, 44 m2 - Bylany , Chrášťany, okr. Kolín (již není v nabídce)
Cena:
16 000 Kč/měsíc
Stav:archiv
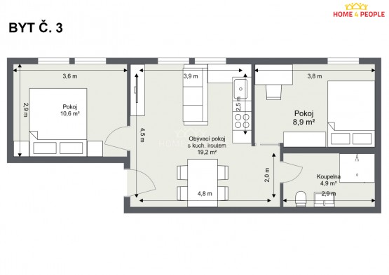
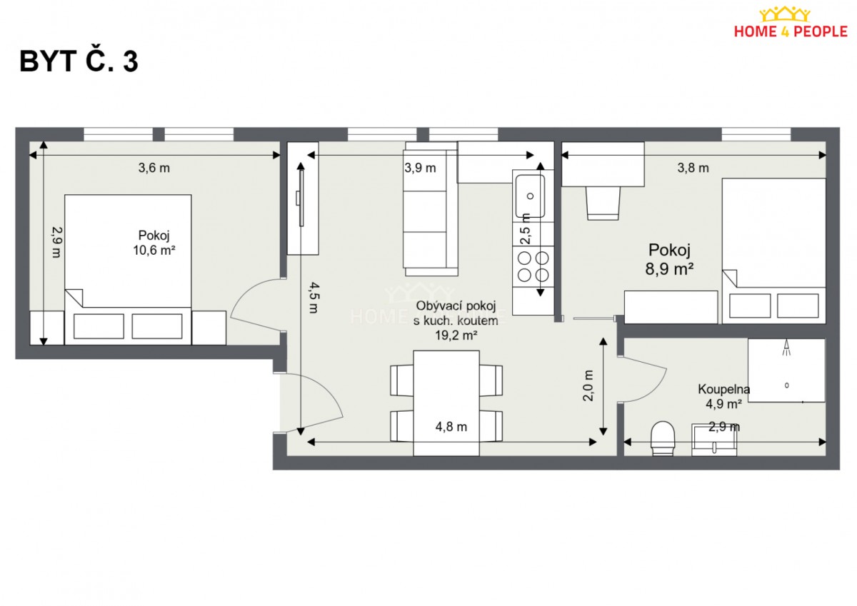
3+kk, 44 m2, cihlová, OV, 2. podlaží
Popis:
poplatky 5. 000, - Kč (elektřina, voda, popelnice) pro dvě osoby, provize RK . ve výhradním zastoupení majitele pronájem bytu 3+kk, 44m² v obci Bylany u Českého Brodu s mal...ou zahrádkou v přízemí domu, která bude společná pro všechny bytové jednotky v domě. Byt. jednotka momentálně prošla kompletní rekonstrukcí. Úplně nová kuchyňská linka včetně myčky. Jinak je byt bez vybavení. V koupelně najdete sprchový kout, umyvadlo a sociální zařízení WC. Hledáte klid v dojezdové vzdálenosti do Prahy, Českého Brodu či Kolína? Neváhejte mě kontaktovat pro více informací nebo prohlídku. Byt je volný od 15. 10. 2025 nebo dle dohody. Pronajímatel si vyhrazuje právo vybrat zájemce na základě jím zvolených kritérií. Ev. číslo: 31944. Energetický štítek: F (1 kWh/m2/rok).
- Vložení inzerátu:
24.11.2025
- Kód:
3993958
- Typ nemovitosti:
Byt
- Typ budovy:
Cihlová
- Dispozice:
3+kk
- Vlastnictví:
OV
- Podlaží:
2
- Podlahová plocha:
44 m2
- Stav objektu:
Dobrý
- Energetická náročnost:
F - Velmi nehospodárná
- Ukazatel náročnosti:
1 kWh/m2
- Nabídky v okolí: