Prodej restaurace 246 m2 - Lublaňská 5, Praha 2, Vinohrady, Praha (již není v nabídce)
Cena:
12 000 000 Kč
Stav:archiv
246 m2, cihlová
Popis:
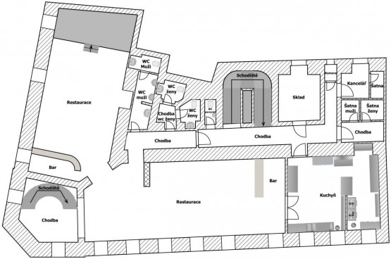
Prodej restaurace nedaleko stanice metra "C" I. P. Pavlova. Jedná se o suterénní prostory s celkovou výměrou 246 m2 (Vstup je z přízemí, pak se jde po schodech dolů a restaurace je v suterénu). Prodej nemovito...sti do osobního vlastnictví katastrem nemovitostí od fyzické osoby.
- Vložení inzerátu:
27.10.2021
- Kód:
RM1625
- Typ nemovitosti:
Restaurace
- Typ budovy:
Cihlová
- Podlahová plocha:
246 m2
- Plocha parcely:
246 m2
- Stav objektu:
Po rekonstrukci
- Bezbariérový přístup:
Ano
- Nabídky v okolí: