Prodej restaurace 203 m2 - Lublaňská 5, Praha 2, Vinohrady, Praha (již není v nabídce)
Cena:
10 000 000 Kč
Stav:archiv
203 m2, cihlová
Popis:
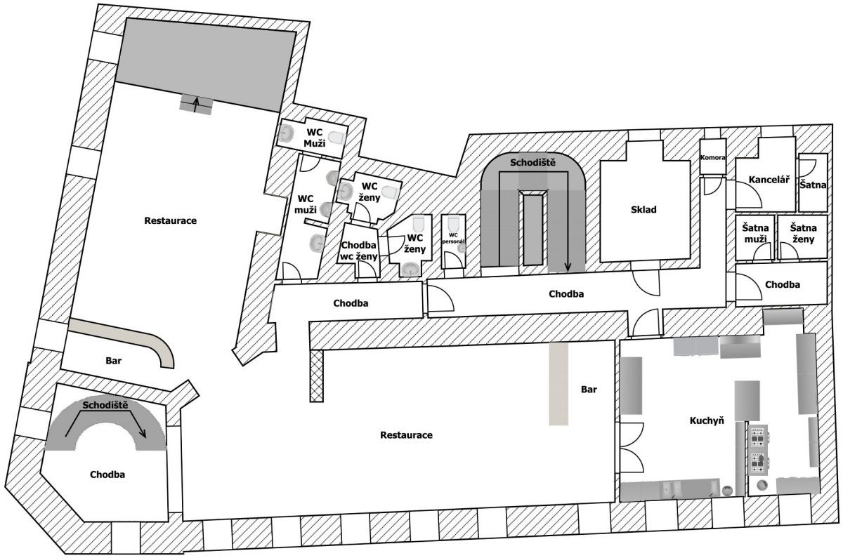
Prodej restaurace v postranní ulici nedaleko I. P. Pavlova. Jedná se o suteréní prostory s výměrou 203 m2 (Vstup z přízemí, restaurace v suterénu). Prodej nemovitosti do osobního vlastnictví. Restaurace je pr...onajatá nájemníkovi, který má zájem o dlouhodobý pronájem. Vhodné jako investiční nemovitost s čistým výnosem 5 % ročně.
- Vložení inzerátu:
12.7.2019
- Kód:
RM1560
- Typ nemovitosti:
Restaurace
- Typ budovy:
Cihlová
- Podlahová plocha:
203 m2
- Plocha parcely:
203 m2
- Stav objektu:
Po rekonstrukci
- Bezbariérový přístup:
Ano
- Nabídky v okolí: