Prodej restaurace 246 m2 - Lublaňská 5, Praha 2, Vinohrady, Praha (již není v nabídce)
Cena:
12 000 000 Kč
Stav:archiv
246 m2, cihlová
Popis:
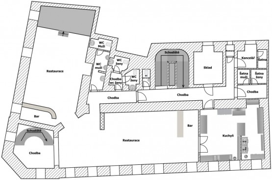
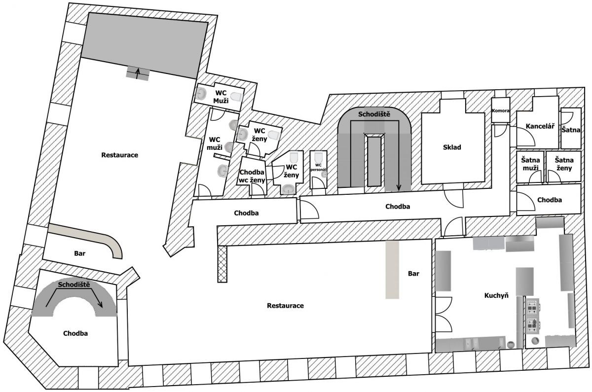
Prodej restaurace nedaleko stanice metra "C" I. P. Pavlova. Jedná se o suteréní prostory s výměrou 246, 2 m2 (Vstup z přízemí, pak po schdech dolů a restaurace je v suterénu). Prodej nemovitosti do osobního vl...astnictví katastrem nemovitostí. Restaurace je nyní pronajatá nájemníkovi za 35 000 Kč měsíčně + energie, čínská restaurace, s tříměsíční výpovědní dobou. Nemovitost lze financovat i hypotečním úvěrem, kde při 30 % z vlastních zdrojů stačí bance doložit jako příjem současný výnos z pronájmu, s financováním pomůžeme.
- Vložení inzerátu:
28.5.2021
- Kód:
RM1623
- Typ nemovitosti:
Restaurace
- Typ budovy:
Cihlová
- Podlahová plocha:
246 m2
- Plocha parcely:
246 m2
- Stav objektu:
Po rekonstrukci
- Bezbariérový přístup:
Ano
- Nabídky v okolí: