• Sledovat cenu
  •  

Zasílání upozornění emailem:

Prodej bytu 4+kk, 203 m2 - Březová, Brno, okr. Brno-město (již není v nabídce)

Cena: 0 Kč
Stav:archiv
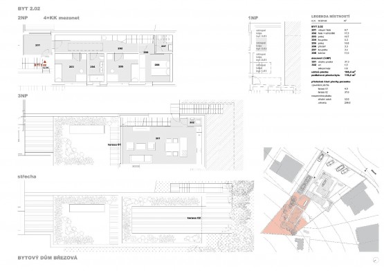
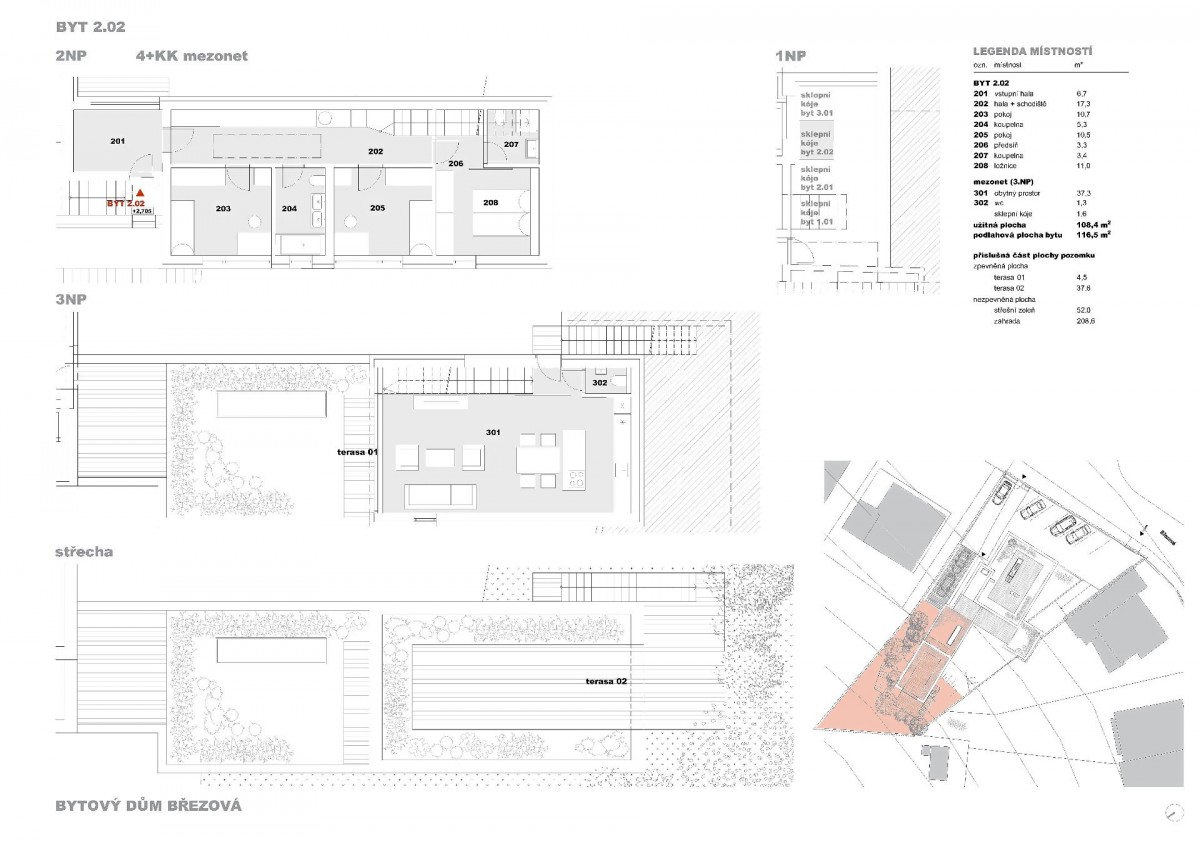
4+kk, 203 m2, cihlová, OV, 1. podlaží
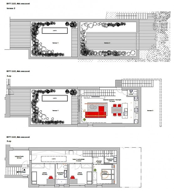
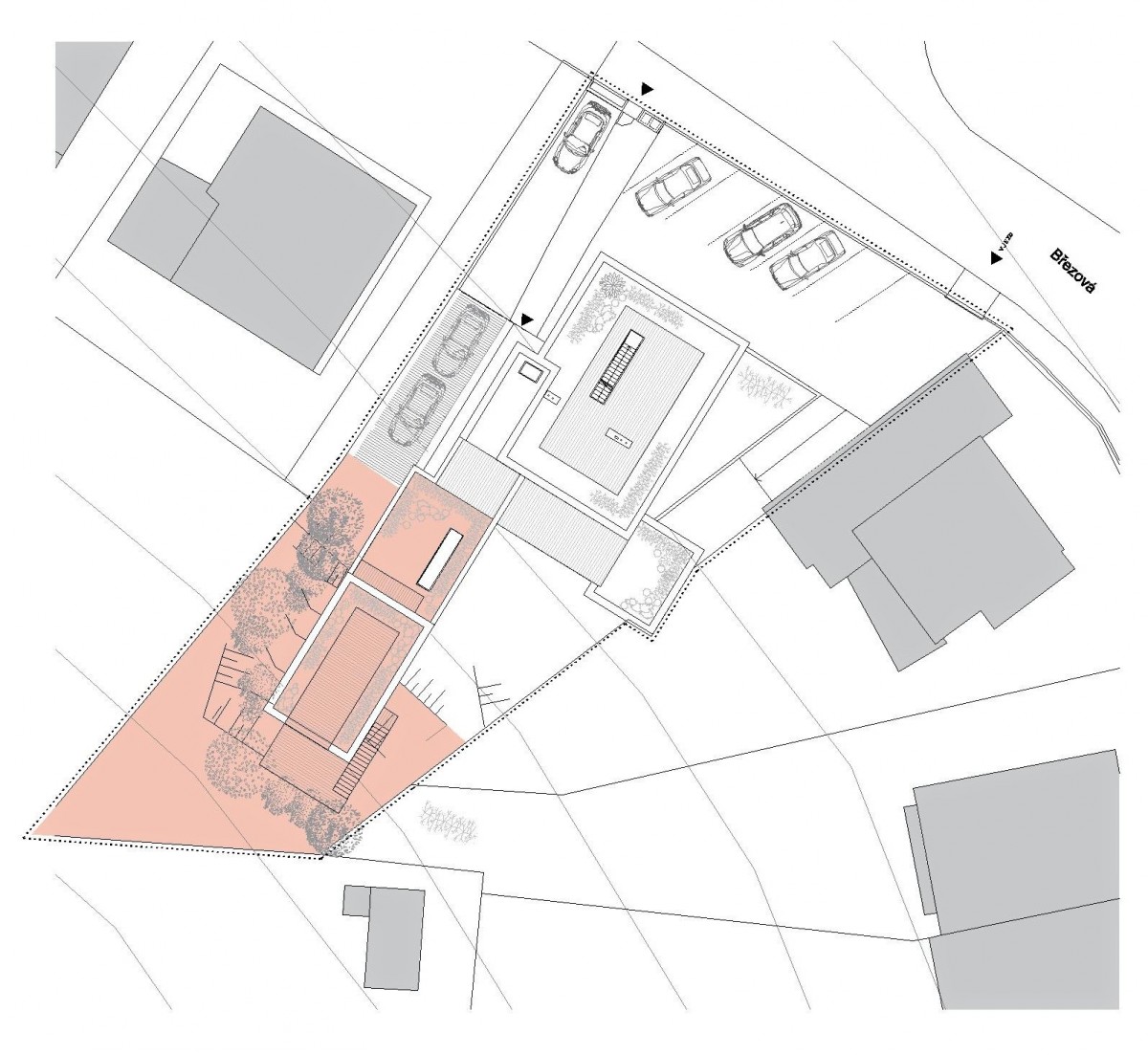
Popis: Prodej nadstandardní novostavby mezonetového bytu 4+kk se střešní terasou a velkou vlastní zahradou v Brně – Jundrov, ulice Březová. Jedná se o moderně navržený projekt pouze 4... bytových jednotek ve velice žádané a klidné vilové lokalitě města Brna. Bytový dům je citlivě umístěn mezi okolní zástavbu rodinných domů, díky čemuž je umocněna atmosféra rodinného bydlení. K bytové jednotce o čisté užitné výměře 108, 4 m2 náleží dvě terasy o výměře v součtu 42, 1 m2 + střešní zeleň 52 m2, vlastní pozemek – zahrada o výměře 208, 6 m2 a dvě parkovací stání. Byt. jednotka je řešena formou mezonetu, je situována v 2. a 3. NP (třetí nadzemní patro) (první a druhé patro) + střešní terasa, v zadní nově vystavěné zadní části domu. V prvním patře jsou obytné pokoje a sociální zázemí bytu, jeden z pokojů je volně přístupný na část zahrady. Ve druhém patře prostorný obývací pokoj s kuchyňským koutem, s přístupem na terasu, dále z části zahrady je venkovním schodištěm přístup na střešní terasu, na kterou navazuje zbytek pozemku. Netradiční dispozice bytu nabízí dvě koupelny, z každého podlaží přístup na část vlastní zahrady, ze střešní terasy pak úžasný výhled do okolí. Velký důraz byl kladen na maximální proslunění interiéru. Samozřejmostí je vysoký standard stavebních prvků, zařizovacích předmětů a vybavení bytu. V současné chvíli probíhá výstavba, jejíž předpokládané dokončení je naplánováno na červen roku 2023. Kupec si tudíž ovlivní a sám vybere druhy jednotlivých povrchů a zařizovací předmětů dle vlastní preference a vkusu. Tento atraktivní projekt je ojedinělou příležitostí koupě novostavby bytu v jedné z nejžádanějších vilových lokalit města Brna s vlastní zahradou. Byl naprojektován s maximální snahou o zasazení netradiční architektury do okolní zeleně s využitím nadstandardních materiálů.

Dispozice:
1. patro:
Vstupní hala 6, 7 m2.
Schodišťová hala + schodiště 17, 3 m2.
Pokoj 10, 7 m2.
Koupelna s vanou a sociální zařízení WC 5, 3 m2.
Pokoj 10, 5 m2.
Předsíň 3, 3 m2.
Koupelna se sprchovým koutem a sociální zařízení WC 3, 4 m2.
Ložnice 11, 0 m2.
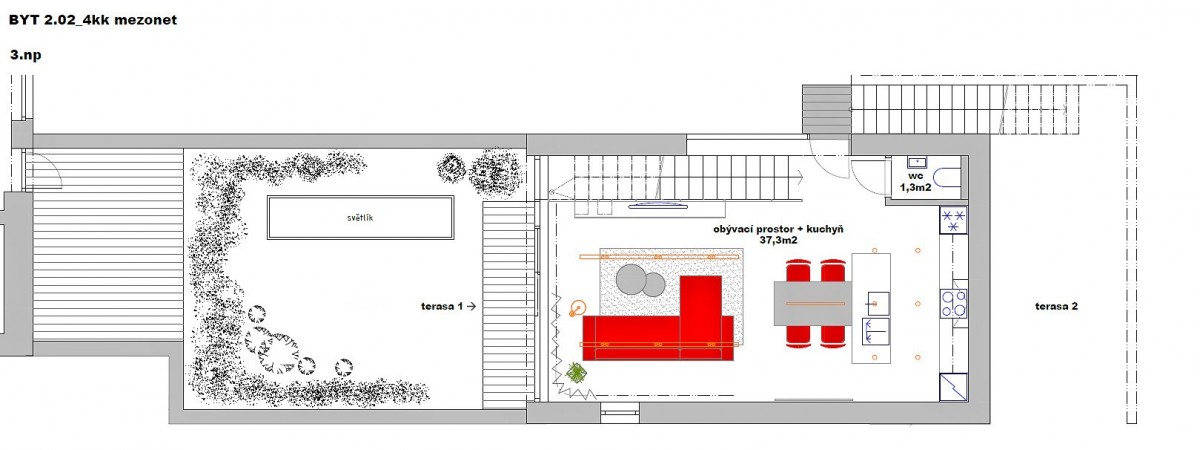
2. patro:
Obývací pokoj s kuchyňským koutem 37, 3 m2.
Samostatné sociální zařízení WC 1, 4 m2.
Terasa 4, 5 m2.
3. patro:
Střešní terasa 37, 6 m2.
Dále k bytu patří:
Sklepní kóje 1, 6 m2.
Zahrada 208, 6 m2.
Střešní zeleň 52 m2.
2 x Parkovací stání – 2 x 18 m2.

Stav a vybavení:
Okna a francouzské dveře hliníkové antracitové s izolačním trojsklem.
Podlaha – keramická dlažba + dřevěná dýhovaná.
Vstupní dveře bezpečnostní hliníková, interiérové dveře velkoformátové se skrytou zárubní, dřevěné lakované.
Obklady a zařizovací předměty Villeroy & Boch, Kludi atd.
Vytápění vlastním elektrickým kotlem se zásobníkem TUV, podlahové teplovodní vytápění.
V kuchyni příprava elektřiny, vody a odpadu pro kuchyňskou linku, v technické místnosti příprava pro pračku a sušičku.
Kuchyňská linka, svítidla, klimatizace, exteriérové žaluzie či vestavné skříně - nejsou součástí standardního provedení, lze se však na jejich dodání individuálně dohodnout.
  • Vložení inzerátu:
    19.1.2023
  • Kód:
    00107
  • K dispozici od:
    0.0.0
  • Typ nemovitosti:
    Byt
  • Typ budovy:
    Cihlová
  • Dispozice:
    4+kk
  • Vlastnictví:
    OV
  • Podlaží:
    1
  • Podlahová plocha:
    203 m2
  • Lodžie:
    Ano
  • Terasa:
    Ano
  • Sklep:
    Ano
  • Stav objektu:
    Novostavba
  • Umístění objektu:
    Klidná část
  • Telekomunikace:
    Internet, Kabelová televize, Kabelové rozvody
  • Voda:
    dálkový vodovod
  • Elektřina:
    230 V
  • Doprava:
    MHD
  • Topeni:
    ústřední elektrické
  • Odpad:
    kanalizace
  • Komunikace:
    asfaltová
  • Energetická náročnost:
    B - Velmi úsporná
  • Podle vyhlášky:
    c. 78/2013 Sb.
  • Ukazatel náročnosti:
    121 kWh/m2
  • Nabídky v okolí:
  • Informace o obci:
    Obec Brno má 371371 obyvatel, z toho 256490 v produktivním věku.
    V obci se nachází pošta.
    V obci se nachází škola, popř. školka.
    V obci se nachází zdravotní zařízení.
    V obci je rozvod kanalizace.
    V obci je rozvod městské vody.
    V obci je rozvod plynu.

Podobné nabídky v okolí

Lokalita: Březová , Brno, okres Brno-město, Česká republika Březová, Brno, okr. Brno-město