• Sledovat cenu
  •  

Zasílání upozornění emailem:

Prodej bytu 4+kk, 202 m2 - Březová 571, Brno, okr. Brno-město (již není v nabídce)

Cena: 0 Kč
Stav:archiv
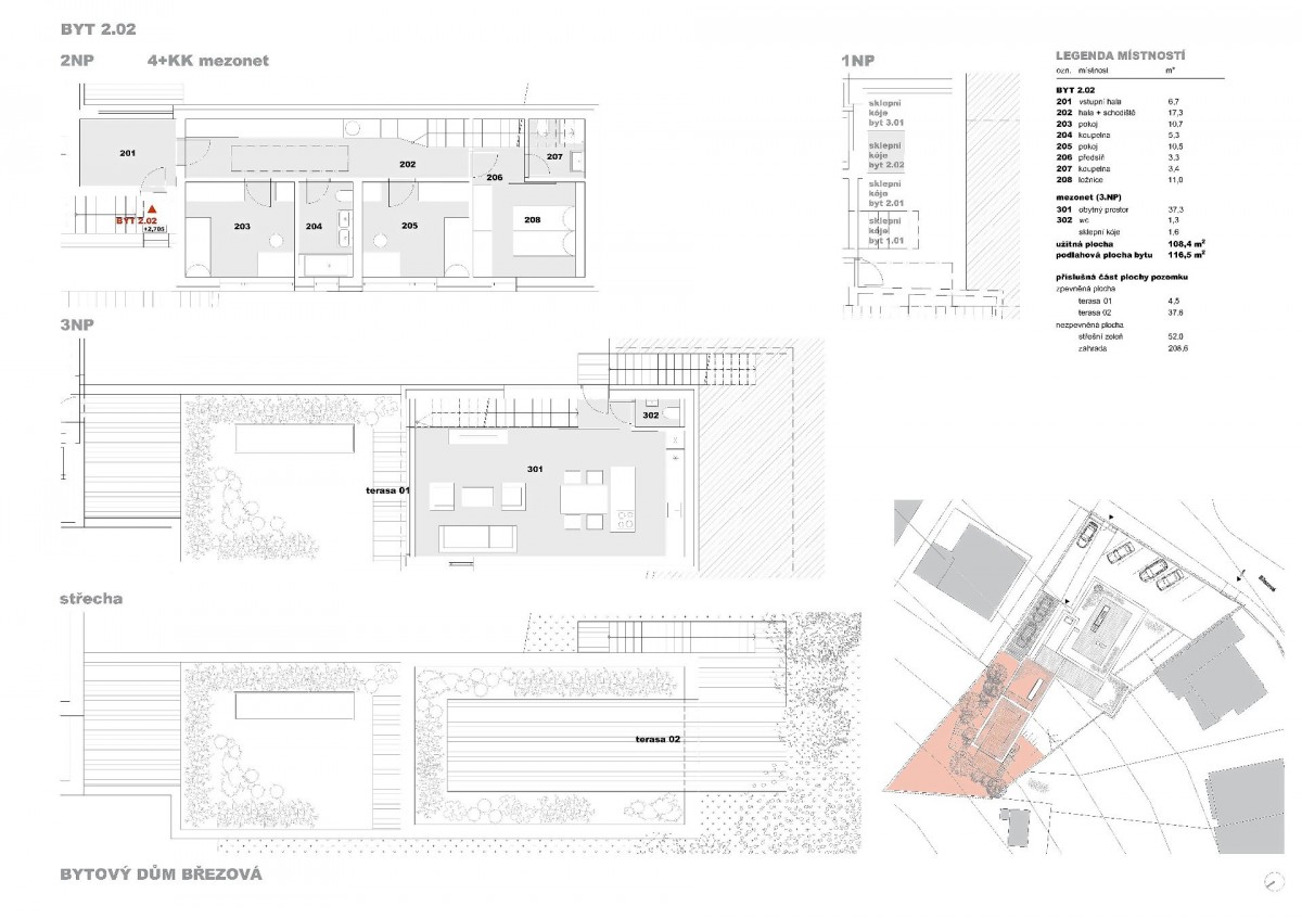
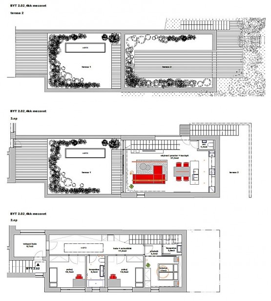
4+kk, 202 m2, cihlová, OV, 1. podlaží
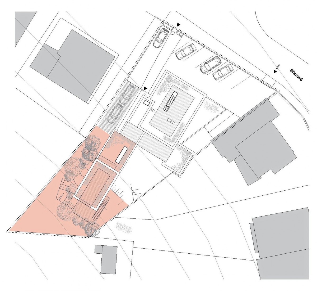
Popis: Prodej nadstandardní novostavby mezonetového bytu 4+kk se střešní terasou a velkou vlastní zahradou v Brně – Jundrov, ulice Březová. Jedná se o moderně navržený projekt pouze 4... bytových jednotek ve velice žádané a klidné lokalitě města Brna. Bytový dům je citlivě umístěn mezi okolní zástavbu rodinných domů, díky čemuž je umocněna atmosféra rodinného bydlení. K bytové jednotce o čisté užitné výměře 108, 4 m2 náleží dvě terasy o výměře v součtu 42, 1 m2 + střešní zeleň 52 m2, vlastní pozemek – zahrada o výměře 208, 6 m2 a dvě parkovací stání. Byt. jednotka je řešena formou mezonetu, je situována v 2. a 3. NP (třetí nadzemní patro) (první a druhé patro) + střešní terasa. V prvním patře jsou umístěny obytné pokoje a zázemí bytu, ve druhém patře prostorný obývací pokoj s kuchyňským koutem, s přístupem na terasu, dále venkovní schodiště vedoucí na střešní terasu. Netradiční dispozice bytu nabízí dvě koupelny, dostatek úložného prostoru, vlastní prostornou zahradu a dvě terasy s úžasným výhledem. Velký důraz byl rovněž kladen na maximální proslunění interiéru. Samozřejmostí je vysoký standard stavebních prvků, zařizovacích předmětů a vybavení bytu. V současné chvíli probíhá výstavba, jejíž předpokládané dokončení je naplánováno na konec roku 2022. Kupec si tudíž ovlivní a sám vybere druhy jednotlivých povrchů a zařizovací předmětů dle vlastní preference a vkusu. Tento atraktivní projekt je ojedinělou příležitostí koupě novostavby bytové jednotky v jedné z nejžádanějších vilových lokalit města Brna s vlastní zahradou. Byl naprojektován s maximální snahou o zasazení netradiční architektury do okolní zeleně s využitím nadstandardních materiálů. Nachází se na úpatí místního lesa – obory Holedná, přitom stále v relativní blízkosti centra města.

DISPOZICE:
1. patro:
Vstupní hala 6, 7 m2.
Schodišťová hala + schodiště 17, 3 m2.
Pokoj 10, 7 m2.
Koupelna s vanou a sociální zařízení WC 5, 3 m2.
Pokoj 10, 5 m2.
Předsíň 3, 3 m2.
Koupelna se sprchovým koutem a sociální zařízení WC 3, 4 m2.
Ložnice 11, 0 m2.
2. patro:
Obývací pokoj s kuchyňským koutem 37, 3 m2.
Samostatné sociální zařízení WC 1, 4 m2.
Terasa 4, 5 m2.
3. patro:
Střešní terasa 37, 6 m2.
Dále k bytu patří:
Sklepní kóje 1, 6 m2.
Zahrada 208, 6 m2.
Střešní zeleň 52 m2.
2 x Parkovací stání – 2 x 18 m2.

STAV A VYBAVENÍ:
Okna a francouzské dveře hliníkové antracitové s izolačním trojsklem.
Podlaha – keramická dlažba + dřevěná dýhovaná.
Vstupní dveře bezpečnostní hliníková, interiérové dveře velkoformátové se skrytou zárubní, dřevěné lakované.
Obklady a zařizovací předměty VILLEROY & BOCH, KLUDI.
Vytápění vlastním elektrickým kotlem se zásobníkem TUV, podlahové teplovodní vytápění.
V kuchyni příprava elektřiny, vody a odpadu pro kuchyňskou linku, v technické místnosti příprava pro pračku a sušičku.
Kuchyňská linka, svítidla, klimatizace, exteriérové žaluzie či vestavné skříně - nejsou součástí standardního provedení, lze se však na jejich dodání individuálně dohodnout.
  • Vložení inzerátu:
    25.10.2022
  • Kód:
    00080
  • K dispozici od:
    0.0.0
  • Typ nemovitosti:
    Byt
  • Typ budovy:
    Cihlová
  • Dispozice:
    4+kk
  • Vlastnictví:
    OV
  • Podlaží:
    1
  • Podlahová plocha:
    202 m2
  • Lodžie:
    Ano
  • Terasa:
    Ano
  • Sklep:
    Ano
  • Stav objektu:
    Novostavba
  • Umístění objektu:
    Klidná část
  • Telekomunikace:
    Internet, Kabelová televize, Kabelové rozvody
  • Voda:
    dálkový vodovod
  • Elektřina:
    230 V
  • Doprava:
    MHD
  • Topeni:
    ústřední elektrické
  • Odpad:
    kanalizace
  • Komunikace:
    asfaltová
  • Energetická náročnost:
    B - Velmi úsporná
  • Podle vyhlášky:
    c. 78/2013 Sb.
  • Ukazatel náročnosti:
    120 kWh/m2
  • Nabídky v okolí:
  • Informace o obci:
    Obec Brno má 371371 obyvatel, z toho 256490 v produktivním věku.
    V obci se nachází pošta.
    V obci se nachází škola, popř. školka.
    V obci se nachází zdravotní zařízení.
    V obci je rozvod kanalizace.
    V obci je rozvod městské vody.
    V obci je rozvod plynu.

Podobné nabídky v okolí

Lokalita: Březová 571, Brno, okres Brno-město, Česká republika Březová 571, Brno, okr. Brno-město