• Sledovat cenu
  •  

Zasílání upozornění emailem:

Prodej bytu 4+kk, 145 m2 - Březová, Brno, okr. Brno-město (již není v nabídce)

Cena: 0 Kč
Stav:archiv
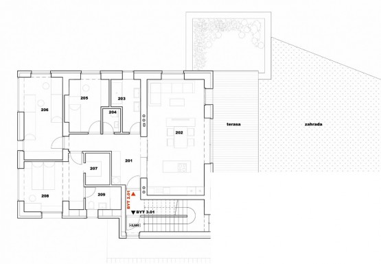
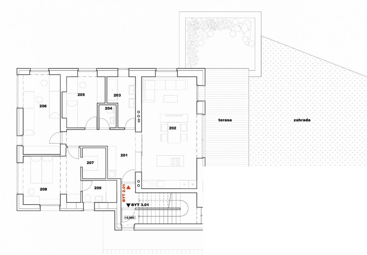
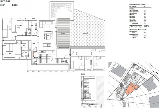
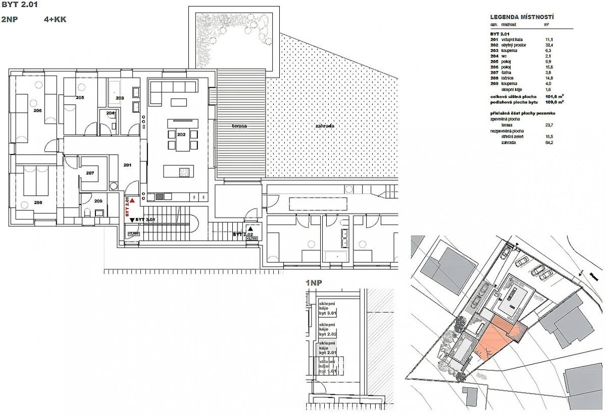
4+kk, 145 m2, cihlová, OV, 2. podlaží
Popis: Prodej nadstandardní novostavby bytu 4+kk s terasou navazující na vlastní zahradu v Brně – Jundrov, ulice Březová. Jedná se o moderně navržený projekt pouze 4 bytových jednotek... ve velice žádané a klidné vilové lokalitě města Brna. Bytový dům je citlivě umístěn mezi okolní zástavbu rodinných domů, díky čemuž je umocněna atmosféra rodinného bydlení. K bytové jednotce o čisté užitné výměře 101, 6 m2 náleží vlastní část pozemku – zahrada o výměře 84, 2 m2 navazující na prostornou terasu o velikosti 23, 7 m2 a střešní zeleň 18, 5 m2. V ceně dvě parkovací stání v uzamykatelném dvorním traktu. Byt. jednotka se situována v prvním patře - 2. NP (druhé nadzemní patro), z bytu vstup na terasu a vlastní pozemek přímo z obývacího pokoje. Velkou výhodou je netradiční dispozice bytu, která nabízí komfortní výměru obývacího pokoje s kuchyňským koutem, dvě koupelny a spoustu úložného prostoru v bytě. Velký důraz byl rovněž kladen na maximální proslunění interiéru. Samozřejmostí je vysoký standard stavebních prvků, zařizovacích předmětů a vybavení bytu. Vytápění a ohřev TUV bude řešeno elektrickým kotlem a tepelným čerpadlem s napojením na teplovodní podlahové topení, což zajistí velice nízké provozní náklady. Fotovoltaické panely budou napojeny na společnou nabíjecí stanici elektromobilů. Tento atraktivní projekt je ojedinělou příležitostí koupě novostavby bytové jednotky v jedné z nejžádanějších vilových lokalit města Brna. Byl naprojektován s maximální snahou o zasazení netradiční architektury domu do okolní zeleně s využitím nadstandardních materiálů. Nachází se na úpatí místního lesa – obory Holedná, přitom stále v relativní blízkosti centra města.

Dispozice:
Obývací pokoj s kuchyňským koutem 32, 4 m2.
Vstupní hala 11, 1 m2.
Pokoj 15, 6 m2.
Pokoj 9, 9 m2.
Ložnice 14, 8 m2.
Šatna 3, 8 m2.
Koupelna s vanou 6, 3 m2.
Koupelna se sprchovým koutem a sociální zařízení WC 4 m2.
Samostatné sociální zařízení WC 2, 1 m2.
Sklepní kóje 1, 6 m2.
Terasa 23, 7 m2.
Zahrada 84, 2 m2.
Střešní zeleň 18, 5 m2.
Parkovací stání 2 x 18 m2.

Stav a vybavení:
Okna a francouzské dveře hliníkové antracitové s izolačním trojsklem.
Podlaha – keramická dlažba + dřevěná dýhovaná.
Vstupní dveře bezpečnostní hliníková, interiérové dveře velkoformátové se skrytou zárubní, dřevěné lakované.
Obklady a zařizovací předměty Villeroy & Boch, Kludi atd.
Vytápění vlastním elektrickým kotlem se zásobníkem TUV, podlahové teplovodní vytápění, tepelné čerpadlo.
V kuchyni příprava elektřiny, vody a odpadu pro kuchyňskou linku, v koupelně příprava pro pračku a sušičku.
Kuchyňská linka, svítidla, klimatizace, exteriérové žaluzie či vestavné skříně - nejsou součástí standardního provedení, lze se však na jejich dodání individuálně dohodnout.

Více o městské části Brno – Jundrov:
Jundrov je vyhledávanou a oblíbenou lokalitou pro blízkost okolní přírody, přitom s kompletní občanskou vybaveností a výbornou dopravní dostupností. Rozkládá se na pravém břehu řeky Svratky, na úpatí obory Holedná, což ocení nejenom milovníci klidných procházek.
  • Vložení inzerátu:
    19.1.2023
  • Kód:
    00108
  • K dispozici od:
    0.0.0
  • Typ nemovitosti:
    Byt
  • Typ budovy:
    Cihlová
  • Dispozice:
    4+kk
  • Vlastnictví:
    OV
  • Podlaží:
    2
  • Podlahová plocha:
    145 m2
  • Terasa:
    Ano
  • Sklep:
    Ano
  • Stav objektu:
    Novostavba
  • Umístění objektu:
    Klidná část
  • Telekomunikace:
    Internet, Kabelová televize, Kabelové rozvody
  • Voda:
    dálkový vodovod
  • Elektřina:
    230 V
  • Doprava:
    MHD
  • Topeni:
    ústřední elektrické
  • Odpad:
    kanalizace
  • Komunikace:
    asfaltová
  • Energetická náročnost:
    B - Velmi úsporná
  • Podle vyhlášky:
    c. 78/2013 Sb.
  • Ukazatel náročnosti:
    121 kWh/m2
  • Nabídky v okolí:
  • Informace o obci:
    Obec Brno má 371371 obyvatel, z toho 256490 v produktivním věku.
    V obci se nachází pošta.
    V obci se nachází škola, popř. školka.
    V obci se nachází zdravotní zařízení.
    V obci je rozvod kanalizace.
    V obci je rozvod městské vody.
    V obci je rozvod plynu.

Podobné nabídky v okolí

Lokalita: Březová , Brno, okres Brno-město, Česká republika Březová, Brno, okr. Brno-město