• Sledovat cenu
  •  

Zasílání upozornění emailem:

Prodej bytu 3+kk, 118 m2 - Březová 1, Brno, okr. Brno-město (již není v nabídce)

Cena: 0 Kč
Stav:archiv
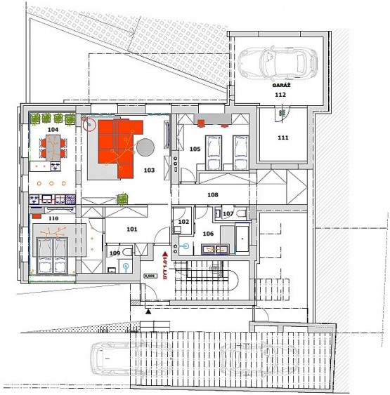
3+kk, 118 m2, cihlová, OV, 1. podlaží
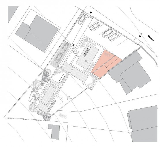
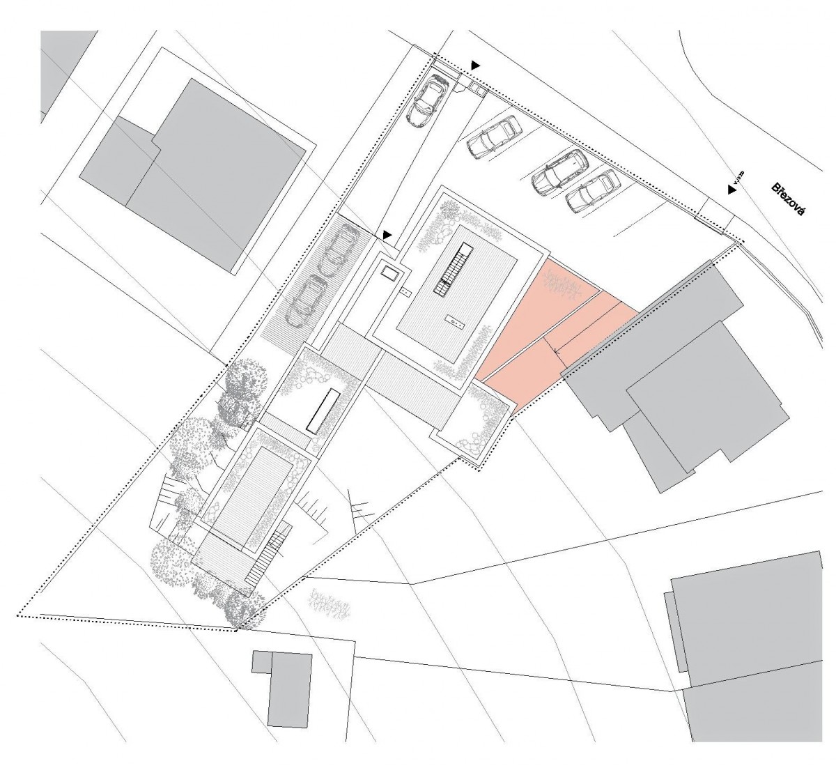
Popis: Prodej nadstandardní novostavby bytu 3+kk v Brně – Jundrov, ulice Březová. Jedná se o moderně navržený projekt pouze 4 bytových jednotek ve velice žádané a klidné lokalitě měst...a Brna. Bytový dům je citlivě umístěn mezi okolní zástavbu rodinných domů. K bytové jednotce o čisté užitné výměře 118, 3 m2 náleží vlastní garáž, další parkovací stání před domem a vlastní část pozemku (příjezd ke garáži + zahrada) o výměře 70, 7 m2. Byt. jednotka je situována v 1. NP (první nadzemní patro) (přízemí), umožňující vstup na vlastní pozemek přímo z obývacího pokoje. Velkou výhodou je netradiční dispozice bytu, která nabízí dvě koupelny, dostatek úložného prostoru v bytě a prostornou technickou místnost přístupnou z garáže. V současné chvíli probíhá výstavba, jejíž předpokládané dokončení je naplánováno na květen roku 2022. Kupec si tudíž ovlivní a sám vybere druhy jednotlivých povrchů a zařizovací předmětů dle vlastní preference a vkusu. Tento atraktivní projekt je ojedinělou příležitostí koupě novostavby bytové jednotky v jedné z nejžádanějších vilových lokalit města Brna. Byl naprojektován s maximální snahou o zasazení netradiční architektury domu do okolní zeleně s využitím nadstandardních materiálů. Nachází se na úpatí místního lesa – obory Holedná, přitom stále v relativní blízkosti centra města.

Dispozice:
- Obývací pokoj 28, 3 m2.
- Kuchyňský kout s jídelnou 14, 4 m2.
- Předsíň 9, 0 m2.
- Pokoj 13, 7 m2.
- Ložnice 16, 0 m2.
- Koupelna s vanou 7, 8 m2.
- Koupelna s sociální zařízení WC a se sprchovým koutem 2, 5 m2.
- Technická místnost 1, 6 m2.
- Chodba 13, 7 m2.
- Samostatné sociální zařízení WC 1, 4 m2.
- Garáž 19, 7 m2.
- Sklad přístupný z garáže 19, 7 m2.
- Sklepní kóje 1, 6 m2.
- Zpevněná plocha – příjezd ke garáži 40, 2 m2.
- Nezpevněná plocha – zahrada 30, 5 m2.
- Parkovací stání – 18 m2.

Stav a vybavení:
- Okna a francouzské dveře hliníkové antracitové s izolačním trojsklem.
- Podlaha – keramická dlažba + vinyl.
- Vstupní dveře bezpečnostní hliníková, interiérové dveře bezfalcové včetně zárubní, celoplošný laminát.
- Vytápění vlastním plynovým kondenzačním kotlem se zásobníkem TUV, podlahové teplovodní vytápění.
- V kuchyni příprava elektřiny, vody a odpadu pro kuchyňskou linku, v technické místnosti příprava pro pračku a sušičku.
- Kuchyňská linka, svítidla, klimatizace, exteriérové žaluzie či vestavné skříně - nejsou součástí standardního provedení, lze se však na jejich dodání individuálně dohodnout.
- Pro vlastní výběr podlah, dlažeb, obkladů či zařizovacích předmětů koupelen, bude kupci dodán seznam spolupracujících partnerů s konkrétním cenovým rozsahem.

Samozřejmostí je kompletní právní servis. V případě financování poskytnu srovnání aktuálních nabídek úrokových sazeb včetně individuálních slev a osobně vyřídím úvěr. K dispozici návrh na zařízení bytu od bytového architekta. Bytový architekt je vám k dispozici pro revizi návrhu dle vašich představ, případně další spolupráci v průběhu kompletní realizace.
  • Vložení inzerátu:
    13.7.2021
  • Kód:
    00033
  • K dispozici od:
    0.0.0
  • Typ nemovitosti:
    Byt
  • Typ budovy:
    Cihlová
  • Dispozice:
    3+kk
  • Vlastnictví:
    OV
  • Podlaží:
    1
  • Podlahová plocha:
    118 m2
  • Terasa:
    Ano
  • Sklep:
    Ano
  • Stav objektu:
    Novostavba
  • Rok výstavby:
    2022
  • Rok kolaudace:
    2022
  • Bezbariérový byt:
    Ano
  • Umístění objektu:
    Klidná část
  • Telekomunikace:
    , Kabelové rozvody
  • Voda:
    dálkový vodovod
  • Elektřina:
    230 V
  • Doprava:
    MHD
  • Topeni:
    ústřední plynové
  • Plyn:
    plynovod
  • Odpad:
    kanalizace
  • Komunikace:
    asfaltová
  • Bezbariérový přístup:
    Ano
  • Energetická náročnost:
    B - Velmi úsporná
  • Podle vyhlášky:
    c. 78/2013 Sb.
  • Ukazatel náročnosti:
    60 kWh/m2
  • Nabídky v okolí:
  • Informace o obci:
    Obec Brno má 371371 obyvatel, z toho 256490 v produktivním věku.
    V obci se nachází pošta.
    V obci se nachází škola, popř. školka.
    V obci se nachází zdravotní zařízení.
    V obci je rozvod kanalizace.
    V obci je rozvod městské vody.
    V obci je rozvod plynu.

Podobné nabídky v okolí

Lokalita: Březová 1, Brno, okres Brno-město, Česká republika Březová 1, Brno, okr. Brno-město