• Sledovat cenu
  •  

Zasílání upozornění emailem:

Prodej bytu 4+kk, 109 m2 - Březová 1, Brno, okr. Brno-město (již není v nabídce)

Cena: 0 Kč
Stav:archiv
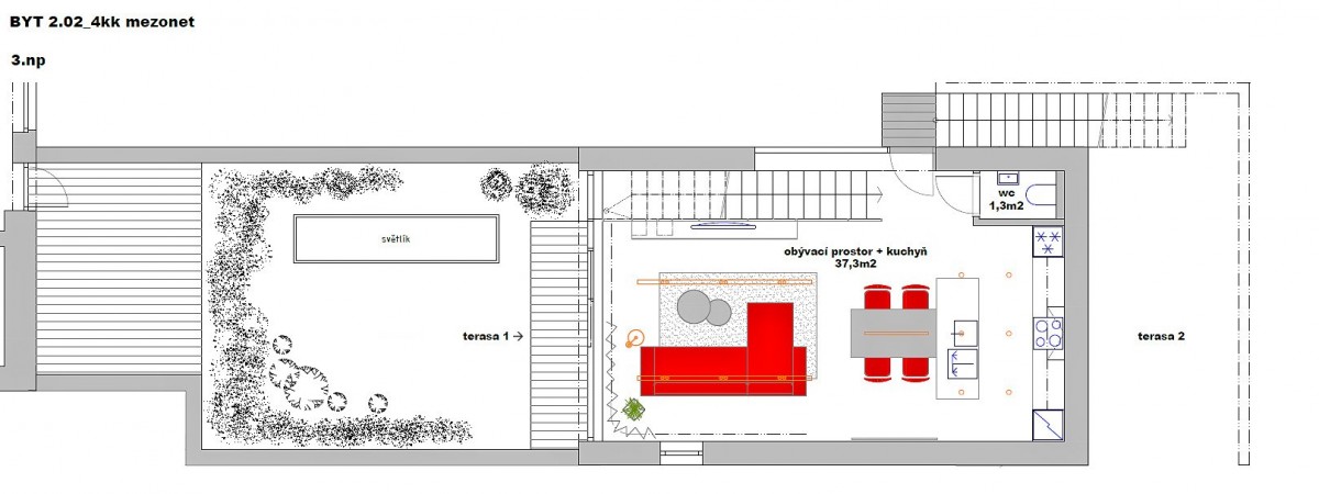
4+kk, 109 m2, cihlová, OV, 2. podlaží
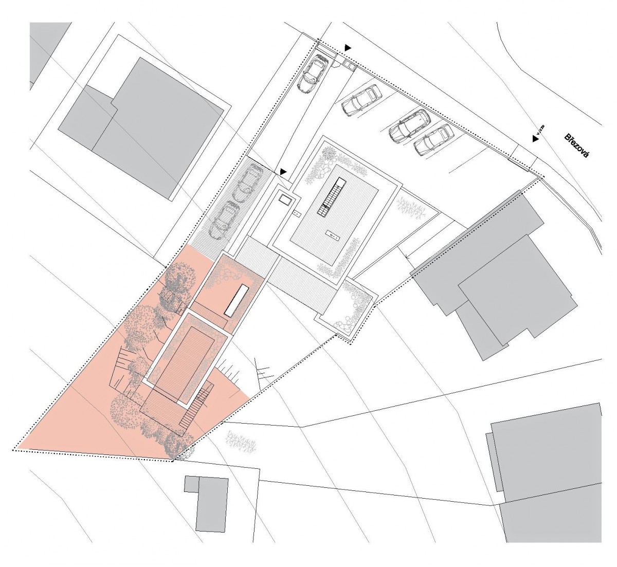
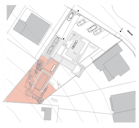
Popis: Prodej nadstandardní novostavby bytu 4+kk se střešní terasou a velkou vlastní zahradou v Brně – Jundrov, ulice Březová. Jedná se o moderně navržený projekt pouze 4 bytových jed...notek ve velice žádané a klidné lokalitě města Brna. Bytový dům je citlivě umístěn mezi okolní zástavbu rodinných domů. K bytové jednotce o čisté užitné výměře 108, 4 m2 náleží dvě parkovací stání pod přístřeškem, dvě terasy o výměře v součtu 42, 1 m2 a vlastní pozemek – zahrada o výměře 208, 6 m2. Byt. jednotka je řešena formou mezonetu, je situována v 2. a 3. NP (třetí nadzemní patro) (první a druhé patro) + střešní terasa ve 4. NP (čtvrté nadzemní patro). V prvním patře jsou umístěny obytné pokoje a zázemí bytu, ve druhém patře obývací pokoj s kuchyňským koutem, s terasou a venkovním schodištěm na střešní terasu. Netradiční dispozice bytu nabízí dvě koupelny, dostatek úložného prostoru, vlastní prostornou zahradu a dvě trasy s úžasným výhledem. V současné chvíli probíhá výstavba, jejíž předpokládané dokončení je naplánováno na květen roku 2022. Kupec si tudíž ovlivní a sám vybere druhy jednotlivých povrchů a zařizovací předmětů dle vlastní preference a vkusu. Tento atraktivní projekt je ojedinělou příležitostí koupě novostavby bytové jednotky v jedné z nejžádanějších vilových lokalit města Brna. Byl naprojektován s maximální snahou o zasazení netradiční architektury domu do okolní zeleně s využitím nadstandardních materiálů. Nachází se na úpatí místního lesa – obory Holedná, přitom stále v relativní blízkosti centra města.

Dispozice:
2. NP (druhé nadzemní patro):
- Vstupní hala 6, 7 m2.
- Schodišťová hala + schodiště 17, 3 m2.
- Pokoj 10, 7 m2.
- Koupelna s vanou a sociální zařízení WC 5, 3 m2.
- Pokoj 10, 5 m2.
- Předsíň 3, 3 m2.
- Koupelna se sprchovým koutem a sociální zařízení WC 3, 4 m2.
- Ložnice 11, 0 m2.
3. NP (třetí nadzemní patro):
- Obývací pokoj s kuchyňským koutem 37, 3 m2.
- Samostatné sociální zařízení WC 1, 4 m2.
- Terasa 4, 5 m2.
4. NP (čtvrté nadzemní patro):
- Střešní terasa 37, 6 m2.
Dále k bytu patří:
- Sklepní kóje 1, 6 m2.
- Zahrada 208, 6 m2.
- 2 x Parkovací stání – 2 x 18 m2.

Stav a vybavení:
- Okna a francouzské dveře hliníkové antracitové s izolačním trojsklem.
- Podlaha – keramická dlažba + vinyl.
- Vstupní dveře bezpečnostní hliníková, interiérové dveře bezfalcové včetně zárubní, celoplošný laminát.
- Vytápění vlastním plynovým kondenzačním kotlem se zásobníkem TUV, podlahové teplovodní vytápění.
- V kuchyni příprava elektřiny, vody a odpadu pro kuchyňskou linku, v technické místnosti příprava pro pračku a sušičku.
- Kuchyňská linka, svítidla, klimatizace, exteriérové žaluzie či vestavné skříně - nejsou součástí standardního provedení, lze se však na jejich dodání individuálně dohodnout.
- Pro vlastní výběr podlah, dlažeb, obkladů či zařizovacích předmětů koupelen, bude kupci dodán seznam spolupracujících partnerů s konkrétním cenovým rozsahem.

Městská část Brno Jundrov je vyhledávanou a oblíbenou lokalitou pro blízkost okolní přírody, přitom s kompletní občanskou vybaveností a výbornou dopravní dostupností. Rozkládá se na pravém břehu řeky Svratky, na úpatí obory Holedná, což ocení nejenom milovníci klidných procházek.
  • Vložení inzerátu:
    5.8.2021
  • Kód:
    00036
  • K dispozici od:
    0.0.0
  • Typ nemovitosti:
    Byt
  • Typ budovy:
    Cihlová
  • Dispozice:
    4+kk
  • Vlastnictví:
    OV
  • Podlaží:
    2
  • Podlahová plocha:
    109 m2
  • Terasa:
    42 m2
  • Sklep:
    2 m2
  • Stav objektu:
    Novostavba
  • Umístění objektu:
    Klidná část
  • Telekomunikace:
    Internet, Kabelové rozvody
  • Voda:
    dálkový vodovod
  • Elektřina:
    230 V
  • Doprava:
    MHD
  • Topeni:
    ústřední plynové
  • Plyn:
    plynovod
  • Odpad:
    kanalizace
  • Komunikace:
    asfaltová
  • Energetická náročnost:
    B - Velmi úsporná
  • Podle vyhlášky:
    c. 78/2013 Sb.
  • Ukazatel náročnosti:
    60 kWh/m2
  • Nabídky v okolí:
  • Informace o obci:
    Obec Brno má 371371 obyvatel, z toho 256490 v produktivním věku.
    V obci se nachází pošta.
    V obci se nachází škola, popř. školka.
    V obci se nachází zdravotní zařízení.
    V obci je rozvod kanalizace.
    V obci je rozvod městské vody.
    V obci je rozvod plynu.

Podobné nabídky v okolí

Lokalita: Březová 1, Brno, okres Brno-město, Česká republika Březová 1, Brno, okr. Brno-město