• Sledovat cenu
  •  

Zasílání upozornění emailem:

Prodej bytu 2+kk, 58 m2 - bratří Žůrků 704, Brno, okr. Brno-město (již není v nabídce)

Cena: 6 490 000 Kč
Stav:archiv
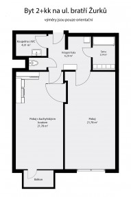
2+kk, 58 m2, cihlová, OV, 4. podlaží
Popis: Nabízíme k prodeji moderní byt o dispozici 2+kk s balkonem na ulici Bratří Žůrků v klidné městské části Komárov. Byt v cihlovém domě je v osobním vlastnictví a ve velice dobrém ...stavu. K bytu náleží také vlastní parkovací stání, které lze přikoupit za 250 000 Kč.

Dispozice bytu zahrnuje předsíň, obývací pokoj s kuchyňským koutem a vstupem na balkon, ložnici, koupelnu, samostatné sociální zařízení WC, šatnu a sklep. Byt je ideální pro pohodlné bydlení nebo jako investice k pronájmu.

Velkou výhodou je výborné hospodaření SVJ, které nemá sjednaný žádný komerční úvěr. Lokalita nabízí klidné prostředí s veškerou občanskou vybaveností a skvělou dostupností do centra Brna.

Kupující neplatí provizi RK. Neváhejte nás kontaktovat a domluvte si prohlídku ještě dnes!

Dispozice: Velikost: 2+kk;
celková výměra bytu: 57, 7 m2;
výměra pokoje s kk: 21, 7 m2, pokoj: 21, 7 m2, předsíň: 6, 2 m2; šatna: 3, 5 m2;
dále: koupelna, sociální zařízení WC, balkon, sklep; konstrukce: cihlová; vlastnictví: osobní;
patro: 4/6; podlahy: dlažba, plovoucí; výtah: ano;
orientace: Z; náklady na byt: cca 4. 300, - Kč/měsíc + el. ;
nastěhování: ihned;
  • Vložení inzerátu:
    8.1.2025
  • Kód:
    N/RSB/20937/24
  • K dispozici od:
    0.0.0
  • Typ nemovitosti:
    Byt
  • Typ budovy:
    Cihlová
  • Dispozice:
    2+kk
  • Vlastnictví:
    OV
  • Podlaží:
    4
  • Podlahová plocha:
    58 m2
  • Balkón:
    3 m2
  • Sklep:
    1 m2
  • Stav objektu:
    Velmi dobrý
  • Energetická náročnost:
    C - Úsporná
  • Podle vyhlášky:
    c. 78/2013 Sb.
  • Ukazatel náročnosti:
    135800 kWh/m2
  • Nabídky v okolí:
  • Informace o obci:
    Obec Brno má 371371 obyvatel, z toho 256490 v produktivním věku.
    V obci se nachází pošta.
    V obci se nachází škola, popř. školka.
    V obci se nachází zdravotní zařízení.
    V obci je rozvod kanalizace.
    V obci je rozvod městské vody.
    V obci je rozvod plynu.

Podobné nabídky v okolí

Lokalita: bratří Žůrků 704, Brno, okres Brno-město, Česká republika bratří Žůrků 704, Brno, okr. Brno-město