• Sledovat cenu
  •  

Zasílání upozornění emailem:

Rodinný dům, 93 m2 - Milíkov, Milíkov , okr. Frýdek-Místek (již není v nabídce)

Cena: 7 750 000 Kč
Stav:archiv
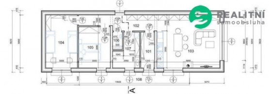
93 m2, dřevostavba, parcela 1170 m2
Popis: Nabízíme k prodeji novostavbu rodinného domu v podhorské vesnici Milíkov. Jedná se o dřevostavbu 3+KK na okraji vesnice v klidné části, 100m od aut. zastávky Milíkov Sosna.
Velikost pozemku je cca 1200m2.
Rodi...nný dům nabízíme hotový na klíč, včetně vnitřního vybavení koupelny, kuchyně a vestavných skříní.
Technický popis: Difuzně otevřená dřevostavba, odvětraná modřínová fasáda, venkovní osvětlení na senzor, plastová okna včetně Izolačního trojskla, betonová střešní taška, nadstřešní izolace Isover, otevřený pohledový krov v interiéru, krbová kamna, el. podlahové vytápění včetně Termostatu v každé místnosti, bojler na teplou vodu, dřevěné masivní podlahy, masivní dřevěné interiérové dveře, modřínová venkovní terasa. Dům je napojen na místní vodovod a kanalizaci. Na zahradě je 2, 5m3 retenční nádoba na dešťovou vodu s přepadem do potůčku který vede přes část pozemku.
Kolaudace cca duben 2023.
  • Vložení inzerátu:
    2.3.2023
  • Kód:
    RS310530
  • Typ nemovitosti:
    Rodinný dům
  • Typ budovy:
    Dřevostavba
  • Zastavěná plocha:
    93 m2
  • Podlahová plocha:
    93 m2
  • Plocha parcely:
    1170 m2
  • Terasa:
    Ano
  • Stav objektu:
    Novostavba
  • Bezbariérový přístup:
    Ano
  • Energetická náročnost:
    C - Úsporná
  • Nabídky v okolí:
  • Informace o obci:
    Obec Milíkov má 241 obyvatel, z toho 166 v produktivním věku.
    V obci je rozvod městské vody.

Podobné nabídky v okolí

Lokalita: Milíkov , Milíkov , okres Frýdek-Místek, Česká republika Milíkov, Milíkov , okr. Frýdek-Místek