• Sledovat cenu
  •  

Zasílání upozornění emailem:

Rodinný dům, 128 m2 - Návsí , okr. Frýdek-Místek (již není v nabídce)

Cena: 7 750 000 Kč
Stav:archiv
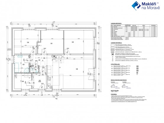
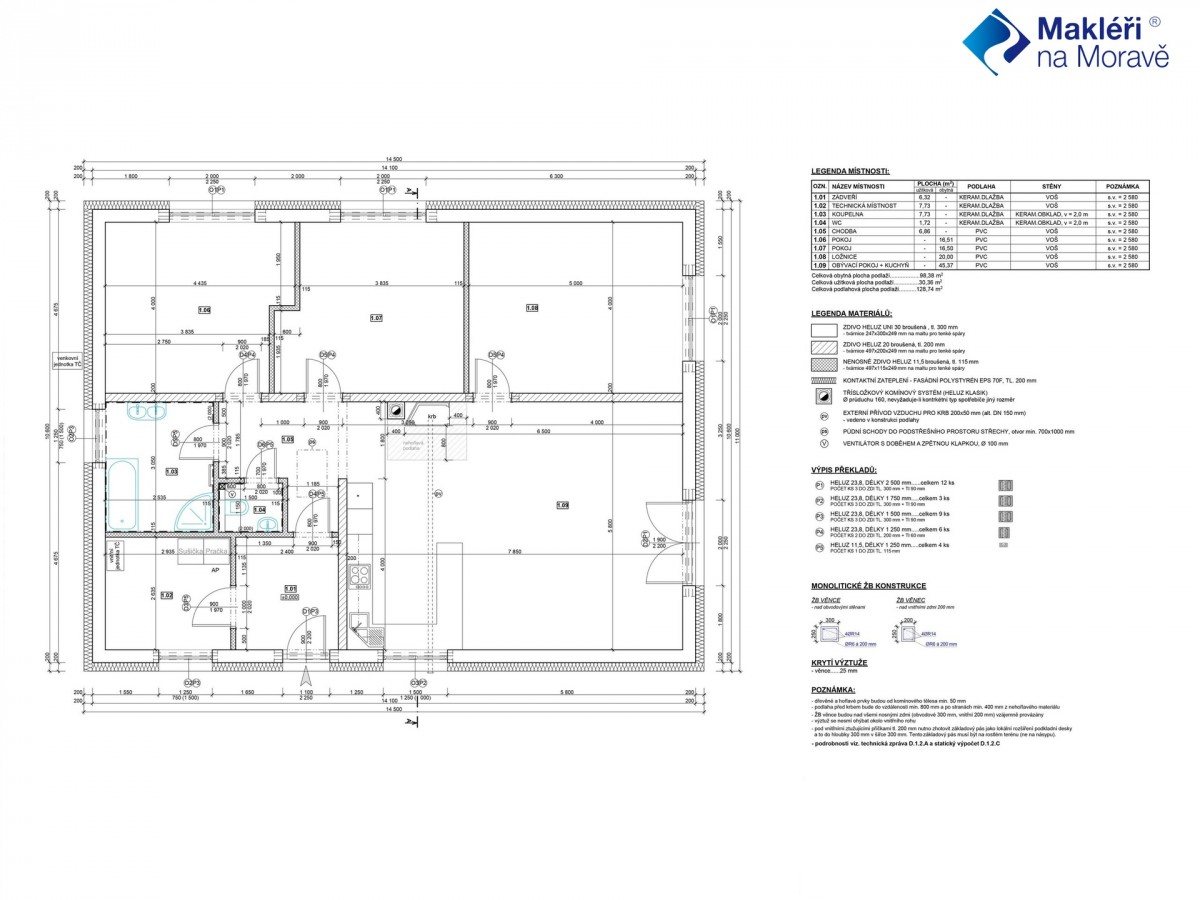
128 m2, cihlová, parcela 2570 m2
Popis: Chcete - li si koupit nový dům, na jehož dokončení se můžete spolupodílet, máte takovou možnost v obci Návsí u Jablunkova. Zde se nachází novostavba bungalovu s dispozicí 4+KK s užitnou plochou 128 m2 (zastavěná... plocha 160 m2) a velkou rovinatou zahradou o ploše cca 2570 m2.

V současné době je dům ve stádiu, kdy začínají probíhat práce na vnitřních omítkách a venkovním zateplování. A právě to je ta chvíle, kdy můžete vstoupit do procesu výběru kuchyňské linky, vybavení koupelny, interiérových dveří a zárubní, podlah, parapetů a dokonce i fasády domu podle Vašeho vkusu. Tento dům bude dostavěn na klíč ve standardním provedení s tím, že v uvedené kupní ceně je zahrnuta i zámková dlažba kolem domu, kamerový systém a garážové stání. Součástí ceny je rovněž majetkový podíl ½ na příjezdové cestě.

Dům je již napojen na přívod obecní vody a elektřiny. Vytápění domu zajišťuje el. podlahové topení se systémem umožňující samostatné zapínání v jednotlivých pokojích. Předpokládané náklady na el. 2000 Kč/měs. U domu jsou připraveny rozvody pro tepelné čerpadlo a el. pohon vstupní brány.

Dominantou domu je obývací místnost s jihozápadním odpoledním slunkem, soukromí členů rodiny pak zajistí 3 samostatné neprůchozí pokoje, kde každý má svůj východ francouzským oknem do zahrady.
Dům je projektován v energeticky úsporném standardu s kvalitním provedením stavby:
- zdivo - cihly Brittherm 300 mm, zateplení fasádním polystyrenem 150 mm
- pětikomorová izolační trojskla,
- zateplení stropu minerální vlnou 400 mm, střešní krytina – falcovaný plech.

Velká zahrada Vám pak umožní široké využití – relaxační s bazénem a pergolou nebo užitkové s možností založení menšího ovocného sadu, či chovu domácích zvířat.
Bydlení v obci Návsí na Vás dýchne přírodou všude kolem. Tuto lokalitu si určitě oblíbí nadšenci venkovského života, ale i ti, kdo touží po aktivním životním stylu. Naleznou zde spoustu možností sportovních aktivit. Turistické a cyklistické trasy Vás zavedou do okolních moc hezkých beskydských kopečků a blízkých rekreačních oblastí. V zimě objevíte nedaleko několik lyžařských areálů. V centru obce je nová víceúčelová tělocvična a fotbalový areál.
Dostupnost do centra obce od domu je 5 min. autem, kde na Vás čeká velice dobrá občanská vybavenost - 2 základní školy a 2 školky, mnoho prodejen s potravinami a spotřebním zbožím, větší supermarkety pak naleznete v blízkém Jablunkově. Dojíždění do práce např. do okolních měst, jako je Třinec, Frýdek Místek, Ostrava, zajišťuje pohodlně nedaleká rychlostní silnice.
Fotografie a video ukazují aktuální stav stavby, vizualizace jen naznačují možnosti vybavení místností. Více info o možnostech dalšího realizačního postupu Vám ráda sdělím na prohlídce, na kterou Vás srdečně zvu.
  • Vložení inzerátu:
    30.4.2024
  • Kód:
    21532
  • K dispozici od:
    0.0.0
  • Typ nemovitosti:
    Rodinný dům
  • Typ budovy:
    Cihlová
  • Zastavěná plocha:
    160 m2
  • Podlahová plocha:
    128 m2
  • Plocha parcely:
    2570 m2
  • Stav objektu:
    Novostavba
  • Umístění objektu:
    Okraj
  • Voda:
    dálkový vodovod
  • Elektřina:
    230 V, 380 V
  • Doprava:
    silnice, dálnice, autobus, vlak
  • Komunikace:
    asfaltová
  • Energetická náročnost:
    C - Úsporná
  • Podle vyhlášky:
    c. 78/2013 Sb.
  • Ukazatel náročnosti:
    100 kWh/m2
  • Nabídky v okolí:
  • Informace o obci:
    Obec Návsí má 3883 obyvatel, z toho 2719 v produktivním věku.
    V obci se nachází pošta.
    V obci se nachází škola, popř. školka.
    V obci se nachází zdravotní zařízení.
    V obci je rozvod kanalizace.
    V obci je rozvod městské vody.
    V obci je rozvod plynu.

Podobné nabídky v okolí

Lokalita: Návsí , okres Frýdek-Místek, Česká republika Návsí , okr. Frýdek-Místek, Moravskoslezský kraj