Rodinný dům, 336 m2 - Pražská 575, Praha 10, Hostivař, Praha (již není v nabídce)
Cena:
28 000 000 Kč
Stav:archiv
336 m2, cihlová, parcela 1606 m2
Popis:
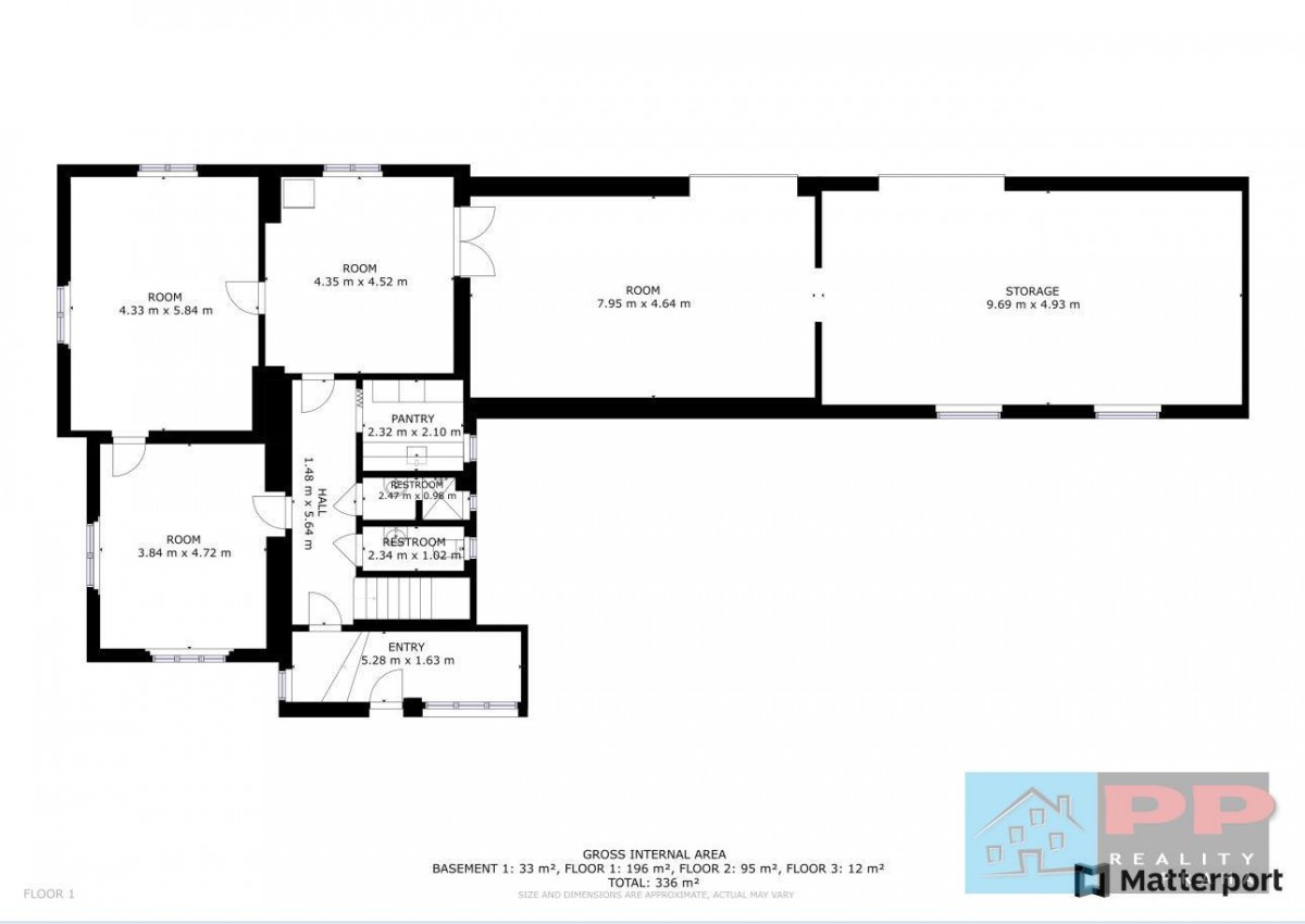
ID: 260901. Nabízíme na prodej rodinný dům (6+1) o užitné ploše 336m2 s pozemkem 1. 606m2. Dům je momentálně využíván, jako kancelář a provozovna společnosti..., zabývající se prodejem podlah. Dům se nachází v křižovatce ulic Švehlova x Pražská u zastávky tramvaje Na Groši. Obchodní centrum VIVO! Hostivař je vzdálen 400m. V okolí je výborná dopravní obslužnost a občanská vybavenost.
Na vlastním pozemku před domem je velká plocha na parkování, kam se vejde 10 - 14 aut. Vjezd je z ulice Pražská. Stavba rodinného domu je zděná ze 70. let. Střecha je udržovaná, na konci 90. let proběhla výměna krytiny za betonové tašky. Okna plastová, dvojsklo.
V přízemí se nachází (3) místnosti, prostorná chodba, kuchyně, samostatné sociální zařízení WC a koupelna. Na tuto část navazuje přístavba - sklad o dvou místnostech (37m2 + 47m2), která byla přistavěna v roce 1995. Dům je částečně podsklepený, jsou zde dvě místnosti (8, 6m2 + 20, 7m2).
V 1. patře (podkroví) se nachází (3) další místnosti, 2. koupelna s sociální zařízení WC a prostorná chodba. Z tohoto patra se dostanete po schodech na půdu, která slouží, jako odkládací prostor/ malý sklad.
Pokud se na tuto nemovitost budete chtít osobně podívat, neváhejte se se mnou spojit. Vzhledem k tomu, že v domě sídlí firma, prohlídky budou možné pouze v předem domluvené termíny. K dispozici také máte 3D virtuální prohlídku, kterou můžete udělat z pohodlí svého domova online.
- Vložení inzerátu:
29.9.2023
- Kód:
2158
- Typ nemovitosti:
Rodinný dům
- Typ budovy:
Cihlová
- Zastavěná plocha:
200 m2
- Podlahová plocha:
336 m2
- Plocha parcely:
1606 m2
- Stav objektu:
Dobrý
- Voda:
dálkový vodovod
- Doprava:
MHD, autobus
- Topeni:
ústřední plynové
- Plyn:
plynovod
- Odpad:
kanalizace
- Komunikace:
asfaltová
- Bezbariérový přístup:
Ano
- Nabídky v okolí: