Rodinný dům, 300 m2 - Horní, Světlá nad Sázavou, okr. Havlíčkův Brod (již není v nabídce)
            
            
                
        Cena:
                        9 200 000 Kč
        
              Stav:archiv
        
         
          
          
                300 m2, parcela 142 m2          
        
        Popis:
        
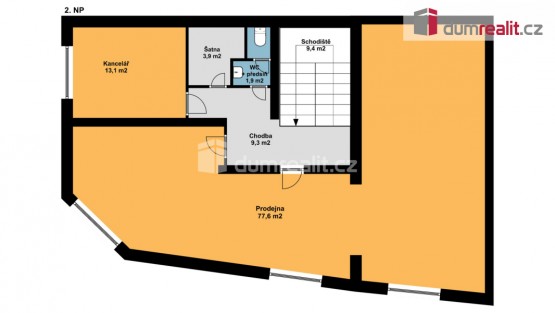
                                uvedená cena je včetně právních služeb a odměny RK .  Dumrealit. cz Vám nabízí prodej multifunkčního domu ve městě Světlá nad Sázavou.  Jedná se o tří podlažní dům,  s podsklepením cca z 1/5,  kde se nachází přípojka obecního... vodovodu.  Dispozice:  v suterénu se nachází prodejna textilu,  dvě kanceláře se zázemím (které generují i drobný zisk),  dále schodiště do 1. NP (první nadzemní patro),  zde se nachází komerční prostor,  se sociálním zařízením,  velmi dobře by se dalo přestavět na prostorný byt.  V 2. NP (druhé nadzemní patro) se nachází slunná bytová jednotka 4+1 s lodžií (97m²) s výhledem na náměstí,  nad ní malá půda sloužící jako úložný prostor.  Dům prošel v letech 1996  -  1998 rozsáhlou revitalizací.  Nová okna,  fasáda,  veškeré instalace vody a elektro,  omítky,  podlahy,  změna příček.  Vytápění domu je ústřední,  zajištěno plynovým kotlem umístěným v suterénu domu,  zdroj vody z městského vodovodu,  odpady svedeny do kanalizace.  Střešní krytina eternitové šablony a falcový pozinkovaný plech,  včetně okapů.  Dispozice domu ve městě je velmi dobrá,  neboť je v těsné blízkosti centra a tudíž je vhodná pro komerční účely či přetvoření na více bytových jednotek.  Světlá nad Sázavou poskytuje plnou občanskou vybavenost – mateřská škola,  základní a střední školy,  učiliště,  obchody,  zdravotní středisko,  banka,  pošta,  sportovní a kulturní zařízení,  bus,  vlak.  Neopomenutelná je i okolní příroda,  která je četně vyhledávaná turisty,  vodáky,  cyklisty pro pohodové využití odpočinkových aktivit a najdete zde i mnoho historických památek.  PENB se aktuálně vypracovává.  V případě zájmu pomůžeme se zajištěním financování.  Pro více informací volejte na uvedené telefonní číslo.  Doporučuji osobní prohlídku.  Ev.  číslo:  643470.  Energetický štítek:  F (188 kWh/m2/rok). 
            
            
    - Vložení inzerátu:
12.10.2023 
     - Kód:
3691550 
         - Typ nemovitosti:
Rodinný dům 
 
    
    
            
    - Zastavěná plocha:
142 m2
 
            - Podlahová plocha:
300 m2
         - Plocha parcely:
142 m2
     
                    - Lodžie:
Ano
                         - Sklep:
Ano
     
            - Stav objektu:
Dobrý 
                 
    
            - Umístění objektu:
Centrum 
         
                
                
            
    - Energetická náročnost:
F - Velmi nehospodárná 
         - Ukazatel náročnosti:
188 kWh/m2
 
    - Nabídky v okolí:
 
- Informace o obci:
Obec Světlá nad Sázavou má 6851 obyvatel, z toho 5045 v produktivním věku.
V obci se nachází pošta.
V obci se nachází škola, popř. školka.
V obci se nachází zdravotní zařízení.
V obci je rozvod kanalizace.
V obci je rozvod městské vody.
V obci je rozvod plynu.