• Sledovat cenu
  •  

Zasílání upozornění emailem:

Rodinný dům, 300 m2 - Horní, Světlá nad Sázavou, okr. Havlíčkův Brod (již není v nabídce)

Cena: 9 500 000 Kč
Stav:archiv
300 m2, parcela 142 m2
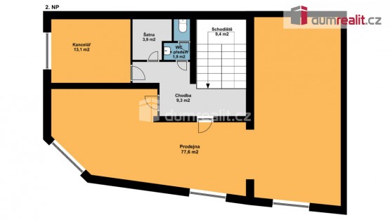
Popis: uvedená cena je včetně právních služeb a odměny RK . Dumrealit. cz Vám nabízí prodej multifunkčního domu ve městě Světlá nad Sázavou. Jedná se o tří podlažní dům, s podsklepením cca z 1/5, kde se nachází přípojka obecního... vodovodu. Dispozice: v suterénu se nachází prodejna textilu, dvě kanceláře se zázemím (které generují i drobný zisk), dále schodiště do 1. NP (první nadzemní patro), zde se nachází komerční prostor, se sociálním zařízením, velmi dobře by se dalo přestavět na prostorný byt. V 2. NP (druhé nadzemní patro) se nachází slunná bytová jednotka 4+1 s lodžií (97m²) s výhledem na náměstí, nad ní malá půda sloužící jako úložný prostor. Dům prošel v letech 1996 - 1998 rozsáhlou revitalizací. Nová okna, fasáda, veškeré instalace vody a elektro, omítky, podlahy, změna příček. Vytápění domu je ústřední, zajištěno plynovým kotlem umístěným v suterénu domu, zdroj vody z městského vodovodu, odpady svedeny do kanalizace. Střešní krytina eternitové šablony a falcový pozinkovaný plech, včetně okapů. Dispozice domu ve městě je velmi dobrá, neboť je v těsné blízkosti centra a tudíž je vhodná pro komerční účely či přetvoření na více bytových jednotek. Světlá nad Sázavou poskytuje plnou občanskou vybavenost – mateřská škola, základní a střední školy, učiliště, obchody, zdravotní středisko, banka, pošta, sportovní a kulturní zařízení, bus, vlak. Neopomenutelná je i okolní příroda, která je četně vyhledávaná turisty, vodáky, cyklisty pro pohodové využití odpočinkových aktivit a najdete zde i mnoho historických památek. PENB se aktuálně vypracovává. V případě zájmu pomůžeme se zajištěním financování. Pro více informací volejte na uvedené telefonní číslo. Doporučuji osobní prohlídku. Ev. číslo: 643470. Energetický štítek: F (188 kWh/m2/rok).
  • Vložení inzerátu:
    8.9.2023
  • Kód:
    3675151
  • Typ nemovitosti:
    Rodinný dům
  • Zastavěná plocha:
    142 m2
  • Podlahová plocha:
    300 m2
  • Plocha parcely:
    142 m2
  • Lodžie:
    Ano
  • Sklep:
    Ano
  • Stav objektu:
    Dobrý
  • Umístění objektu:
    Centrum
  • Energetická náročnost:
    F - Velmi nehospodárná
  • Ukazatel náročnosti:
    188 kWh/m2
  • Nabídky v okolí:
  • Informace o obci:
    Obec Světlá nad Sázavou má 6851 obyvatel, z toho 5045 v produktivním věku.
    V obci se nachází pošta.
    V obci se nachází škola, popř. školka.
    V obci se nachází zdravotní zařízení.
    V obci je rozvod kanalizace.
    V obci je rozvod městské vody.
    V obci je rozvod plynu.

Podobné nabídky v okolí

Lokalita: Horní , Světlá nad Sázavou, okres Havlíčkův Brod, Česká republika Horní, Světlá nad Sázavou, okr. Havlíčkův Brod