Rodinný dům, 222 m2 - Beroun (již není v nabídce)
            
            
                
        Cena:
                        15 490 000 Kč
        
              Stav:archiv
        
         
          
          
                222 m2, cihlová, parcela 864 m2          
        
        Popis:
        
                                Krásný den přeji,  dnes trochu jinak,  kousek od civilizace a přesto v přírodě,  mám pro Vás na prodej bezkonkurenční dům v Trubské u Berouna,  který se nachází v CHKO Křivoklátsko.  
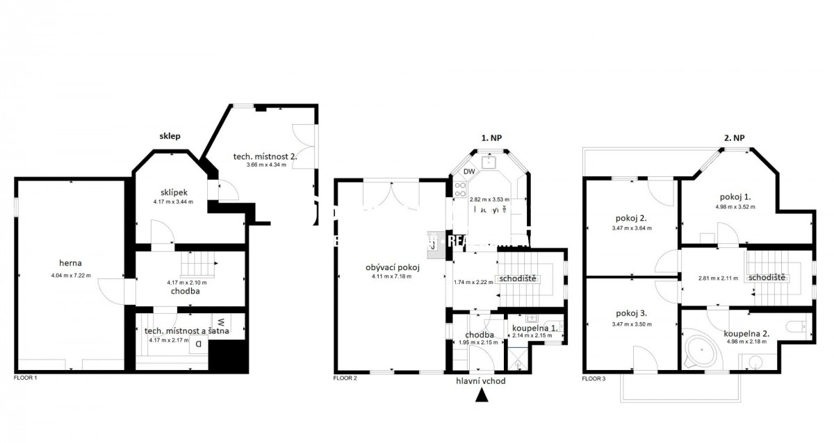
Dům je třípodlažní a dispozičně ...tle="4 pokoje + 1 kuchyň">4+1.  Ve sklepě,   najdete čtyři místnosti v podobě herny,  relaxační místnosti ,  nechybí ani místnost technická se šatnou a velký sklad,  kde se dá vymyslet cokoliv vám fantazie dovolí.  Dále pokračujeme do 1. NP (první nadzemní patro) s koupelnou včetně záchodu a sprchového koutu,  Kuchyň s neomrzitelným výhledem,  dále obývací pokoj dost velký na to aby se vám tam vešel  jídelní stůl i s pianem.   
Druhé patro se třemi obytnými místnostmi,  dvěma balkony  a pohádkovou rohovou vanou v koupelně ukončuje poslední patro domu? Ne,  protože je tu ještě půda nad celým patrem,  prostě prostoru víc než dost. 
Nádherná terasovitá zahrada o výměře  864m2,  kde si bezesporu všimnete  kamenů dovezených z nedalekého lomu Čertovy schody,  terasou s opět neodolatelným výhledem v ceně a bazénem,  který věřím že neocení pouze děti. 
Prostě ráj na zemi,  kde zůstává vesnice vesnicí a nestává se satelitním městem,  a proto jestli se Vám dům a jeho přemoc hezký výhled líbil,  tak mi hned zavolejte. 
            
            
    - Vložení inzerátu:
18.9.2022 
     - Kód:
PL100/29 
     - K dispozici od:
0.0.0 
     - Typ nemovitosti:
Rodinný dům 
 
            - Typ budovy:
Cihlová 
     
    
            
    
            - Podlahová plocha:
222 m2
         - Plocha parcely:
864 m2
     
                            - Terasa:
Ano
         - Bazén:
Ano
             
            - Stav objektu:
Velmi dobrý 
                 
    
            - Umístění objektu:
Klidná část 
         
        - Voda:
dálkový vodovod 
     - Elektřina:
230 V 
     
            - Odpad:
kanalizace 
     
            
    - Energetická náročnost:
G - Mimořádne nehospodárná 
         
    - Nabídky v okolí:
 
- Informace o obci:
Obec Beroun má 18794 obyvatel, z toho 12991 v produktivním věku.
V obci se nachází pošta.
V obci se nachází škola, popř. školka.
V obci se nachází zdravotní zařízení.
V obci je rozvod kanalizace.
V obci je rozvod městské vody.
V obci je rozvod plynu.