• Sledovat cenu
  •  

Zasílání upozornění emailem:

Rodinný dům, 249 m2 - Beroun (již není v nabídce)

Cena: 12 499 900 Kč
Stav:archiv
249 m2, cihlová, parcela 115 m2
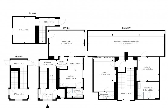
Popis: Dobrý den, investoři početná rodino a nebo… to už je na Vás. Dnešním esem v rukávu je dům o pěti bytových jednotkách , kompletně zrekonstruovaný v roce 2017, kdy se předělal celý dům včetně vnitřních prostor a rozvodů, j...ak se říká na cihlu.

V každém patře je oficiálně jeden velký byt , ale díky investičním myšlenkám již od začátku, je byt rozdělen na dvě naprosto totožné jednotky, 1+1 o cca 45m2, kdy každá z nich má navíc svoji komoru a sklepní místo . Dále pak předminulý rok zrekonstruovaná půda na byt 3+kk o 85m2 , se dvěma koupelnami a obrovským pokojem s přípravou na kuchynský kout je třešničkou na dortu.

A nyní pár slov o Králově Dvoře . Jedná se o velice oblíbenou lokalitu, která je v kombinaci s přilehlou městskou částí skvělým místem pro bydlení nebo pro investory v podobě pronájmu. Zajděte si na vycházku do lesa nebo třeba na projížďku na kole cyklostezkou podél řeky Berounky, která vede až do Prahy. Když se ale chcete socializovat, sportovně a kulturně , město Beroun se postará o své.

Díky dálnici D5 směr Praha (27km) Plzeň (56km), je zajištěno špičkové spojení do nedalekého města Berouna a po D pětce jste za cca 15 minut v Praze. Pokud nemáte k dispozici auto, nevadí, protože vlakem i autobusem jste z nejbližší zastávky v Praze za přibližně 30 minut.
V dochozí vzdálenosti je například autobusová zastávka, škola, školka, dětská hřiště, lanové centrum, workout, potraviny, taneční škola ale již zminovaná cyklostezka. Všechny potřeby, jako např. lékárny, polikliniky nebo nákupní centrum jsou co by kamenem dohodil a zbytek došel. Další a ještě širší nabídka je v Berouně, kde je i nemocnice, mnoho středních škol a prakticky úplně všechno, na co si člověk vzpomene.
Proto, v případě zájmu mi ihned kontaktujte a po společné domluvě si prohlídneme dům zblízka.
Jelikož po tomto horkém zboží se zanedlouho zem slehne.
  • Vložení inzerátu:
    1.10.2022
  • Kód:
    PL100/31
  • K dispozici od:
    0.0.0
  • Typ nemovitosti:
    Rodinný dům
  • Typ budovy:
    Cihlová
  • Podlahová plocha:
    249 m2
  • Plocha parcely:
    115 m2
  • Sklep:
    Ano
  • Stav objektu:
    Velmi dobrý
  • Energetická náročnost:
    G - Mimořádne nehospodárná
  • Nabídky v okolí:
  • Informace o obci:
    Obec Beroun má 18794 obyvatel, z toho 12991 v produktivním věku.
    V obci se nachází pošta.
    V obci se nachází škola, popř. školka.
    V obci se nachází zdravotní zařízení.
    V obci je rozvod kanalizace.
    V obci je rozvod městské vody.
    V obci je rozvod plynu.

Podobné nabídky v okolí

Lokalita: Beroun, okres Beroun, Česká republika Beroun, Středočeský kraj