Rodinný dům, 201 m2 - Stružinec , okr. Semily (již není v nabídce)
            
            
                
        Cena:
                        2 890 000 Kč
        
              Stav:archiv
        
         
          
          
                201 m2, cihlová, parcela 1156 m2          
        
        Popis:
        
                                Cena k jednání!.  Reality 11 Vám zprostředkují koupi samostatně stojícího zděného domu 7+kk se zastavěnou plochou a nádvořím 201 m²,  zastřešený sedlovým krovem o dvou úrovních, ... ležící na mírně svažitém pozemku.  
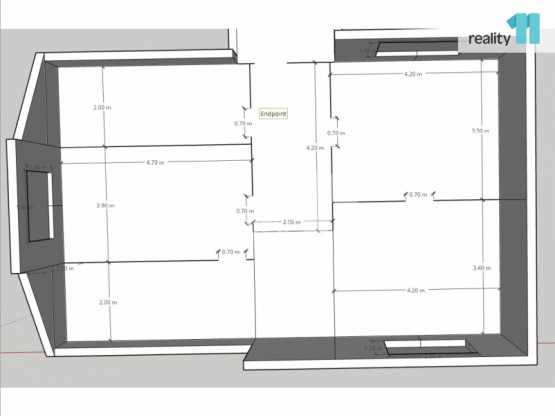
Původní část domu je přízemní,  částečně podsklepená s podkrovím,  přístavba domu je patrová s částečným podsklepením.  
V podzemním podlaží jsou v původní části domu dva sklepy,  v přístavbě garáž,  sklad a schodiště.  
V 1.  nadzemním podlaží domu jsou v původní části dva pokoje,  v novější přístavbě dva pokoje,  chodba se schodištěm a koupelna s sociální zařízení WC.  
V podkroví je v původní části pokoj a dvě komory,  v patře přístavby dva pokoje,  chodba a schodiště. 
Původní část domu byla postavena v roce 1920,  přístavba je z roku 1957. 
Přístup do domu je ze silnice,  vjezd do garáže z místní komunikace. 
Dům je vyklizen a připraven k rekonstrukci,  je připojen na IS - elektrický proud (v současnosti odpojen),  voda,  septik s odpadem. 
K domu přísluší zděná kůlna - zastavěná plocha 32 m²,  s poškozenou střechou se sedlovým krovem. 
Zahrada o výměře 923 m² je neudržovaná. 
Po rekonstrukci je dům vhodný pro trvalé bydlení i k rekreaci. 
V obci se nachází obecní úřad,  hostinec a knihovna,  v okolí lze navštívit díky husté síti pěších tras,  cyklotras a lyžařských terénů mnoho turistických cílů, 
jako např.  rozhlednu,  zříceninu hradů Kumburk a Bradlec či Smetanovu vyhlídku. 
V blízké Lomnici nad Popelkou naleznete sportovní a kulturní vyžití  -  divadlo,  kino,  zámek,  městské muzeum a galerii,  loutkové divadlo,  sportovní halu,  
zimní a letní stadion,  horolezeckou stěnu,  lyžařský areál v Popelkách s volně přístupným vyhlídkovým ochozem na skokanském můstku,  sportovní letiště,  
koupaliště,  lázeňský dům,  a také veškerou občanskou vybavenost.  
Doposud nebyl dodán PENB,  proto je nemovitost zařazena do kategorie G. 
S financováním ráda poradím,  volejte kdykoliv,  prohlídku zajistím.  Ev.  číslo:  23454.  Energetický štítek:  G
            
            
    - Vložení inzerátu:25.11.2021  
- Kód:3264385  
- Typ nemovitosti:Rodinný dům  
- Typ budovy:Cihlová  
- Zastavěná plocha:233 m2 
- Podlahová plocha:201 m2 
- Plocha parcely:1156 m2 
- Sklep:Ano 
- Stav objektu:Před rekonstrukcí  
- Energetická náročnost:G - Mimořádne nehospodárná  
- Nabídky v okolí:
- Informace o obci:Obec Stružinec  má 700 obyvatel, z toho 488 v produktivním věku.
 V obci je rozvod městské vody.