• Sledovat cenu
  •  

Zasílání upozornění emailem:

Rodinný dům, 201 m2 - Stružinec , okr. Semily (již není v nabídce)

Cena: 2 990 000 Kč
Stav:archiv
201 m2, cihlová, parcela 1156 m2
Popis: Cena včetně provize a právního servisu.
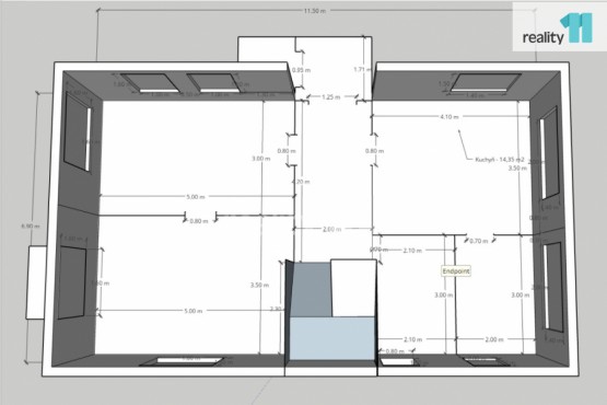
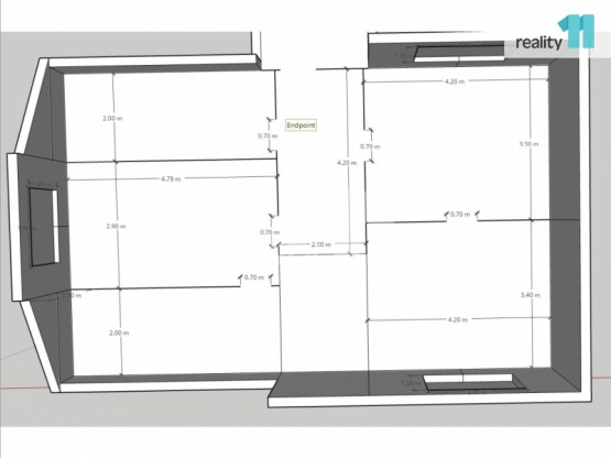
Cena k jednání!. Reality 11 Vám zprostředkují koupi samostatně stojícího zděného domu 7+kk se zastavěnou plochou a nádvořím 201 m², zas...třešený sedlovým krovem o dvou úrovních, ležící na mírně svažitém pozemku.
Původní část domu je přízemní, částečně podsklepená s podkrovím, přístavba domu je patrová s částečným podsklepením.
V podzemním podlaží jsou v původní části domu dva sklepy, v přístavbě garáž, sklad a schodiště.
V 1. nadzemním podlaží domu jsou v původní části dva pokoje, v novější přístavbě dva pokoje, chodba se schodištěm a koupelna s sociální zařízení WC.
V podkroví je v původní části pokoj a dvě komory, v patře přístavby dva pokoje, chodba a schodiště.
Původní část domu byla postavena v roce 1920, přístavba je z roku 1957.
Přístup do domu je ze silnice, vjezd do garáže z místní komunikace.
Dům je vyklizen a připraven k rekonstrukci, je připojen na IS - elektrický proud (v současnosti odpojen), voda, septik s odpadem.
K domu přísluší zděná kůlna - zastavěná plocha 32 m², s poškozenou střechou se sedlovým krovem.
Zahrada o výměře 923 m² je neudržovaná.
Po rekonstrukci je dům vhodný pro trvalé bydlení i k rekreaci.
V obci se nachází obecní úřad, hostinec a knihovna, v okolí lze navštívit díky husté síti pěších tras, cyklotras a lyžařských terénů mnoho turistických cílů,
jako např. rozhlednu, zříceninu hradů Kumburk a Bradlec či Smetanovu vyhlídku.

V blízké Lomnici nad Popelkou naleznete sportovní a kulturní vyžití - divadlo, kino, zámek, městské muzeum a galerii, loutkové divadlo, sportovní halu,
zimní a letní stadion, horolezeckou stěnu, lyžařský areál v Popelkách s volně přístupným vyhlídkovým ochozem na skokanském můstku, sportovní letiště,
koupaliště, lázeňský dům, a také veškerou občanskou vybavenost.
Doposud nebyl dodán PENB, proto je nemovitost zařazena do kategorie G.
S financováním ráda poradím, volejte kdykoliv, prohlídku zajistím. Ev. číslo: 23454. Energetický štítek: G
  • Vložení inzerátu:
    4.11.2021
  • Kód:
    3260342
  • Typ nemovitosti:
    Rodinný dům
  • Typ budovy:
    Cihlová
  • Zastavěná plocha:
    233 m2
  • Podlahová plocha:
    201 m2
  • Plocha parcely:
    1156 m2
  • Sklep:
    Ano
  • Stav objektu:
    Před rekonstrukcí
  • Energetická náročnost:
    G - Mimořádne nehospodárná
  • Nabídky v okolí:
  • Informace o obci:
    Obec Stružinec má 700 obyvatel, z toho 488 v produktivním věku.
    V obci je rozvod městské vody.

Podobné nabídky v okolí

Lokalita: Stružinec , okres Semily, Česká republika Stružinec , okr. Semily, Liberecký kraj