• Sledovat cenu
  •  

Zasílání upozornění emailem:

Rodinný dům, 192 m2 - Heyrovského, Psáry, okr. Praha-západ (již není v nabídce)

Cena: 18 499 000 Kč
Stav:archiv
192 m2, montovaná, parcela 1062 m2
Popis: Prodá se nízkoenergetický RD (rodinný dům) v Dolních Jirčanech, Heyrovského ul. Objekt se nachází v hezkém a klidném prostředí, v zástavbě nových rodinných domů. Dům zkolaudován v roce 2007, do současné podoby dokončen v... roce 2024.
P
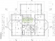
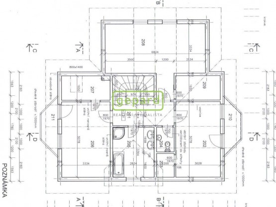
Pozemek 1. 062 m2, zastavěná plocha domu 113 m2. Plocha přízemí 100 m2, plocha 1. patro 92 m2.

Dům je dvoupodlažní, ve střešní části využitelné úložné prostory (cca 30 m2). Součástí domu je garáž, k domu je přistavěné kryté parkovací stání (cca 35 m2). Na zahradě terasa a krytý bazén s příslušenstvím, zastřešená pergola a víceúčelový zděný zahradní domek.

Dispoziční řešení:
Přízemí - zádveří, koupelna/sociální zařízení WC (sprch. kout), pokoj 1, chodba se schodištěm, úložný prostor pod schodištěm, obývací pokoj s kuchyňským koutem. Garáž s východem na zahradu.
Patro - hala se schodištěm, sociální zařízení WC, koupelna (vana a sprch. kout), pokoj 2 se šatnou a balkonem, pokoj 3 se šatnou a balkonem, pokoj 4 se šatnou.

Stavební konstrukce:
Dřevostavba založená na betonových základech. Stěny opláštěny sádrovláknitými deskami. Obvodové stěny zvenku opatřeny tepelně izolačním kompozitním systémem ETICS.
Stropy montované z dřevěných stropních panelů.
Střešní konstrukce - krov vaznicové soustavy, betonové tašky.
Schodiště - dřevěné.
Venkovní dveře plastové, okna plastová, vnitřní dveře dřevěné, dřevěné zárubně.
Vnější úprava stěn - tenkovrstvá omítka.
Vnitřní úprava stěn - keramický obklad, sádrovláknité desky s disperzním nátěrem.
Podlahy - keramická dlažba, laminátová „plovoucí“ podlaha/vinyl. V garáži betonová podlaha krytá keramickými dlaždicemi, zámková dlažba na plochách pro parkování za vjezdovou bránou a v krytém stání.
Oplocení - do ulice Heyrovského hliníkový barvený plot, elektrická posuvná vjezdová brána.

Dům je orientován V/Z směrem, na jižní straně rozměrná terasa, dva balkony v patře. Krytý bazén cca 14 m2. Zahrada rovinatá (nově založený trávník) svažující se k ulici Heyrovského. Na zahradě je dále krytá pergola (cca 12 m2) a zděný víceúčelový zahradní domek (cca 10 m2). Na zahradě je jímka na dešťovou vodu. Na severní straně domu dodatečně vybudováno kryté stání pro 2 osobní vozy (cca 35 m2). Dům je v perfektním stavu, připraven k okamžitému stěhování, bez nutnosti dalších investic.

Topení - ústřední radiátorové (plynový kotel)
Ohřev vody - plynový kotel se samostatným zásobníkem na teplou vodu
Elektrická energie – 220/380 V
Voda - veřejný vodovod
Kanalizace - veřejná kanalizace
Klimatizace - centrální klimatizační jednotka, slouží i jako sekundární zdroj tepla (4 jednotky v pokojích)

Kuchyňský kout - sestava kuchyňských skříněk (výsuvy a panty BLUM).

Krásné bydlení v lokalitě zastavěné výhradně rodinnými domy, klid a soukromí. Snadná dopravní dostupnost (MHD cca 700 m), snadné silniční spojení (napojení na „pražský okruh“ D0 cca 4 min). Veškerá občanská vybavenost v místě (Jesenice). Široká možnost sportovního a rekreačního vyžití v okolí (Průhonický park, řeka Sázava atd. )

Dům je volný ihned.

Finanční a právní poradenství zajištěno.
  • Vložení inzerátu:
    8.5.2024
  • Kód:
    9861
  • K dispozici od:
    0.0.0
  • Typ nemovitosti:
    Rodinný dům
  • Typ budovy:
    Montovaná
  • Zastavěná plocha:
    113 m2
  • Podlahová plocha:
    192 m2
  • Plocha parcely:
    1062 m2
  • Bazén:
    14 m2
  • Stav objektu:
    Velmi dobrý
  • Rok výstavby:
    2007
  • Rok kolaudace:
    2007
  • Umístění objektu:
    Klidná část
  • Voda:
    dálkový vodovod
  • Elektřina:
    230 V, 380 V
  • Doprava:
    silnice, dálnice, MHD, autobus
  • Topeni:
    ústřední plynové
  • Plyn:
    plynovod
  • Odpad:
    kanalizace
  • Komunikace:
    asfaltová
  • Energetická náročnost:
    C - Úsporná
  • Nabídky v okolí:
  • Informace o obci:
    Obec Psáry má 3378 obyvatel, z toho 2465 v produktivním věku.
    V obci se nachází pošta.
    V obci se nachází zdravotní zařízení.
    V obci je rozvod kanalizace.
    V obci je rozvod městské vody.
    V obci je rozvod plynu.

Podobné nabídky v okolí

Lokalita: Heyrovského , Psáry, okres Praha-západ, Česká republika Heyrovského, Psáry, okr. Praha-západ