• Sledovat cenu
  •  

Zasílání upozornění emailem:

Rodinný dům, 162 m2 - Losy, Uherský Brod, okr. Uherské Hradiště

Cena: 11 525 000 Kč
Stav:Volný
162 m2, cihlová, parcela 1331 m2
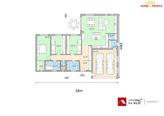
Popis: Cena včetně výstavby RD (rodinný dům), IS, příjezdové komunikace a DPH. . Zprostředkujeme Vám exkluzivní prodej rodinného domu typu Avalon o velikosti 4+kk s dvoj garáží, neb...o jako 5+kk o podlahové výměře 162 m² v Uherském Brodě části Těšov. Rodinný dům Avalon je typ rodinného domu vhodný do rovinatého, ale i mírně svažitého terénu. Součásti uvedené ceny, která již zahrnuje DPH je dům na klíč, inženýrské sítě v dosahu a připojené místo EDG (EON), mimo plynu, pozemek a veškeré projektové práce a stavebního povolení. Pozemek (č. 9 a č. 10) o rozloze 1331 m² je na klidném místě obce. Šíře pozemku je 20, 5 m. Navíc k nabízenému pozemku je i podíl na dalším pozemku za zahradou. Dle územního plánu je pozemek veden a schválen pro rodinné bydlení. Jedná se o zděnou stavbu a nabízí se ve variantě na klíč. Uvedená cena domu obsahuje základovou desku, DPH a stavba bude provedena na klíč a předána po kolaudaci k okamžitému užívání. V projektu jsou možné variabilní úpravy dispozice (posuny příček či oken). Dům je ideální pro 5 člennou rodinu s nízkými provozními náklady. Uvedená cena je za pozemek, kompletní stavbu domu v provedení na klíč, projektové dokumentace, vyřízení stavebního povolení, základové desky až po kolaudaci. V uvedené ceně můžete počítat také s finálními povrchovými úpravami exteriéru i interiéru, a to včetně elektroinstalací, sanitárního vybavení s bateriemi, interiérovými dveřmi včetně obložek a vytápění bude řešeno teplovodním podlahovým topením v kombinaci tepelného čerpadla se 180L zásobníkem na teplou vodu. Dle dohody změníme systém vytápění nebo vystavíme komín pro krbové kamna nebo pro využití krbové vložky. Kryté garážové stání spojené s domem nebo venkovní krytou či nekrytou terasu za příplatek. Pro náročnější klienty máme nabídku nadstandardního vybavení chytré domácnosti, klimatizaci, externí žaluzie, rolety, rekuperaci nebo fotovoltaiku. Doba výstavby cca 12 - 14 měsíců od vydání stavebního povolení a stavbu zahájíme do 10 dnů od jeho vydání. Smlouvy o dílo zašleme na vyžádání včetně položkového rozpočtu. Parametry domu: užitná plocha 162 m² zastavěná plocha domu 191 m². V domě se nachází hlavní obytný prostor s kuchyňským koutem, sklad, technickou místnost a sociální zařízení WC s umyvadlem, zařízená koupelna, 3 pokoje. V blízkosti je veškerá občanská vybavenost. (Součástí ceny není kuchyňská linka a světla – dokážeme za zvýhodněných podmínek zajistit přes naše dodavatele). Financování zajišťujeme a můžete využití našich služeb, při prodeji Vaší nemovitosti. Doporučuji jednak prohlídku pozemku tak i nabízeného domu hned v sousedství. Možnost změnit na jiný dům dle požadavků a nebo jiné dva pozemky vedle sebe. Více u makléře. Ev. číslo: 31856. Energetický štítek: A (45 kWh/m2/rok).
  • Vložení inzerátu:
    15.7.2025
  • Kód:
    3987315
  • Typ nemovitosti:
    Rodinný dům
  • Typ budovy:
    Cihlová
  • Zastavěná plocha:
    196 m2
  • Podlahová plocha:
    162 m2
  • Plocha parcely:
    1331 m2
  • Terasa:
    Ano
  • Stav objektu:
    Ve výstavbě
  • Umístění objektu:
    Klidná část
  • Energetická náročnost:
    A - Mimoˇrádne úsporná
  • Ukazatel náročnosti:
    45 kWh/m2
  • Nabídky v okolí:
  • Informace o obci:
    Obec Uherský Brod má 17042 obyvatel, z toho 11846 v produktivním věku.
    V obci se nachází pošta.
    V obci se nachází škola, popř. školka.
    V obci se nachází zdravotní zařízení.
    V obci je rozvod kanalizace.
    V obci je rozvod městské vody.
    V obci je rozvod plynu.
Lokalita: Losy , Uherský Brod, okres Uherské Hradiště, Česká republika Losy, Uherský Brod, okr. Uherské Hradiště

Kontakt

Radim Vacula - Člen Realitní Komory ČR
Objednání prohlídky a více informací


Podobné nabídky v okolí


Volná pracovní místa ExpertPrace.cz
  • Objednání prohlídky a více informací
  •  
  • Poslat na e-mail
  •  

Zasílání odkazu na realitu emailem: