• Sledovat cenu
  •  

Zasílání upozornění emailem:

Rodinný dům, 121 m2 - Na Láně, Uherský Brod, okr. Uherské Hradiště

Cena: 9 795 000 Kč
Stav:Volný
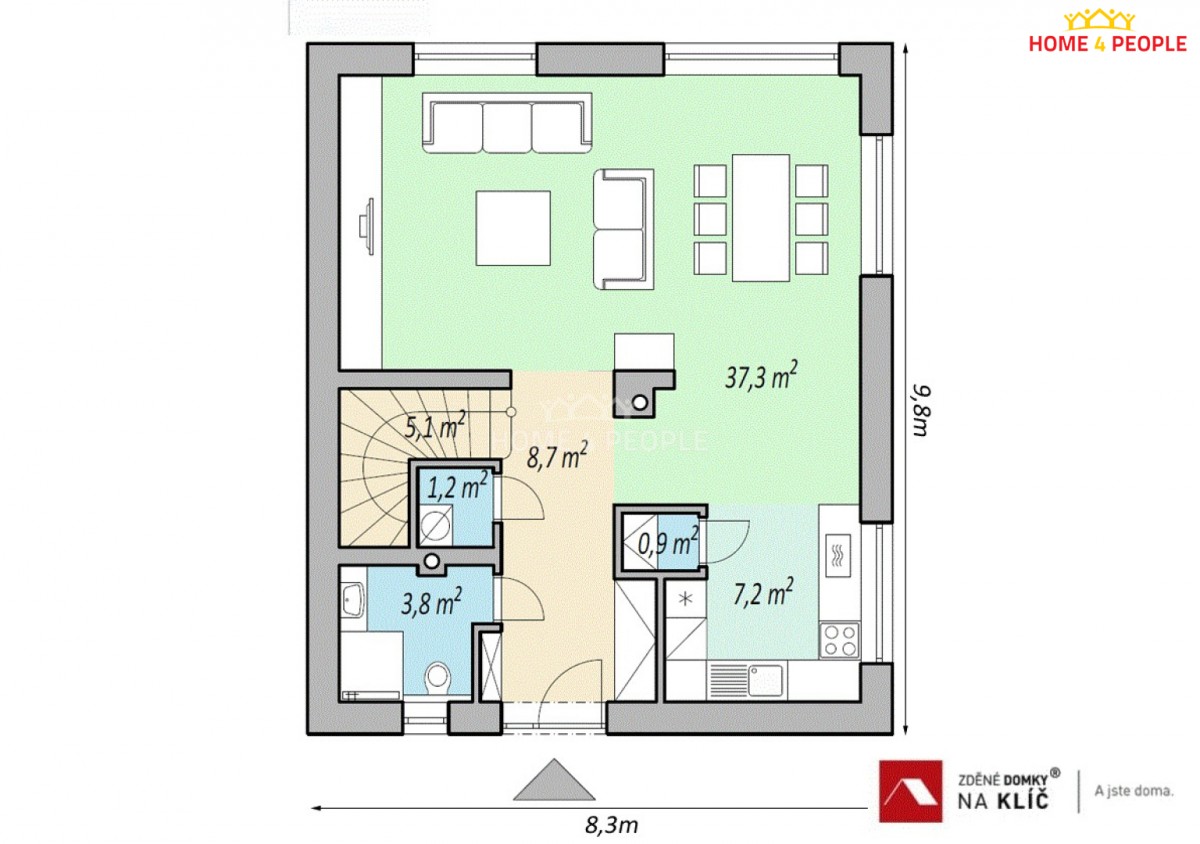
121 m2, cihlová, parcela 602 m2
Popis: Cena včetně RD (rodinný dům) na klíč, pozemku, připojení na sítě, provize i DPH. . Zprostředkujeme Vám exkluzivní nabídku výstavby nízkoenergetického rodinného domu typu NEXT 4+kk<.../abbr> nebo jako 5+kk v provedení na klíč v Uherském Brodě. Projekt patrového ekonomického domu zajištuje aktuální potřeby dnešní doby se zastavěnou plochou 81 m² a užitnou plochou 121 m². Jedná se o kvalitní zděnou stavbu z materiálu Porfix 300. Všechny důležité rozvody jsou koncentrované na jednom místě, což snižuje instalační náklady a poruchovost. Optimální půdorys poskytuje výborný poměr mezi velikostí plochy obvodových stěn a vnitřního prostoru. Minimální plocha obvodových stěn takto šetří náklady nejen při výstavbě, ale i při vytápění domu. Ekonomický dům je navrhnutý tak, aby měsíční provozní náklady na tento dům byly přibližně třikrát nižší než u bytu podobné podlahové výměry. Prostředky ušetřené na provozu můžete použít například na splátky hypotéky. Uvedená cena obsahuje základovou desku, projekt, DPH a stavba bude provedena na klíč a předána k okamžitému užívání. Kolaudace je samozřejmostí. (Součástí ceny není kuchyňská linka a světla – dokážeme za zvýhodněných podmínek zajisti přes naše dodavatele). V uvedené ceně můžete počítat také s finálními povrchovými úpravami exteriéru i interiéru, a to včetně elektroinstalací, sanitárního vybavení s bateriemi, interiérovými dveřmi včetně obložek a vytápění bude řešeno teplovodním podlahovým topením v kombinaci tepelného čerpadla se 180L zásobníkem na teplou vodu. Dle dohody změníme systém vytápění nebo vystavíme komín pro krbové kamna nebo pro využití krbové vložky. Kryté garážové stání spojené s domem nebo terasu za příplatek. Pro náročnější klienty máme nabídku nadstandardního vybavení chytré domácnosti, klimatizaci, externí žaluzie, rolety, rekuperaci nebo fotovoltaiku. Úprava dispozice nebo tvaru domu povolena. Délka výstavby od vydání stavebního povolení 12 - 13 měsíců. Inženýrské sítě v dosahu. Pozemek je svažitý o výměře 602 m² o rozměrech 22 m široký a 27 m dlouhý a je v územním plánu určený pro výstavbu rodinného bydlení a jeho poloha je situována mezi rodinnými domy. Více u makléře a to včetně dohodnutí se na prohlídce. Také nabízíme možnost si projít naše hotové domy. Změna za jiný dům je možná. Doporučuji. Ev. číslo: 31872. Energetický štítek: A (45 kWh/m2/rok).
  • Vložení inzerátu:
    24.7.2025
  • Kód:
    3987840
  • Typ nemovitosti:
    Rodinný dům
  • Typ budovy:
    Cihlová
  • Zastavěná plocha:
    81 m2
  • Podlahová plocha:
    121 m2
  • Plocha parcely:
    602 m2
  • Terasa:
    Ano
  • Stav objektu:
    Ve výstavbě
  • Umístění objektu:
    Klidná část
  • Energetická náročnost:
    A - Mimoˇrádne úsporná
  • Ukazatel náročnosti:
    45 kWh/m2
  • Nabídky v okolí:
  • Informace o obci:
    Obec Uherský Brod má 17042 obyvatel, z toho 11846 v produktivním věku.
    V obci se nachází pošta.
    V obci se nachází škola, popř. školka.
    V obci se nachází zdravotní zařízení.
    V obci je rozvod kanalizace.
    V obci je rozvod městské vody.
    V obci je rozvod plynu.
Lokalita: Na Láně , Uherský Brod, okres Uherské Hradiště, Česká republika Na Láně, Uherský Brod, okr. Uherské Hradiště

Kontakt

Radim Vacula - Člen Realitní Komory ČR
Objednání prohlídky a více informací


Podobné nabídky v okolí


Volná pracovní místa ExpertPrace.cz
  • Objednání prohlídky a více informací
  •  
  • Poslat na e-mail
  •  

Zasílání odkazu na realitu emailem: