• Sledovat cenu
  •  

Zasílání upozornění emailem:

Rodinný dům, 150 m2 - Střední, Libiš, okr. Mělník

Cena: 12 490 000 Kč
Stav:Volný
150 m2, cihlová, parcela 879 m2
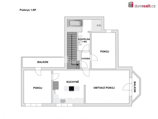
Popis: Předmětem nabídky je samostatně stojící, částečně podsklepený rodinný dům o dvou bytových jednotkách, 3+kk s koupelnou a samostatným sociální zařízení WC v přízemí, a bytem ...bbr title="3 pokoje + kuchyňský kout">3+kk s koupelnou a balkonem ve II. nadzemním podlaží. Dům stojí na vlastním, oploceném pozemku o velikosti 879m², k příslušenství patří garáž, dílny a letní kuchyně v západní části zahrady, které tvoří hranici se sousedním pozemkem.
Dům byl postaven v roce 1939, v rámci přístavby v roce 1988 byly provedeny stavební úpravy a generální oprava původní části objektu. K posledním úpravám a modernizaci došlo v letech 2016 - 2018, kdy byl dům kompletně nákladně revitalizován. Dům je napojen na obecní vodovod, kanalizaci, plyn a elektriku, má vlastní studnu. Každá bytová jednotka má samostatné měřiče.
Nemovitostí se nachází v katastrálním území Libiš, v obci Libiš. Obec Libiš leží přibližně 12 km severně od hlavního města Prahy a necelých 7 km od města Mělník. Bezprostřední souvislost a provázanost má Libiš se svým sousedním městem Neratovice, jehož byla od r. 1950 až do r. 1990 administrativní součástí. Od 24. listopadu 1990 je Libiš opět samostatnou obcí. Obec se skládá ze dvou architektonických částí – Staré a Nové Libiše. Libiš má vlastní základní školu, malé zdravotní středisko, podací poštu i obchodní středisko ve stylu venkovského obchodního domu. Přibližně tři desítky podnikatelů přispívají k rozvoji služeb i celkové dynamice života obce. V obci je základní škola i školka, podací pošta, ordinace praktického lékaře, dětského lékaře i zubaře. V obci Libiš působí celá řada volno časových oddílů a sdružení, zejména TJ Sokol Libiš s oddíly fotbalu, tenisu, stolního tenisu, badmintonu, beach volejbalu, Sbor dobrovolných hasičů Libiš, který je jedním z největších na okrese Mělník, včelaři, zahrádkáři, myslivci, střelecký oddíl a další.
V souladu s platným zákonem je nemovitost dočasně, do předložení Průkazu energetické náročnosti, zařazena do energetické třídy G. Více info požaduje v RK. Ev. číslo: 655184. Energetický štítek: G
  • Vložení inzerátu:
    31.3.2026
  • Kód:
    4185362
  • Typ nemovitosti:
    Rodinný dům
  • Typ budovy:
    Cihlová
  • Zastavěná plocha:
    399 m2
  • Podlahová plocha:
    150 m2
  • Plocha parcely:
    879 m2
  • Balkón:
    Ano
  • Sklep:
    Ano
  • Stav objektu:
    Velmi dobrý
  • Energetická náročnost:
    G - Mimořádne nehospodárná
  • Nabídky v okolí:
  • Informace o obci:
    Obec Libiš má 2069 obyvatel, z toho 1483 v produktivním věku.
    V obci se nachází pošta.
    V obci se nachází zdravotní zařízení.
    V obci je rozvod kanalizace.
    V obci je rozvod městské vody.
    V obci je rozvod plynu.
Lokalita: Střední , Libiš, okres Mělník, Česká republika Střední, Libiš, okr. Mělník

Kontakt

Antonín Čvančara


Podobné nabídky v okolí


Volná pracovní místa ExpertPrace.cz
  • Objednání prohlídky a více informací
  •  
  • Poslat na e-mail
  •  

Zasílání odkazu na realitu emailem: