• Sledovat cenu
  •  

Zasílání upozornění emailem:

Rodinný dům, 137 m2 - Cerhenice, okr. Kolín (již není v nabídce)

Cena: 8 870 000 Kč
Stav:archiv
137 m2, cihlová, parcela 1717 m2
Popis: Cerhýnky jsou hezká klidná obec přibližně se sto dvaceti domy. Část sousedství je obývána starousedlíky, v posledních letech se sem však poměrně hojně stěhují mladí lidé z větších měst. Nachází se bezprostředně městysu Cer...henice, pod který správně spadají. Cerhenice jsou co by kamenem dohodil od Peček a pokud nevíte kde jsou Pečky, tak to je město zhruba ve třech čtvrtinách cesty z Prahy do Kolína. Takže celkově velice dobře dostupné místo jak vlakem, tak autem.

Zde se v intravilánu obce k dnešnímu dni nalézá pozemek o výměře 1717m2 a na něm si dovolujeme nabídnout postavit pro vás dům na klíč.

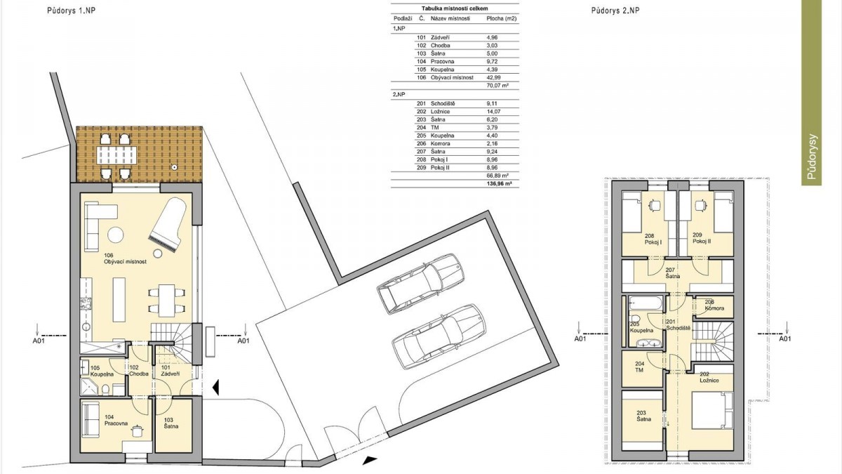
Jedná se o stavbu se sedlovou střechou, otevřenou do zahrady a oddělenou od veřejné komunikace cihlovou zdí. Stavba samotná je dvoupodlažní, kdy v přízemí najdete velký obytný prostor o velikosti 43m2 s kuchyní a jídelním koutem, s přístupem na terasu skrz francouzské okno. Dále je v přízemí pracovna či pokoj, koupelna a šatna. Nahoře v patře naleznete tři ložnice se šatnami, koupelnu, komoru a technickou místnost.

Stavba je navržena Ing. arch. Jitkou Beckovou přímo na míru na tento pozemek a součástí nabídky je kompletní výstavba na klíč dle projektu. Samozřejmostí je možnost klientských změn dle vašich představ a to jak dispozičních, tak v rámci dekorů povrchových materiálů.

Pozemek je opatřen přípojkou na veškeré sítě, včetně plynu, obecního vodovodu, spádové kanalizace a samozřejmě elektřiny. Napojení na tyto přípojky je samozřejmostí, zdroj vytápění si můžete v rámci klientských změn zvolit.

Do Cerhenice se dostanete autem za dvě minuty a pomalou chůzí za dvacet. A když mluvím o chůzi, připravte se na krásnou procházku po dlážděném chodníku skrz remízky a kolem snad nejhezčího a nejlépe vybaveného hřiště ve Středočeském kraji. Najdete tady dřevěné bludiště, lezeckou stěnu, prolézačky a klouzačky i vyhlídkovou věž. V Cerhenicích nakoupíte v Jednotě, pošlete dopis z pošty, zajdete si na pivo do Sokolovny, pro děti jsou nachystané dokonce dvě moc hezké mateřské školy a jedna základní. Vlakem odsud dojedete velice pohodně do Prahy nebo do Kolína a pokud by vám cokoliv chybělo, najdete to v pár kilometrů vzdálených Pečkách. Přímo z Cerhýnek jezdí přímý autobus do Peček, do Kolína a do Poděbrad.

Na pořízení pozemku i následnou výstavbu Vám rád pomohu zajistit financování, moji hypotéční kouzelníci spolupracují se všemi bankami na trhu. Stačí říct. Procesně se jedná o odkup pozemku od soukromého vlastníka a následnou výstavbu domu spolupracující stavební firmou.

Vůbec na nic nečekejte, vemte telefon a zavolejte mi.
  • Vložení inzerátu:
    28.6.2024
  • Kód:
    0004
  • Typ nemovitosti:
    Rodinný dům
  • Typ budovy:
    Cihlová
  • Zastavěná plocha:
    92 m2
  • Podlahová plocha:
    137 m2
  • Plocha parcely:
    1717 m2
  • Umístění objektu:
    Klidná část
  • Voda:
    místní zdroj, dálkový vodovod
  • Elektřina:
    230 V, 380 V
  • Doprava:
    vlak, silnice, autobus
  • Plyn:
    plynovod
  • Odpad:
    kanalizace
  • Energetická náročnost:
    B - Velmi úsporná
  • Nabídky v okolí:
  • Informace o obci:
    Obec Cerhenice má 1633 obyvatel, z toho 1138 v produktivním věku.
    V obci se nachází pošta.
    V obci se nachází škola, popř. školka.
    V obci se nachází zdravotní zařízení.
    V obci je rozvod kanalizace.
    V obci je rozvod plynu.

Podobné nabídky v okolí

Lokalita: Cerhenice, okres Kolín, Česká republika Cerhenice, okr. Kolín, Středočeský kraj