• Sledovat cenu
  •  

Zasílání upozornění emailem:

Rodinný dům, 125 m2 - Kaňk , Kutná Hora, okr. Kutná hora (již není v nabídce)

Cena: 2 166 000 Kč
Stav:archiv
125 m2, dřevostavba, parcela 1 m2
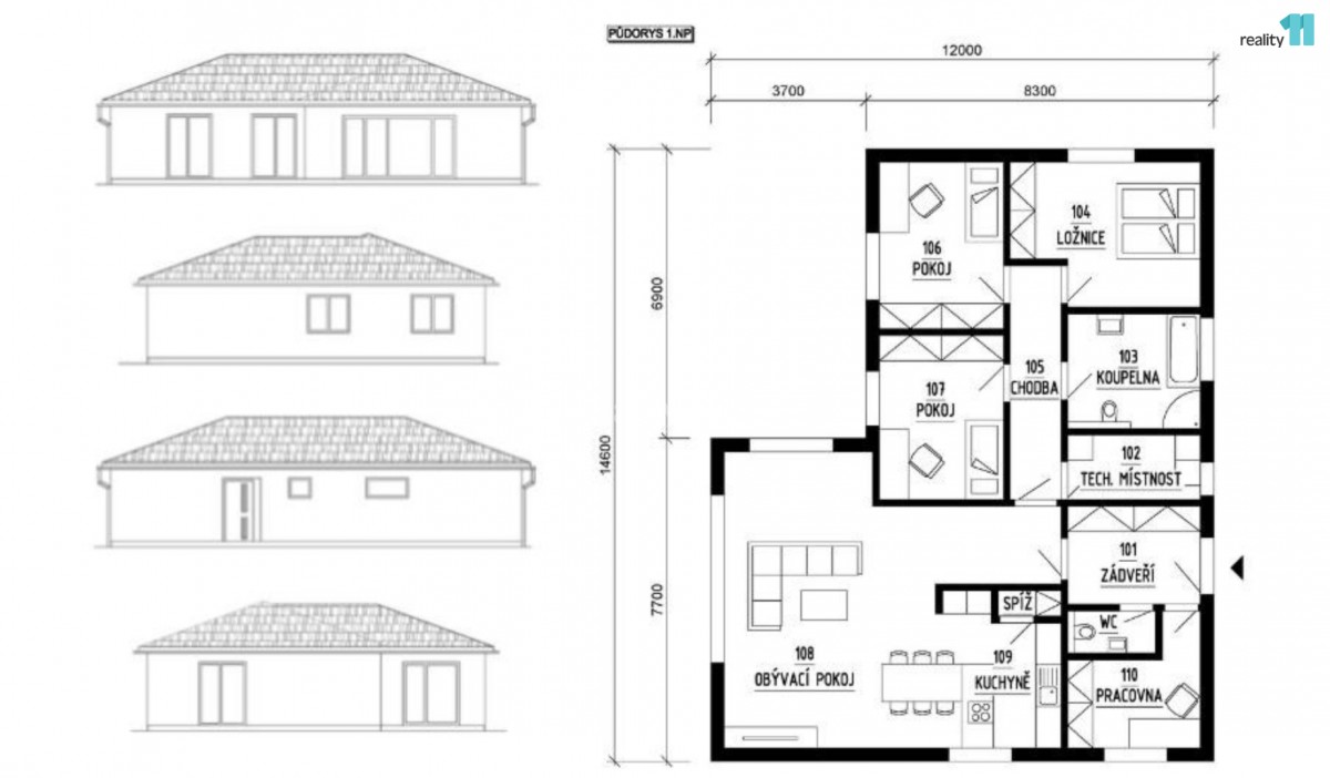
Popis: Nabídka výstavby rodinného domu SWING 125 v moc hezké lokalitě Kutné Hory.

Pokud hledáte ideální domov pro svou rodinu v malebném prostředí, kde se snoubí historie s moderním bydlením, máme pro vás skvělou nabídku! Předst...avujeme vám náš projekt výstavby rodinného domu SWING 125. Tento bungalov je ztělesněním komfortu, úsporného bydlení a estetického designu.

Perfektní dispozice pro rodinný život
Dům SWING 125 vás nadchne svou promyšlenou dispozicí 5+kk o užitné ploše 125 m². Hlavní obytná zóna se skládá z prostorného obývacího pokoje, jídelny a kuchyně, což tvoří srdce tohoto útulného domova. Tento prostor je ideální pro rodinná setkání a chvíle pohody.

Komfort a soukromí
Klid a soukromí pro až pětičlennou rodinu zajišťují dva pokoje o velikosti 11, 6 m² a hlavní ložnice o rozloze 13, 7 m². Nechybí zde ani pracovna pro home office a technická místnost pro uskladnění.

Výhody nízkoenergetické dřevostavby
Dům je navržen jako nízkoenergetický, což znamená, že budete šetřit na nákladech za energie. K tomu přispívá i kvalitní stavební systém PURLIVE, ze kterého je dům postaven.

Flexibilita a přizpůsobení
Dům lze dodat ve variantě pravé nebo levé, což umožňuje jeho zrcadlové otočení podle vaší preference a orientace pozemku. Tím dosáhnete maximálního využití slunečního světla a optimálního uspořádání na vašem pozemku.

Vše v ceně
V ceně domu 2. 166. 000 Kč včetně 12% DPH je zahrnuta i zvýhodněná cena výkresové části projektové dokumentace v hodnotě 25 000 Kč + DPH. Navíc cena obsahuje také statický posudek a pojištění stavby, což je velkou výhodou pro klidný průběh vašeho projektu. Rozsah_dodavky__Stavba_k_dokonceni_PURLIVE

Lokalita plná historie a přírody
Kutná Hora je město s bohatou historií a moc hezkým okolím. Nabízí ideální prostředí pro pohodlný život, s veškerou občanskou vybaveností a možnostmi pro volnočasové aktivity.

Prohlédněte si naši galerii, kde najdete vizualizace domu k dokončení a připravte se na nový domov, který splní veškeré vaše představy. Kontaktujte nás pro více informací a začněte plánovat svůj vysněný domov ještě dnes!

Výstavbu zajistíme v Královéhradeckém, Pardubickém a Středočeském kraji. Ev. číslo: 27050. Energetický štítek: G
  • Vložení inzerátu:
    1.1.2025
  • Kód:
    3905379
  • Typ nemovitosti:
    Rodinný dům
  • Typ budovy:
    Dřevostavba
  • Zastavěná plocha:
    150 m2
  • Podlahová plocha:
    125 m2
  • Plocha parcely:
    1 m2
  • Energetická náročnost:
    G - Mimořádne nehospodárná
  • Nabídky v okolí:

Podobné nabídky v okolí

Lokalita: Kaňk , Kutná Hora, okres Kutná hora, Česká republika Kaňk , Kutná Hora, okr. Kutná hora, Středočeský kraj