• Sledovat cenu
  •  

Zasílání upozornění emailem:

Rodinný dům, 120 m2 - Losy, Uherský Brod, okr. Uherské Hradiště (již není v nabídce)

Cena: 8 849 000 Kč
Stav:archiv
120 m2, cihlová, parcela 658 m2
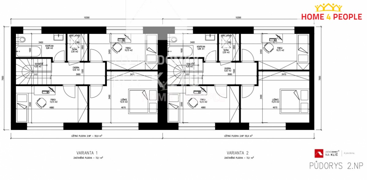
Popis: Cena včetně výstavby RD (rodinný dům), IS, příjezdové komunikace a DPH. . Zprostředkujeme Vám exkluzivní prodej zděného řadového rodinného domu typu ROW120 o velikosti 5+kk 12...0 m² v Uherském Brodě části Těšov. Patrový dům ROW120 je typ rodinného domu vhodný do rovinatého, ale i mírně svažitého terénu. Součásti uvedené ceny, která již zahrnuje DPH je dům na klíč, inženýrské sítě včetně připojeného místa EDG (EON), mimo plynu, příjezdová komunikace, veřejné osvětlení, pozemek a veškeré projektové práce a stavební povolení, také dvou parkovacích míst, chodníku, zastření pro popelnice a terasu s nekrytou konstrukcí. Přípojná místa budou vyvedena na pozemku. Pozemek (číslo. 9) o rozloze 658 m² je na klidném místě obce. Šíře pozemku je 10, 3 m. Navíc k nabízenému pozemku je i podíl na dalším pozemku za zahradou. Dle územního plánu je pozemek veden a schválen pro rodinné bydlení. Jedná se o zděnou stavbu a nabízí se ve variantě na klíč. Topení je řešeno nízko nákladovým podlahovým topením, rekuperací a fotovoltaickými panely. Uvedená cena domu obsahuje základovou desku, DPH a stavba bude provedena na klíč a předána po kolaudaci k okamžitému užívání. Parametry domu: užitná plocha 120 m² zastavěná plocha domu 72 m². V přízemí domu se nachází hlavní obytný prostor s odděleným kuchyňským koutem, sklad, úložný prostor pod schodištěm, technickou místnost a 2 krát sociální zařízení WC s umyvadlem dvě samostatné zařízené koupelny, pracovna a praktická místnost třeba pro zahradní nábytek. V patře se nachází 3 pokoje, koupelna s sociální zařízení WC a šatna. V blízkosti je veškerá občanská vybavenost. Možnost vybudovat na úkor pracovny garáž. Dotaci na fotovoltaické panely vyřídíme. Projekt zahrnuje výstavbu 10 domů. (Součástí ceny není kuchyňská linka a světla – dokážeme za zvýhodněných podmínek zajistit přes naše dodavatele). Financování zajišťujeme a můžete využití našich služeb, při prodeji Vaší nemovitosti. Doporučuji! Ev. číslo: 29912. Energetický štítek: A (39 kWh/m2/rok).
  • Vložení inzerátu:
    1.9.2023
  • Kód:
    3671559
  • Typ nemovitosti:
    Rodinný dům
  • Typ budovy:
    Cihlová
  • Zastavěná plocha:
    72 m2
  • Podlahová plocha:
    120 m2
  • Plocha parcely:
    658 m2
  • Terasa:
    Ano
  • Stav objektu:
    Ve výstavbě
  • Umístění objektu:
    Klidná část
  • Energetická náročnost:
    A - Mimoˇrádne úsporná
  • Ukazatel náročnosti:
    39 kWh/m2
  • Nabídky v okolí:
  • Informace o obci:
    Obec Uherský Brod má 17042 obyvatel, z toho 11846 v produktivním věku.
    V obci se nachází pošta.
    V obci se nachází škola, popř. školka.
    V obci se nachází zdravotní zařízení.
    V obci je rozvod kanalizace.
    V obci je rozvod městské vody.
    V obci je rozvod plynu.

Podobné nabídky v okolí

Lokalita: Losy , Uherský Brod, okres Uherské Hradiště, Česká republika Losy, Uherský Brod, okr. Uherské Hradiště