• Sledovat cenu
  •  

Zasílání upozornění emailem:

Rodinný dům, 120 m2 - Přehvozdí , okr. Kolín (již není v nabídce)

Cena: 6 000 000 Kč
Stav:archiv
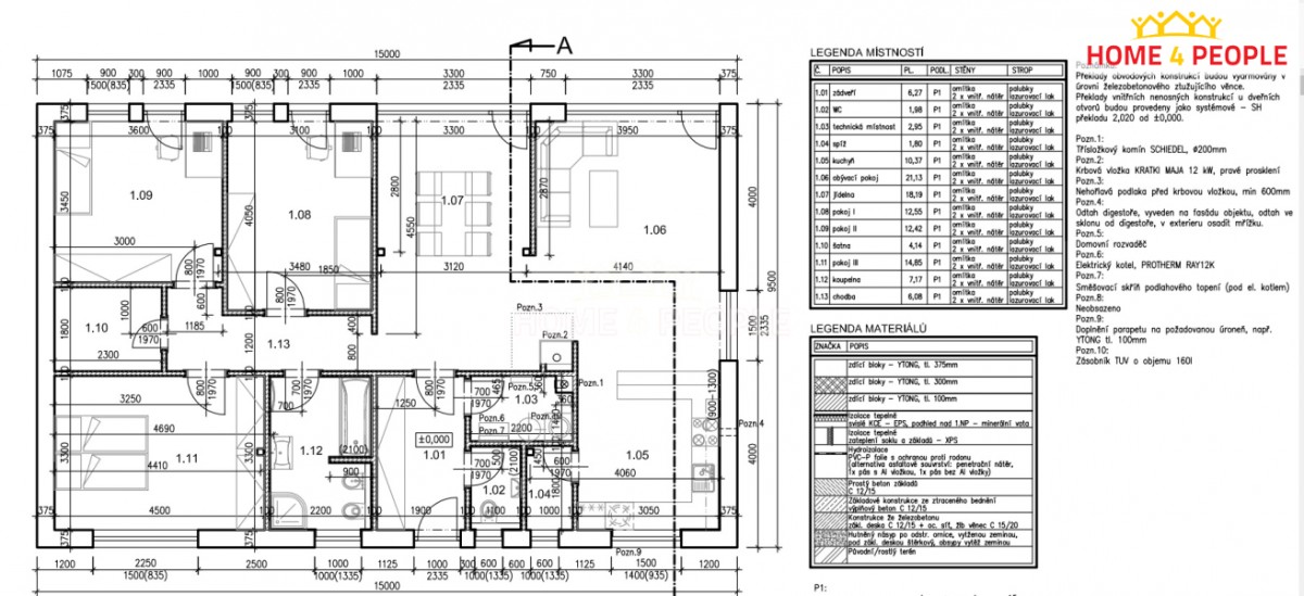
120 m2, cihlová, parcela 800 m2
Popis: + provize RK. Zprostředkujeme Vám ve výhradním zastoupení prodej pozemku 800 m² a hrubé stavby RD (rodinný dům) v dispozici 4+KK, 120 m², obec Přehvozdí, Praha - východ. Nespornou výhodou této nabídky je možnost zvolit... si pro dokončení stavby materiály a vybavení dle vlastní představy. Na pozemku je již zhotovena elektrická přípojka, vodovodní šachta s obecní vodou, odpad možno řešit připojením k přetlakové kanalizaci na hranici pozemku či případně ČOV (osobní vlastnictví). Pro topení v domě je počítáno s krbem na dřevo v kombinaci s elektrokotlem či tepelným čerpadlem. Objekt je částečně podsklepen. Pozemek je umístěn na velice hezkém místě, s výhledem do okolí a blízkostí luk a lesů, vhodných pro aktivní trávení času (kolo, běh, houbaření. . . ). Občanská vybavenost v Českém Brodě (vzdálen 5km, vlak s přímým spojením do Prahy či Kolína) či Kostelci nad Černými lesy (5km). Pro více informací kontaktujte makléře. Ev. číslo: 30565. Energetický štítek: B (139 kWh/m2/rok).
  • Vložení inzerátu:
    17.10.2023
  • Kód:
    3693829
  • Typ nemovitosti:
    Rodinný dům
  • Typ budovy:
    Cihlová
  • Zastavěná plocha:
    143 m2
  • Podlahová plocha:
    120 m2
  • Plocha parcely:
    800 m2
  • Sklep:
    Ano
  • Stav objektu:
    Ve výstavbě
  • Umístění objektu:
    Klidná část
  • Energetická náročnost:
    B - Velmi úsporná
  • Ukazatel náročnosti:
    139 kWh/m2
  • Nabídky v okolí:
  • Informace o obci:
    Obec Přehvozdí má 224 obyvatel, z toho 154 v produktivním věku.
    V obci je rozvod městské vody.

Podobné nabídky v okolí

Lokalita: Přehvozdí , okres Kolín, Česká republika Přehvozdí , okr. Kolín, Středočeský kraj