• Sledovat cenu
  •  

Zasílání upozornění emailem:

Rodinný dům, 116 m2 - Bezručova, Kolín (již není v nabídce)

Cena: 2 059 000 Kč
Stav:archiv
116 m2, dřevostavba, parcela 1 m2
Popis: Nabídka výstavby rodinného domu SWING 116 - Vaše nové bydlení na Kolínsku!


Hledáte ideální přízemní dům pro svou rodinu? Představujeme Vám jedinečnou nabídku výstavby rodinného domu SWING 116. Tato nemovitost, umístěná ...v klidné a strategické lokalitě Kolín, nabízí dokonalou rovnováhu mezi moderním designem, funkčností a pohodlím.


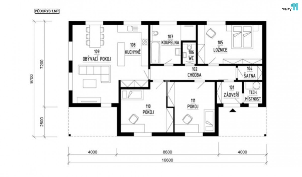
Dispozice a prostornost:
Dům typu bungalov s dispozicí 4+kk a užitnou plochou 116 m² je navržen pro maximální využití prostoru i pro užší pozemky. Celková zastavěná plocha činí 161 m². Centrem domova je světlý obývací pokoj, propojený s kuchyní a jídelním koutem, který tvoří srdce denního života a je ideální pro rodinná setkání. Klidová zóna, navržená pro pohodlí až pětičlenné rodiny, zahrnuje dvě prostorné ložnice a jeden pokoj o velikostech 15, 9 m², 15, 5 m² a 17, 7 m². Dále nechybí ani technická místnost a praktická šatna, které zajišťují dostatek úložných prostor.


Dokončení na míru a nízkoenergetická efektivita:
Dům SWING 116 je postaven ze stavebního systému PURLIVE, který zajišťuje nízkoenergetický standard a úsporu nákladů na vytápění. Projekt nabízí variantu pravého či levého otočení, což umožňuje přizpůsobení orientaci pozemku, aby co nejlépe vyhovoval vašim potřebám a představám.


Výhodná cena a projektová dokumentace:
Dům je nabízen za atraktivní cenu 2 095 000 Kč včetně 12% DPH, ve stavu dodávky k dokončení(Rozsah_dodavky__Stavba_k_dokonceni_PURLIVE .

Cena zahrnuje také výkresovou část projektové dokumentace v hodnotě 25 000 Kč + DPH, statický posudek i pojištění stavby. Tato nabídka platí pro vzdálenost 50 km od Zlína.


Vizualizace a prohlídka:
Neváhejte a prohlédněte si galerii domu s vizualizacemi stavby připravené k dokončení! Tyto vizualizace vám pomohou lépe si představit vaše nové bydlení a jeho možnosti.


Využijte této jedinečné příležitosti a pořiďte si svůj vysněný dům v Kolíně za bezkonkurenční cenu. Neváhejte nás kontaktovat pro více informací nebo sjednání osobní schůzky. Udělejte první krok k vašemu novému domovu ještě dnes!

Výstavbu zajistíme v Královéhradeckém, Pardubickém a Středočeském kraji. Ev. číslo: 27052. Energetický štítek: G
  • Vložení inzerátu:
    1.1.2025
  • Kód:
    3905375
  • Typ nemovitosti:
    Rodinný dům
  • Typ budovy:
    Dřevostavba
  • Zastavěná plocha:
    161 m2
  • Podlahová plocha:
    116 m2
  • Plocha parcely:
    1 m2
  • Energetická náročnost:
    G - Mimořádne nehospodárná
  • Nabídky v okolí:
  • Informace o obci:
    Obec Kolín má 30927 obyvatel, z toho 21374 v produktivním věku.
    V obci se nachází pošta.
    V obci se nachází škola, popř. školka.
    V obci se nachází zdravotní zařízení.
    V obci je rozvod kanalizace.
    V obci je rozvod městské vody.
    V obci je rozvod plynu.

Podobné nabídky v okolí

Lokalita: Bezručova , Kolín, okres Kolín, Česká republika Bezručova, Kolín