• Sledovat cenu
  •  

Zasílání upozornění emailem:

Rekreační objekt 84 m2 - Poddubí , Kaliště, okr. Praha-východ (již není v nabídce)

Cena: 4 990 000 Kč
Stav:archiv
84 m2, cihlová, parcela 1115 m2
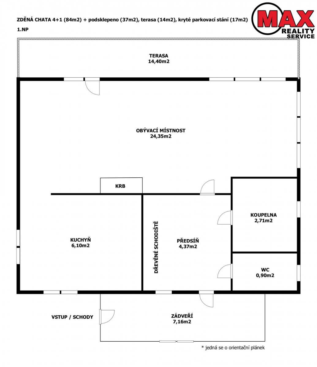
Popis: Ve výhradním zastoupení majitele Vám nabízíme prodej zděné chaty z roku 1981, která se nachází u břehu řeky Sázavy v obci Kaliště s vlastním mírně svažitým pozemkem o celkové velikosti 1. 115 m2 z toho 48m2...sup> zastavěné plochy.

Chata má vnitřní užitnou plochu (cca 84m2) + podsklepeno (37m2) + terasa (14m2) a kryté parkovací stání (17m2). Chata je zděná a skládá se z přízemí, podkroví a sklepa. Přízemí je tvořeno dřevěným zádveřím, předsíní se schodištěm do podkroví, velkou obytnou místností s krbem, kuchyní, terasou, koupelnou a toaletou. Podkroví je tvořeno schodištěm, třemi ložnicemi (jedna s balkonem) a prostornou předsíní se šatními skříněmi. Chata je celkově podsklepena, kde se nachází mj. i kotelna.

Chata byla využívána celoročně k trvalému bydlení je vytápěna elektrickým kotlem s rozvody do radiátorů případně kamny na tuhá paliva (oboje umístěno ve sklepě) nebo krbem (v obývací místnosti), ohřev vody boilerem. Na pozemku se nachází studna, ze které je přes zánovní čerpadlo zavedena voda do domu, dále je zavedena elektřina a jímka. Chata je v celkovém původním stavu. Na pozemku se dále nachází kryté parkovací stání (16, 70m2).

Obec Kaliště se nachází na pravém břehu řeky Sázavy, cca 30 km od Prahy. Díky své poloze u Sázavy a okolním lesům, je vyhledávaným cílem turistů a cykloturistů. Blízko obce se nachází dálnice D1, exit 29 (Hvězdonice). V těsné blízkosti chaty se nachází betonová pěší lávka přes Sázavu, která vede přímo k vlakové stanici Hvězdonice. U chaty se nachází autobusová zastávka Kaliště–Poddubí. V blízkosti je obec Chocerady, kde je kompletní občanská vybavenost a autobusové dopravní spojení do Prahy.

Předností této chaty je umístění u břehu Sázavy, nedaleko Prahy, ideální pro rodinu s dětmi, rybáře, milovníky koupání v řece a cyklistiky.

Pozn. Fotografie vnitřku chaty na vyžádání.

Energetická třída G - energetický štítek budovy (PENB) nebyl dodán.
  • Vložení inzerátu:
    25.8.2022
  • Kód:
    00129
  • K dispozici od:
    0.0.0
  • Typ nemovitosti:
    Chaty a chalupy
  • Typ budovy:
    Cihlová
  • Zastavěná plocha:
    48 m2
  • Podlahová plocha:
    84 m2
  • Plocha parcely:
    1115 m2
  • Balkón:
    Ano
  • Terasa:
    14 m2
  • Stav objektu:
    Dobrý
  • Umístění objektu:
    Klidná část
  • Elektřina:
    230 V
  • Doprava:
    silnice, dálnice, autobus, vlak
  • Komunikace:
    asfaltová

Podobné nabídky v okolí

Lokalita: Poddubí , Kaliště, okres Praha-východ, Česká republika Poddubí , Kaliště, okr. Praha-východ, Středočeský kraj