• Sledovat cenu
  •  

Zasílání upozornění emailem:

Pronájem skladu 202 m2 - Čestlice, okr. Praha-východ (již není v nabídce)

Cena: 165 Kč/m2/měsíc
Stav:archiv
202 m2, montovaná
Popis: Areál je umístěn v atraktivní komerční zóně Průhonice - Čestlice, přilehlé k dálnici D1 Praha - Brno. Nabízíme uvolněnou část k pronájmu od Října 2022:

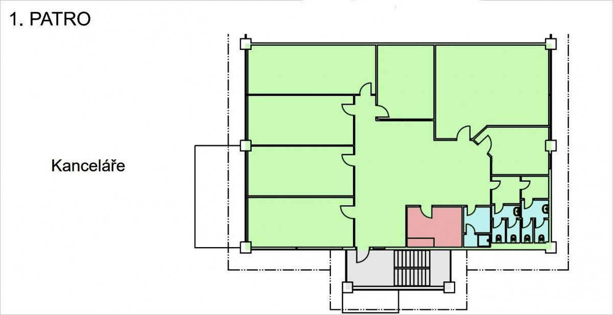
Skladovací plocha včetně showroom a zázemí 466 m2, Kancel...ářská plocha v 1. patře: 320 m2
Celková plocha: 786 m2
Parkovací plocha: ano
Čistá využitelná výška: 4 - 7 m
Vjezd dveře: Ano
Klimatizace: Ano

Cena nájmu sklady: cca: 165 Kč/m2/měsíc
Cena nájmu kanceláří: 225 Kč/m2/měsíc.

Nabídka se skládá z přízemní haly + showroom + zázemí, a dále v patře z Administrativního celku - viz plány. Nájem jako celek. Příjezd TIR. Vjezdová rolovací vrata. Zázemí pro sklad v přízemí, a samostatně pro kanceláře. Administrativní část variabilní - z lehkých posuvných příček. Klimatizace. Eu standart. TOP !

ARCHA průmyslová kancelář,
Tel: 608 827 778,
E - mail: archa. sklady@seznam. cz
www. archacs. cz
  • Vložení inzerátu:
    5.9.2022
  • Kód:
    2100
  • Typ nemovitosti:
    Sklad
  • Typ budovy:
    Montovaná
  • Podlahová plocha:
    202 m2
  • Plocha parcely:
    202 m2
  • Stav objektu:
    Novostavba
  • Telekomunikace:
    Internet
  • Elektřina:
    230 V
  • Doprava:
    dálnice, MHD, autobus
  • Topeni:
    ústřední plynové
  • Bezbariérový přístup:
    Ano
  • Nabídky v okolí:
  • Informace o obci:
    Obec Čestlice má 587 obyvatel, z toho 420 v produktivním věku.
    V obci se nachází pošta.
    V obci je rozvod kanalizace.
    V obci je rozvod městské vody.
    V obci je rozvod plynu.

Podobné nabídky v okolí

Lokalita: Čestlice, okres Praha-východ, Česká republika Čestlice, okr. Praha-východ, Středočeský kraj