• Sledovat cenu
  •  

Zasílání upozornění emailem:

Pronájem skladu 622 m2 - Čestlice, okr. Praha-východ (již není v nabídce)

Cena: 150 Kč/m2/měsíc
Stav:archiv
622 m2
Popis: Areál je umístěn v atraktivní "Komerční zóně Průhonice - Čestlice", přilehlé k dálnici D1 Praha - Brno. Nabízíme uvolněnou část k pronájmu dle dohody.

Skladovací plocha včetně kanceláře a sociální zařízení WC : 622 m...
p>2
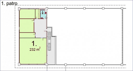
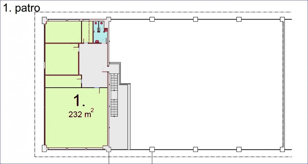
Krytý skladová / parkovací plocha pod admin. částí: 232 m2
Kancelářská plocha (připravená k dokončení): 232 m2

Parkovací plocha: ano
Čistá využitelná výška: 7 m
Vjezd Vrata: Ano
Klimatizace: Ano

Cena nájmu sklad - hala: 5, 90 EUR/m2/měsíc
Cena nájmu sklad - plocha: 0, 80 EUR/m2/měsíc
Cena nájmu kanceláří: 9, 50 EUR/m2/měsíc
.

Nabídka se skládá z haly 622 m2 + zázemí, Výška 7m, zpevněné plochy ( kryté ) 232 m2 a Administrativního celku - 232 m2. Nájem jako celek. Příjezd TIR. Vjezdová rolovací vrata. Zázemí pro sklad v přízemí, a samostatně pro kanceláře. Administrativní část variabilní - z lehkých posuvných příček. Bude modernizováno ke dni převzetí do nájmu. Klimatizace. Eu standart. TOP !

ARCHA průmyslová kancelář,
Tel: 608 827 778,
E - mail: archa. sklady@seznam. cz
www. archacs. cz
  • Vložení inzerátu:
    17.2.2019
  • Kód:
    1028/2392
  • Typ nemovitosti:
    Sklad
  • Podlahová plocha:
    622 m2
  • Stav objektu:
    Novostavba
  • Doprava:
    silnice, dálnice, MHD, autobus, vlak
  • Bezbariérový přístup:
    Ano
  • Energetická náročnost:
    B - Velmi úsporná
  • Nabídky v okolí:
  • Informace o obci:
    Obec Čestlice má 587 obyvatel, z toho 420 v produktivním věku.
    V obci se nachází pošta.
    V obci je rozvod kanalizace.
    V obci je rozvod městské vody.
    V obci je rozvod plynu.

Podobné nabídky v okolí

Lokalita: Čestlice, okres Praha-východ, Česká republika Čestlice, okr. Praha-východ, Středočeský kraj