• Sledovat cenu
  •  

Zasílání upozornění emailem:

Pronájem bytu 1+1, 40 m2 - Houškova, Plzeň, okr. Plzeň-město (již není v nabídce)

Cena: 9 000 Kč/měsíc
Stav:archiv
1+1, 40 m2, cihlová, OV, 3. podlaží
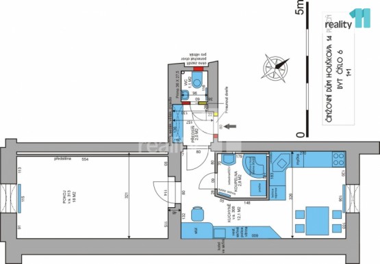
Popis: Záloha na služby 530, - Kč/měsíc na osobu + plyn a elektřina, kauce 18000, - Kč, provize RK 9000, - Kč. . Reality 11 Vám zprostředkují pronájem bytu 1+1, 40 m², ve 2. patře ...rekonstruovaného menšího cihlového domu na Slovanech. Prakticky řešený byt (viz plánek), po kompletní rekonstrukci a s nadstandardním vybavením, prostorný samostatný pokoj (17, 7 m²), kuchyně s jídelním koutem - kuchyňská linka s vestavěnými spotřebiči (plyn. varná deska, el. trouba, odsavač par, myčka) a lednice s mrazákem, vestavěná skříň a PC pracovní kout v předsíni, zařízená koupelna se sprchovým koutem, samostatné sociální zařízení WC s umyvadlem, plastová okna se žaluziemi a síty proti hmyzu, vlastní plynový kotel (vytápění, ohřev vody), přípojka kabelové TV a internetové připojeníu. Možnost dovybavení bytu pračkou (přípojka v koupelně). K bytu dále možnost pronájmu zabezpečené sklepní kóje. K dispozici upravený dlážděný dvůr se zahrádkou a posezením. Kvalitní bydlení v klidném menším nájemním domě, se zajištěným nadstandardním servisem a správou domu, v širším centru města, s veškerou občanskou vybaveností v blízkém okolí. Ihned k pronájmu. Ev. číslo: 25352. Energetický štítek: E (378 kWh/m2/rok).
  • Vložení inzerátu:
    9.5.2023
  • Kód:
    3581075
  • Typ nemovitosti:
    Byt
  • Typ budovy:
    Cihlová
  • Dispozice:
    1+1
  • Vlastnictví:
    OV
  • Podlaží:
    3
  • Podlahová plocha:
    40 m2
  • Sklep:
    Ano
  • Stav objektu:
    Po rekonstrukci
  • Energetická náročnost:
    E - Nehospodárná
  • Ukazatel náročnosti:
    378 kWh/m2
  • Nabídky v okolí:
  • Informace o obci:
    Obec Plzeň má 168808 obyvatel, z toho 116966 v produktivním věku.
    V obci se nachází pošta.
    V obci se nachází škola, popř. školka.
    V obci se nachází zdravotní zařízení.
    V obci je rozvod kanalizace.
    V obci je rozvod městské vody.
    V obci je rozvod plynu.

Podobné nabídky v okolí

Lokalita: Houškova , Plzeň, okres Plzeň-město, Česká republika Houškova, Plzeň, okr. Plzeň-město