• Sledovat cenu
  •  

Zasílání upozornění emailem:

Pronájem bytu 1+1, 35 m2 - Houškova, Plzeň, okr. Plzeň-město (již není v nabídce)

Cena: 8 500 Kč/měsíc
Stav:archiv
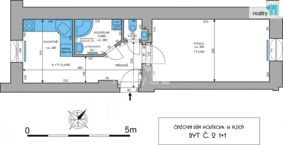
1+1, 35 m2, cihlová, OV, 1. podlaží
Popis: Záloha na služby 530, - Kč/měsíc na osobu + plyn a elektřina, kauce 17000, - Kč, provize RK 8500, - Kč. . Reality 11 Vám zprostředkují pronájem bytu 1+1, 35, 4 m², ve zvýšené...m přízemí menšího rekonstruovaného cihlového domu na Slovanech. Útulný byt praktického dispozičního řešení (viz plánek), po kompletní rekonstrukci s kvalitním vybavením - kuchyňská linka s vestavěnými spotřebiči (plyn. varná deska, el. trouba, odsavač par), vestavěné skříně v předsíni, zařízená koupelna se sprchovým koutem, samostatné sociální zařízení WC s umyvadlem, plastová okna se žaluziemi a síty proti hmyzu, vlastní plynový kotel (vytápění, ohřev vody), přípojka kabelové TV a internetové připojeníu. K bytu dále možnost pronájmu zabezpečené sklepní kóje. K dispozici upravený dlážděný dvůr se zahrádkou, k posezení a relaxaci. Kvalitní bydlení v klidném menším nájemním domě, se zajištěným nadstandardním servisem a správou domu, v širším centru města, s veškerou občanskou vybaveností v blízkém okolí. Ihned k pronájmu. Ev. číslo: 25824. Energetický štítek: E (378 kWh/m2/rok).
  • Vložení inzerátu:
    11.10.2023
  • Kód:
    3691045
  • Typ nemovitosti:
    Byt
  • Typ budovy:
    Cihlová
  • Dispozice:
    1+1
  • Vlastnictví:
    OV
  • Podlaží:
    1
  • Podlahová plocha:
    35 m2
  • Sklep:
    Ano
  • Stav objektu:
    Po rekonstrukci
  • Energetická náročnost:
    E - Nehospodárná
  • Ukazatel náročnosti:
    378 kWh/m2
  • Nabídky v okolí:
  • Informace o obci:
    Obec Plzeň má 168808 obyvatel, z toho 116966 v produktivním věku.
    V obci se nachází pošta.
    V obci se nachází škola, popř. školka.
    V obci se nachází zdravotní zařízení.
    V obci je rozvod kanalizace.
    V obci je rozvod městské vody.
    V obci je rozvod plynu.

Podobné nabídky v okolí

Lokalita: Houškova , Plzeň, okres Plzeň-město, Česká republika Houškova, Plzeň, okr. Plzeň-město