Prodej restaurace 246 m2 - Lublaňská 5, Praha 2, Vinohrady, Praha (již není v nabídce)
Cena:
10 000 000 Kč
Stav:archiv
246 m2, cihlová
Popis:
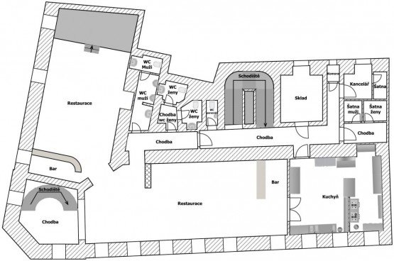
Prodej restaurace nedaleko stanice metra I. P. Pavlova. Jedná se o suteréní prostory s výměrou 246, 2 m2 (Vstup z přízemí, restaurace v suterénu). Prodej nemovitosti do osobního vlastnictví katastrem nemovitos...tí. Restaurace je nyní pronajatá nájemníkovi za 35 000 Kč měsíčně + energie, čínská restaurace, s tříměsíční výpovědní dobou. Nemovitost lze financovat i hypotečním úvěrem, kde při 30 % z vlastních zdrojů stačí bance doložit jako příjem současný výnos z pronájmu, s financováním pomůžeme.
- Vložení inzerátu:
5.5.2020
- Kód:
RM1603
- Typ nemovitosti:
Restaurace
- Typ budovy:
Cihlová
- Podlahová plocha:
246 m2
- Plocha parcely:
246 m2
- Stav objektu:
Po rekonstrukci
- Bezbariérový přístup:
Ano
- Nabídky v okolí: