Prodej restaurace 200 m2 - Lublaňská 3, Praha 2, Vinohrady, Praha (již není v nabídce)
Cena:
10 000 000 Kč
Stav:archiv
200 m2, cihlová
Popis:
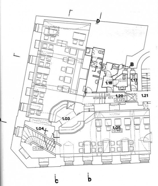
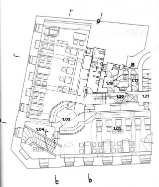
Prodej restaurace v postranní ulici nedaleko I. P. Pavlova. Jedná se o polosuteréní prostory s výměrou 200 m2 (částečně přízemí, větší část polosuterén), nyní pronajaté Vietnamské restauraci až do začátku roku... 2022. Vhodné jako investiční nemovitost s výnosem.
- Vložení inzerátu:
17.6.2019
- Kód:
RM1559
- Typ nemovitosti:
Restaurace
- Typ budovy:
Cihlová
- Podlahová plocha:
200 m2
- Plocha parcely:
200 m2
- Stav objektu:
Po rekonstrukci
- Bezbariérový přístup:
Ano
- Nabídky v okolí: