• Sledovat cenu
  •  

Zasílání upozornění emailem:

Prodej bytu 3+kk, 260 m2 - Breitfeldova 704, Karlín , Praha (již není v nabídce)

Cena: 15 900 000 Kč
Stav:archiv
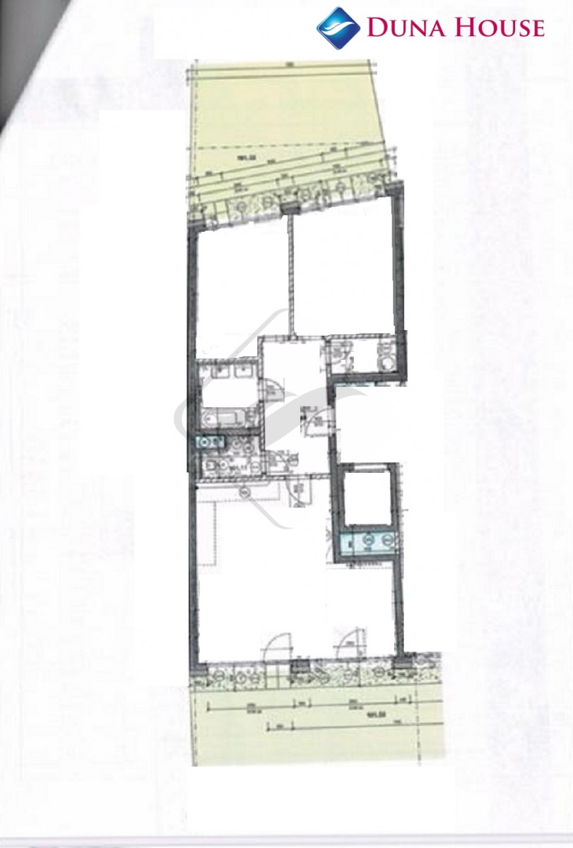
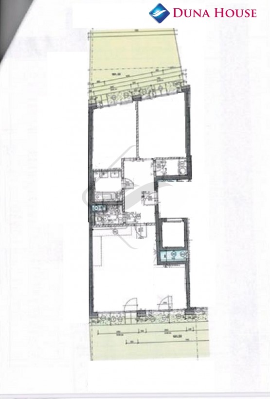
3+kk, 260 m2, cihlová, OV, 1. podlaží
Popis: Dovolujeme si Vám nabídnout byt v nedávno dokončeném domě ve velice vyhledávané a lukrativní lokalitě Prahy 8 v Karlíně hned u řeky Vltava.

Jedná se jednotku 3+kk o velikost...i 86, 4 m2 s vlastní předzahrádkou 174, 6 m2

Byt je situován v 1. NP (první nadzemní patro) nízkoenergetické novostavby s mnoha výhodami, řešený prostornou vstupní předsíní s místem pro úložné prostory, dále koupelnou s vanou a oddělenou toaletou, 2 ložnicemi se vstupy severní stranu zahrádky ( výhled na vodu) a velkým pokojem s kuchyňským koutem a dalším vstupem na jižní stranu zahrádky ( vnitroblok).
V ceně je sklepní kóje a parkovací místo.

Nadstandardní vybavení - podlahové vytápění, mramorové podlahy, klimatizace, elektrické žaluzie.
Pro rezidenty je k dispozici zelený vnitroblok, recepce či střešní terasa s výhledem na Prahu.

Budova je postavena v nízkoenergetickém standardu s průkazem energetické náročnosti budovy B – velice úsporná.
K dispozici je v rámci projektu např. i mimo jiné recepce s denním provozem.

Karlín, jakožto velice oblíbená část Prahy 8 nabízí mnoho možností potřebných k pohodlnému životnímu stylu, relaxaci a odpočinku i zábavy.
V okolí najdete vše co je potřebné od bank či bankomatů, obchodů, přes mnoho moc hezkých památek až po velké množství různých hospůdek, restaurací či barů.
Dopravní dostupnost je zde na výborné úrovni, tramvaj je přímo před domem a na metru jste do 5 - ti minut. Oběma prostředky se přímo do centra města dostanete do 15 - ti minut.

S financováním Vám rádi pomůžeme.

Vřele doporučuji.
  • Vložení inzerátu:
    20.6.2023
  • Kód:
    3628624
  • Typ nemovitosti:
    Byt
  • Typ budovy:
    Cihlová
  • Dispozice:
    3+kk
  • Vlastnictví:
    OV
  • Podlaží:
    1
  • Podlahová plocha:
    260 m2
  • Sklep:
    3 m2
  • Stav objektu:
    Novostavba
  • Umístění objektu:
    Klidná část
  • Voda:
    dálkový vodovod
  • Elektřina:
    230 V, 380 V
  • Topeni:
    ústřední dálkové
  • Odpad:
    kanalizace
  • Energetická náročnost:
    B - Velmi úsporná
  • Nabídky v okolí:

Podobné nabídky v okolí

Lokalita: Breitfeldova 704, Karlín , Praha, Česká republika Breitfeldova 704, Karlín , Praha