• Sledovat cenu
  •  

Zasílání upozornění emailem:

Prodej bytu 3+1, 81 m2 - Královopolská 3004, Brno, okr. Brno-město

Cena: 11 000 000 Kč
Stav:Volný
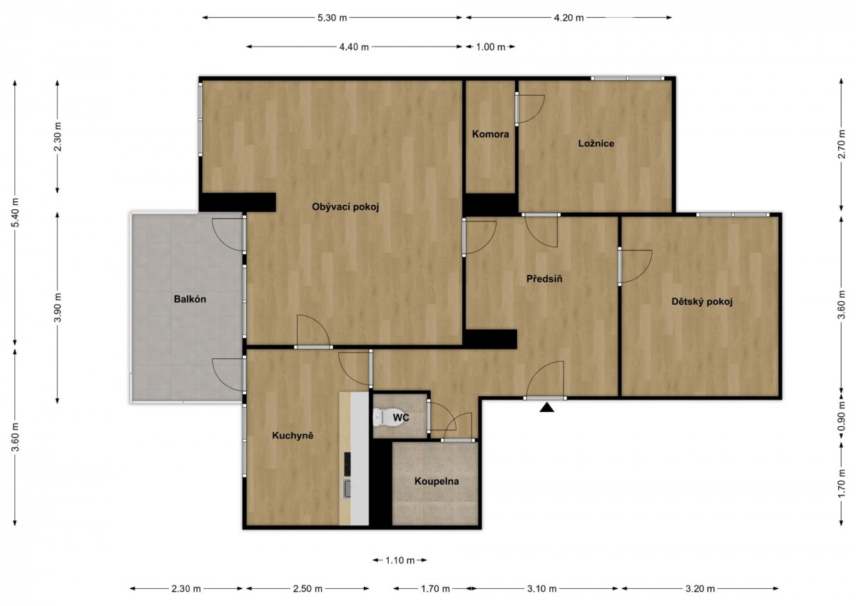
3+1, 81 m2, cihlová, OV, 3. podlaží
Popis: Nabízíme k prodeji cihlový byt o dispozici 3+1 s balkonem, který se nachází ve 3. nadzemním podlaží menšího bytového domu, nedaleko OC Rubín, v klidné ulici Královopolská, s moc h...ezkým výhledem na Brno, do zeleně na Wilsonův les.
Velkou výhodou je samotný dům, kde se nacházejí pouze tři bytové jednotky – na každém patře jeden byt. Díky tomu nabízí bydlení více soukromí, klidnější atmosféru a příjemné sousedské prostředí.
Byt je v původním, udržovaném stavu ze 70. let, což novému majiteli umožňuje rekonstrukci přesně podle vlastních představ. Současnou dispozici 3+1 je navíc možné poměrně jednoduše upravit na moderní 4kk.
Velkou předností jsou také tři samostatné neprůchozí pokoje, díky kterým je byt vhodný nejen pro rodinné bydlení, ale také jako investice na pronájem například studentům nebo mladým pracujícím.
K bytu náleží sklep a k dispozici je také společná místnost, na kočárky, kola. Za domem je možné využívat společný pozemek.
Upozorňujeme na možnost přikoupení garáže za částku 1. 5mil Kč, příjezd do garáže vám může sloužit jako druhé parkovací místo. V garáži je zavedena voda, elektřina, je zde i pracovní kout s ponkem. Upřednostníme prodej bytu tomu, kdo projeví zájem i o garáž, kterou se dá projít přímo do domu.
Velkým benefitem je balkon o výměře 9m2 s příjemným výhledem na jižní stranu.
Pokud hledáte byt v klidné a příjemné lokalitě s potenciálem úprav podle vlastních představ nebo zajímavou investiční příležitost, rád vám tuto nemovitost osobně představím na prohlídce.
Byt je o podlahové ploše (PP) 74, 9 m² (PP – podle zákona č. 72/1994 Sb. , tj. prostor, kam lze fyzicky vstoupit, bez vestavěných prvků a příček).
Pro lepší orientaci uvádíme také celkovou plochu cca 81 m² (CP), která byla dopočtena z PP průměrným nárůstem 8 % a zahrnuje prostor mezi příčkami a vestavěnými prvky (metodika dle občanského zákoníku).
Součástí bytu je balkon 9 m² a sklep 4 m², takže celková plocha k užívání činí cca 94 m².
Ve výměře neuvažujeme garáž, kterou však můžete dokoupit.
Pro více informací nebo domluvení termínu prohlídky mě neváhejte kontaktovat. Pokud jste si nevybrali z uveřejněné nabídky, zadejte nám prosím Vaši poptávku a my se pokusíme najít odpovídající nemovitost.
  • Vložení inzerátu:
    13.3.2026
  • Kód:
    BK222399
  • K dispozici od:
    0.0.0
  • Typ nemovitosti:
    Byt
  • Typ budovy:
    Cihlová
  • Dispozice:
    3+1
  • Vlastnictví:
    OV
  • Podlaží:
    3
  • Podlahová plocha:
    81 m2
  • Balkón:
    9 m2
  • Sklep:
    4 m2
  • Stav objektu:
    Velmi dobrý
  • Umístění objektu:
    Klidná část
  • Voda:
    dálkový vodovod
  • Elektřina:
    230 V
  • Doprava:
    silnice, dálnice, MHD, autobus, vlak
  • Topeni:
    ústřední plynové
  • Plyn:
    plynovod
  • Odpad:
    kanalizace
  • Komunikace:
    asfaltová
  • Energetická náročnost:
    E - Nehospodárná
  • Podle vyhlášky:
    c. 78/2013 Sb.
  • Ukazatel náročnosti:
    90.58 kWh/m2
  • Nabídky v okolí:
  • Informace o obci:
    Obec Brno má 371371 obyvatel, z toho 256490 v produktivním věku.
    V obci se nachází pošta.
    V obci se nachází škola, popř. školka.
    V obci se nachází zdravotní zařízení.
    V obci je rozvod kanalizace.
    V obci je rozvod městské vody.
    V obci je rozvod plynu.
Lokalita: Královopolská 3004, Brno, okres Brno-město, Česká republika Královopolská 3004, Brno, okr. Brno-město


Podobné nabídky v okolí


Volná pracovní místa ExpertPrace.cz
  • Objednání prohlídky a více informací
  •  
  • Poslat na e-mail
  •  

Zasílání odkazu na realitu emailem: