• Sledovat cenu
  •  

Zasílání upozornění emailem:

Prodej bytu 3+1, 67 m2 - Na Sídlišti, Světlá nad Sázavou, okr. Havlíčkův Brod

Cena: 4 990 000 Kč
Stav:Volný
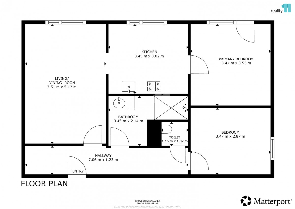
3+1, 67 m2, panelová, OV, 2. podlaží
Popis: . Hledáte byt po kompletní rekonstrukci, kde už stačí jen převzít klíče, nastěhovat se a neřešit žádné další investice? Máme pro vás byt 3+1 ve Světlé nad Sázavou, který se nacház...í v ulici Na Sídlišti, jen kousek od centra města.

Byt nabízí užitnou plochu 67 m² a bonusem je balkón o velikosti 4 m², ideální místo pro ranní kávu nebo chvíle odpočinku. Praktickým benefitem je také komora o velikosti 2 m² umístěná mimo bytovou jednotku, která poskytuje další prostor pro uskladnění věcí.

Dispozičně je byt řešen jako 3+1 a nabízí obývací pokoj, ložnici, kuchyni, další pokoj, koupelnu, samostatné sociální zařízení WC a prostornou chodbu, která poskytuje dostatek prostoru pro umístění úložných prostor.

V rámci rekonstrukce došlo k celkové výměně elektroinstalace a vodovodních rozvodů. Byt má nové omítky a všude byla položena nová podlahová krytina. Díky tomu nabízí bydlení bez nutnosti dalších investic.

Velkou výhodou je také samotná lokalita. Ulice Na Sídlišti ve Světlé nad Sázavou patří mezi vyhledávané části města – v docházkové vzdálenosti najdete obchody, školy, školky i další občanskou vybavenost a zároveň jste jen pár minut chůze od centra.

K bytu je k dispozici také 3D virtuální prohlídka, kterou vám na vyžádání velice rádi zašleme.

Pokud vás tato nabídka zaujala, neváhejte mě kontaktovat pro více informací nebo domluvení osobní prohlídky. Budu se na vás těšit při společném setkání. Ev. číslo: 28124. Energetický štítek: G
  • Vložení inzerátu:
    19.3.2026
  • Kód:
    4165327
  • Typ nemovitosti:
    Byt
  • Typ budovy:
    Panelová
  • Dispozice:
    3+1
  • Vlastnictví:
    OV
  • Podlaží:
    2
  • Podlahová plocha:
    67 m2
  • Balkón:
    Ano
  • Sklep:
    Ano
  • Stav objektu:
    Velmi dobrý
  • Energetická náročnost:
    G - Mimořádne nehospodárná
  • Nabídky v okolí:
  • Informace o obci:
    Obec Světlá nad Sázavou má 6851 obyvatel, z toho 5045 v produktivním věku.
    V obci se nachází pošta.
    V obci se nachází škola, popř. školka.
    V obci se nachází zdravotní zařízení.
    V obci je rozvod kanalizace.
    V obci je rozvod městské vody.
    V obci je rozvod plynu.
Lokalita: Na Sídlišti , Světlá nad Sázavou, okres Havlíčkův Brod, Česká republika Na Sídlišti, Světlá nad Sázavou, okr. Havlíčkův Brod

Kontakt

Bc. Jaroslav Fišer
Objednání prohlídky a více informací


Podobné nabídky v okolí


  • Objednání prohlídky a více informací
  •  
  • Poslat na e-mail
  •  

Zasílání odkazu na realitu emailem: