• Sledovat cenu
  •  

Zasílání upozornění emailem:

Prodej bytu 4+1, 71 m2 - Nové Město, Světlá nad Sázavou, okr. Havlíčkův Brod (již není v nabídce)

Cena: 3 790 000 Kč
Stav:archiv
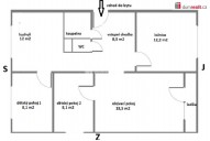
4+1, 71 m2, panelová, OV, 5. podlaží
Popis: uvedená cena zahrnuje právní servis a odměnu RK. Dumrealit. cz Vám nabízí prodej bytové jednotky 4+1 s lodžií, o podlahové ploše 71 m², OV (osobní vlastnictví), v těsné blízkosti c...entra města Světlá nad Sázavou. Byt se nachází v panelovém domě v 5 NP z celkových 6. Dispozice bytu: z prostorné chodby jsou samostatné vstupy na toaletu, do koupelny osazené umyvadlem a sprchovým koutem + prostor pro pračku a sušičku prádla. Dále samostatné vstupy do ložnice a prostorného obývacího pokoje, z kterého je vstup na lodžii, orientace obou pokojů je na jižní stranu. Z obývacího pokoje se vchází do dětského pokoje, s oknem směřujícím na západ. Dále je z chodby vstup do otevřené kuchyně a druhého dětského pokoje s orientací na sever. Byt od r. 2013 prošel inovacemi – vyzděné jádro, vodo a elektro instalace, sádrokartonové podhledy s led osvětlením, podlahové krytiny, keramické obklady, výměna interiérových dveří (Porta Doors) včetně obložek , před 4 roky byli instalované bezpečnostní vchodové dveře. Jednotka je velmi světlá a slunná s výhledem do sídliště a krajiny. K jednotce náleží sklepní koje a podíly k užívání kolárny, sušárny a společných prostor v suterénu domu. Měsíční náklady na bydlení činí 7. 000 Kč/4 osoby, plus zálohy na elektřinu. Výhodou jsou dobré sousedské vztahy v celém domě. Dům prošel v průběhu minulých let revitalizací – plastová okna, zateplení, fasáda, která se pravidelně čistí od mechu, výtah dle platné normy, revitalizace společných prostor, přípojka optického kabelu od Tlapnetu a od NejTV kabelová televize. Na letošní rok je plánovaná výměna oken ve společných prostorách. Díky dispozici domu, je veškerá občanská vybavenost v docházkové vzdálenosti (obchody, městský úřad, lékaři, pošta, MŠ, vlakové a autobusové nádraží . . . ), k volnočasovým aktivitám je možnost využití velkého množství sportovišť - dětské hřiště, tenisový kurt, cyklostezka a krásná příroda Posázaví. Parkování aut možno bezplatně na parkovištích u domu, v letošním roce je plánované rozšíření parkoviště. V případě zájmu doporučíme spolehlivé specialisty na financování nemovitosti. Pro více informací, volejte na uvedené telefonní číslo. Velice ráda Vás přivítám na osobní prohlídce. Ev. číslo: 650294. Energetický štítek: C (501 kWh/m2/rok).
  • Vložení inzerátu:
    20.4.2025
  • Kód:
    3976071
  • Typ nemovitosti:
    Byt
  • Typ budovy:
    Panelová
  • Dispozice:
    4+1
  • Vlastnictví:
    OV
  • Podlaží:
    5
  • Podlahová plocha:
    71 m2
  • Lodžie:
    Ano
  • Sklep:
    Ano
  • Stav objektu:
    Dobrý
  • Energetická náročnost:
    C - Úsporná
  • Ukazatel náročnosti:
    501 kWh/m2
  • Nabídky v okolí:
  • Informace o obci:
    Obec Světlá nad Sázavou má 6851 obyvatel, z toho 5045 v produktivním věku.
    V obci se nachází pošta.
    V obci se nachází škola, popř. školka.
    V obci se nachází zdravotní zařízení.
    V obci je rozvod kanalizace.
    V obci je rozvod městské vody.
    V obci je rozvod plynu.

Podobné nabídky v okolí

Lokalita: Nové Město , Světlá nad Sázavou, okres Havlíčkův Brod, Česká republika Nové Město, Světlá nad Sázavou, okr. Havlíčkův Brod