• Sledovat cenu
  •  

Zasílání upozornění emailem:

Prodej bytu 2+kk, 63 m2 - U Bažantnice 356, Heřmanův Městec, okr. Chrudim (již není v nabídce)

Cena: 3 990 000 Kč
Stav:archiv
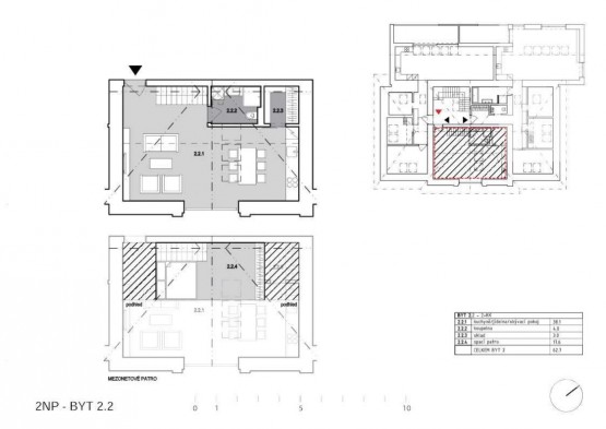
2+kk, 63 m2, OV, 2. podlaží
Popis: Láká Vás bydlení v centru města, ale zároveň kousek do přírody? Chcete nové bydlení bez starostí? Líbí se Vám vůně novostavby a klasický panelový byt Vás neláká?

V tom případě jsou tyto řádky určeny přímo Vám, protože tako...vý byt se často neprodává!

Tento byt je o dispozici 2+kk mezonet s celkovou užitnou plochou 63m. Ve spodní části bytu se nachází vstup do bytu, kterým se dostanete do společenské místnosti s kuchyňským koutem a obývacím pokojem, ve kterém je nádhernou dominantou obrovské okno, díky kterému bude v bytě dostatek světla, které bude dělat byt příjemně prosluněným. Z této místnosti můžete vstoupit do koupelny s toaletou. Hned vedle kuchyňského koutu se nachází velice prakticky místnost, která se dá využít například jako sklad potravin nebo šatna. Po schodech se pak dostanete do druhého patra tohoto bytu, kde se nachází místnost, která může být využívána jako ložnice.

Bytový dům, ve kterém se byt nachází je díky preciznosti a přístupu investora velice příjemně navržen v kombinaci původních materiálů s kombinací nových technologicky vyhovujících materiálů k dokonalému a příjemnému žití v budově s krásnou historii a přesto rázem rekonstrukce v novostavbě.

Bytový dům se nachází téměř v centru města, takže budete mít v příjemné blízkosti všechny potřebné služby, jako jsou obchody nejen s potravinami, ale se všemi domácími potřebami. Zároveň se pár kroky dostanete do dvou moc hezkých parků, které jsou ideální pro relax a načerpání spousty nové energie. Ve městě je také mateřská a základní škola, kavárny, cukrárna, několik restaurací, pizzerie, kino, pošta, stavebniny, sportovní hala, fotbalové hřiště, workoutové hřiště a čerpací stanice. Město Heřmanův Městec se nachází na úpatí Železných hor, takže o možnosti výletů do blízké přírody nebudete mít nouzi.

Zvu Vás tímto na prohlídku, kde Vám rád zodpovím veškeré další dotazy.
Díky zajímavým možnostem, pro Vás připravíme návrh hypotečního úvěru přímo na míru.
Těšit se na Vás bude makléř Miloš Sedlák
  • Vložení inzerátu:
    25.10.2022
  • Kód:
    17508
  • Typ nemovitosti:
    Byt
  • Dispozice:
    2+kk
  • Vlastnictví:
    OV
  • Podlaží:
    2
  • Podlahová plocha:
    63 m2
  • Plocha parcely:
    63 m2
  • Stav objektu:
    Novostavba
  • Bezbariérový byt:
    Ano
  • Telekomunikace:
    Telefon, Internet
  • Voda:
    dálkový vodovod
  • Elektřina:
    230 V
  • Doprava:
    vlak, silnice, autobus
  • Topeni:
    ústřední elektrické
  • Odpad:
    kanalizace
  • Komunikace:
    asfaltová
  • Bezbariérový přístup:
    Ano
  • Energetická náročnost:
    B - Velmi úsporná
  • Nabídky v okolí:
  • Informace o obci:
    Obec Heřmanův Městec má 4926 obyvatel, z toho 3346 v produktivním věku.
    V obci se nachází pošta.
    V obci se nachází škola, popř. školka.
    V obci se nachází zdravotní zařízení.
    V obci je rozvod kanalizace.
    V obci je rozvod městské vody.
    V obci je rozvod plynu.

Podobné nabídky v okolí

Lokalita: U Bažantnice 356, Heřmanův Městec, okres Chrudim, Česká republika U Bažantnice 356, Heřmanův Městec, okr. Chrudim