• Sledovat cenu
  •  

Zasílání upozornění emailem:

Prodej bytu 4+1, 86 m2 - Čáslavská, Chrudim (již není v nabídce)

Cena: 4 680 000 Kč
Stav:archiv
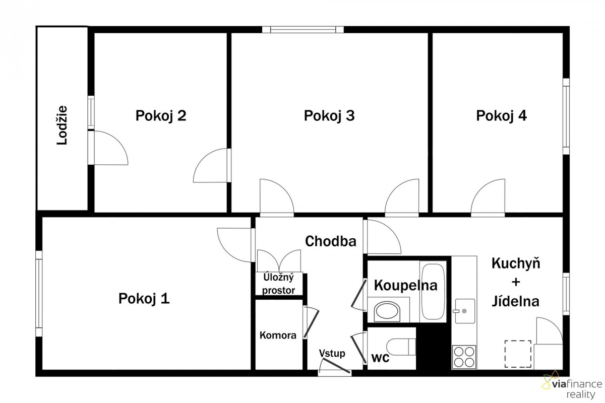
4+1, 86 m2, panelová, OV, 5. podlaží
Popis: Dětské hřiště za domem, zastávka před domem a vše důležité sotva 10 minut chůze. Hledáte bydlení pro velkou rodinu s perfektní vybaveností hned po ruce? Tak to přijďte na prohlídku bytu v Chrudimi.

Byt má dispozici ...
title="4 pokoje + 1 kuchyň">4+1 a celkovou výměru 86, 25 m2. Je tu kuchyň s jídelnou, obývací pokoj, 3 ložnice, koupelna, samostatné sociální zařízení WC, lodžie a komora. K bytu patří sklep o velikosti 4 m2 a nechybí ani společná sušárna a kolárna. Leží ve 5. patře panelového domu, ale žádných výšlapů se bát nemusíte – k bytu vás vyveze výtah.

V bytě proběhla v roce 2017 částečná rekonstrukce. Koupelna s vanou, samostatné sociální zařízení WC, kuchyňská linka i okna jsou v parádním stavu a vás tak nečeká žádné bourání, sekání ani vrtání.

Všechny čtyři pokoje mají velká okna – na čtení knížek v obýváku i psaní úkolů v pokojíčku bude vždycky dost denního světla. Jedna z ložnic má přístup na lodžii s výhledem do okolí.

Až vám dojdou nápady, čím zaměstnat děti doma, stačí je vypustit za dům – je tu malý parčík s dětským hřištěm, kde se mohou vyřádit. A kdyby to bylo málo, velký městský park s dopravním a dětským hřištěm je od domu sotva 10 minut chůze.

Daleko to nebudete mít ani za nezbytnými pochůzkami. V blízkém okolí jsou doktoři, obchody, lékárna, škola, školka i zastávka autobusu a na náměstí je slabá čtvrthodinka.
  • Vložení inzerátu:
    22.10.2024
  • Kód:
    01110
  • K dispozici od:
    0.0.0
  • Typ nemovitosti:
    Byt
  • Typ budovy:
    Panelová
  • Dispozice:
    4+1
  • Vlastnictví:
    OV
  • Podlaží:
    5
  • Podlahová plocha:
    86 m2
  • Balkón:
    Ano
  • Sklep:
    4 m2
  • Stav objektu:
    Dobrý
  • Umístění objektu:
    Klidná část
  • Telekomunikace:
    Internet
  • Voda:
    dálkový vodovod
  • Elektřina:
    230 V
  • Odpad:
    kanalizace
  • Energetická náročnost:
    G - Mimořádne nehospodárná
  • Nabídky v okolí:
  • Informace o obci:
    Obec Chrudim má 23240 obyvatel, z toho 16363 v produktivním věku.
    V obci se nachází pošta.
    V obci se nachází škola, popř. školka.
    V obci se nachází zdravotní zařízení.
    V obci je rozvod kanalizace.
    V obci je rozvod městské vody.
    V obci je rozvod plynu.

Podobné nabídky v okolí

Lokalita: Čáslavská , Chrudim, okres Chrudim, Česká republika Čáslavská, Chrudim