• Sledovat cenu
  •  

Zasílání upozornění emailem:

Prodej bytu 2+kk, 55 m2 - Komárovská, Brno, okr. Brno-město (již není v nabídce)

Cena: 7 946 118 Kč
Stav:archiv
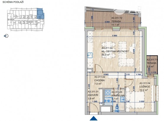
2+kk, 55 m2, skeletová, OV, 3. podlaží
Popis: Dny otevřených dveří v pátek 21. 3. 2025 od 9 do 16 hod a v sobotu 22. 3. 2025 od 9 do13 hod. Prohlídka s výkladem každou hodinu v uvedených časech. Na stránkách projektu možnost registrace na jednotlivé časy. Přijďte si ...prohlédnout Realitní projekt roku 2023.

Najděte svůj nový domov v Realitním projektu roku 2023 v kategorii cena veřejnosti. Allrisk MERIDIEM vytváří jedinečné místo nadčasového životního stylu pro podnikání i rodinné bydlení vznikající mezi ulicemi Svatopetrská a Komárovská v Brně. Je součástí unikátní a největší urbanistické restrukturalizace nové jižní čtvrti Trnitá v celé historii města. Jedná se o polyfunkční objekt s praktickým rozmístěním jednotlivých částí. Projekt se skládá ze tří základních objektů A1, A2, A3 a B. Celý komplex vytváří nové území s výraznou dominantou a celkově utváří nový funkční veřejný prostor. Allrisk MERIDIEM přináší novou podobu moderního a nadčasového bydlení a životního stylu celkově.

V tomto projektu nabízíme byt 2+kk 55, 9m2 se 2 terasami 11+2, 5m2, který je umístěn ve 3. nadzemním podlaží. Pokoje jsou prosvětleny okny orientovanými jižním směrem. Byt je oddělen od společné chodby zádveřím. Koupelna je vybavená sprchovým koutem, umyvadlem, a sociální zařízení WC, s dostatečným prostorem na pračku.
Prostorný obývací pokoj s kuchyňským koutem i ložnice mají vlastní vstupy terasy.
Byt je řešen ve vysokém standardu, který zahrnuje kvalitní podlahy, obklady, dlažby a sanitární předměty v nejlepší kvalitě.
K jednotce je možné za výhodnou cenu přikoupit garážové parkovací stáni a sklepní kóji.

K rezervaci bytu stačí 16% z celkové ceny, zbylých 84 % se hradí až po vydání kolaudačního rozhodnutí (do 30. 9. 2025).
Byt lze využit k vlastnímu bydlení nebo jako investici, spojenou s následným pronájmem.

v projektu také najdete:
* široké vjezdy do garáží
* sklepní koje jsou přímo u parkovacích stání
* příprava na wallbox ( el. nabíjení aut)
* klimatizace a venkovní žaluzie ve všech jednotkách
* 3m výšky stropu 
* rekuperace
* příprava na chytrou domácnost

Svojí polohou je lokalita Allrisk MERIDIEM v docházkové vzdálenosti historického centra města Brna i rekreačního a relaxačního vyžití v podobě parků, koupání v biotopu a sportovních hřišť pro děti i dospělé. Pro aktivní odpočinek je zde cyklostezka podél řeky Svratky.
Perfektní občanská vybavenost, vše v pěší vzdálenosti, popř. dojezdem MHD z nedaleko nově vzniklé odhlučněné zastávky, zároveň je tu napojení na městský okruh a dálniční síť.
Pro podrobnější informace vyplňte kontaktní formulář nebo navštivte webové stránky. Rádi Vám poté představíme projet ve speciální prezentační místnosti nacházející se v těsné blízkosti stavby.

Financování možné hypotékou či úvěrem ze stavebního spoření, s jejich vyřízením Vám rádi pomůžeme.
Při koupi nemovitosti na investici vám naše společnost může nabídnout služby zajištění vhodného nájemníka. Pokud jste si nevybrali z uveřejněné nabídky, zadejte nám prosím Vaši poptávku a my se pokusíme najít odpovídající nemovitost.
  • Vložení inzerátu:
    6.9.2023
  • Kód:
    BK161466 - 15
  • K dispozici od:
    0.0.0
  • Typ nemovitosti:
    Byt
  • Typ budovy:
    Skeletová
  • Dispozice:
    2+kk
  • Vlastnictví:
    OV
  • Podlaží:
    3
  • Podlahová plocha:
    55 m2
  • Terasa:
    13 m2
  • Stav objektu:
    Ve výstavbě
  • Umístění objektu:
    Centrum
  • Telekomunikace:
    Internet
  • Voda:
    dálkový vodovod
  • Elektřina:
    230 V
  • Doprava:
    silnice, dálnice, MHD, autobus, vlak
  • Odpad:
    kanalizace
  • Komunikace:
    asfaltová
  • Energetická náročnost:
    B - Velmi úsporná
  • Podle vyhlášky:
    c. 78/2013 Sb.
  • Ukazatel náročnosti:
    29 kWh/m2
  • Nabídky v okolí:
  • Informace o obci:
    Obec Brno má 371371 obyvatel, z toho 256490 v produktivním věku.
    V obci se nachází pošta.
    V obci se nachází škola, popř. školka.
    V obci se nachází zdravotní zařízení.
    V obci je rozvod kanalizace.
    V obci je rozvod městské vody.
    V obci je rozvod plynu.

Podobné nabídky v okolí

Lokalita: Komárovská , Brno, okres Brno-město, Česká republika Komárovská, Brno, okr. Brno-město