Prodej bytu 2+kk, 44 m2 - Rejhotice , Loučná nad Desnou, okr. Šumperk (již není v nabídce)
Cena:
4 090 000 Kč
Stav:archiv
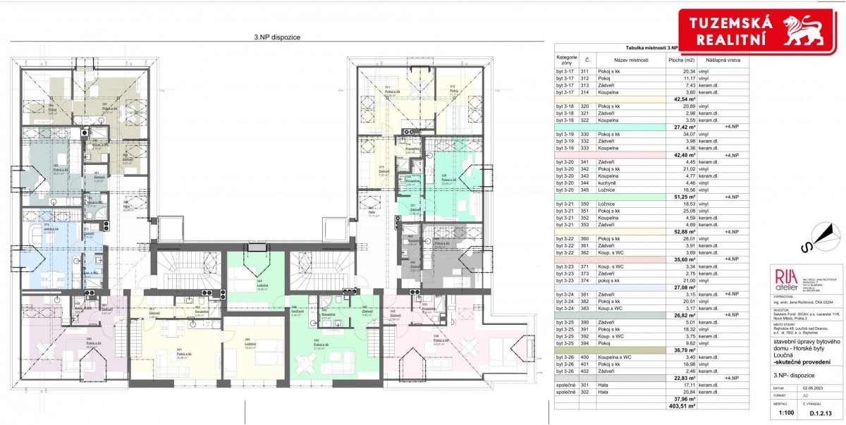
2+kk, 44 m2, cihlová, OV, 3. podlaží
Popis:
Nechte svůj pohled procestovat panoramatickými vrcholy Jeseníků z pohodlí vašeho nového domova. Ano, z tohoto místa se nabízí pohled tak kouzelný, že vám bere dech. A toto místo může být vaším.
Představujeme vám Údolí R...ejhotice, unikátní rezidenční projekt, kde se krása okolní přírody setkává s luxusem moderního bydlení. V těchto stěnách dýchá historie, jelikož se nacházíte v zrekonstruované prvorepublikové vile z 30. let.
Nabízíme celkem 26 horských bytů s komfortním designovým vybavením a různými dispozicemi, od útulného 1+kk až po prostorné 3+kk, s velikostmi od 32 do 88 m2. A co je na tom nejlepší? Některé z těchto bytů jsou mezonetové, čímž se vaše obytné prostory rozprostírají do dvou úrovní, což přidává pocit prostoru a otevřenosti.
Prostor ve vile je navržen tak, aby poskytl rezidentům vše, co potřebují. Úschovna pro kola a lyže s možností nabíjení elektrokol, vyhrazené parkovací místo s možností nabíjecí stanice pro elektromobily a dokonce i dětské hřiště a grilovací plocha pro ty speciální chvíle strávené s rodinou a přáteli.
A výhody projektu Údolí Rejhotice nekončí tady. Investování do bytu je skvělou formou pasivního příjmu. S naším programem VBReal vám zaručujeme každoměsíční výnos až 7, 34% z kupní ceny ročně, bez ohledu na obsazenost. A navíc, 14 dní v roce si můžete svůj nový byt užít sami. Zní to příliš dobře, aby to byla pravda? Věřte nám, je to tak.
Nyní se tedy ptáte: jak to všechno zvládneme? My se postaráme o všechny potřebné úkoly, od komunikace s hosty až po úklid, takže vám zbyde jen relaxovat a užívat si. . .
Čím dál tím více lidí v dnešní době touží po útočišti, kde mohou uniknout rychlosti moderního života a najít klid a harmonii. Pokud se také nacházíte na této cestě, pak jste na správném místě.
- Vložení inzerátu:
18.6.2023
- Kód:
323
- Typ nemovitosti:
Byt
- Typ budovy:
Cihlová
- Dispozice:
2+kk
- Vlastnictví:
OV
- Podlaží:
3
- Podlahová plocha:
44 m2
- Stav objektu:
Novostavba
- Bezbariérový byt:
Ano
- Voda:
dálkový vodovod
- Doprava:
vlak, silnice
- Topeni:
ústřední plynové
- Odpad:
kanalizace
- Komunikace:
asfaltová
- Bezbariérový přístup:
Ano
- Nabídky v okolí: