Prodej bytu 1+kk, 48 m2 - Rejhotice , Loučná nad Desnou, okr. Šumperk (již není v nabídce)
Cena:
4 090 000 Kč
Stav:archiv
1+kk, 48 m2, cihlová, OV, 3. podlaží
Popis:
V srdci malebných Jeseníků, leží skvost jménem Údolí Rejhotice. Toto místo, kde se snoubí kouzlo přírody s moderním bydlením, je jako stvořené pro ty, kteří hledají útočiště před shonem moderního světa.
Loučná nad Desn...ou, je obklopena skiareály a turistickými trasami, které nabízejí nekonečné možnosti pro aktivní odpočinek. Ať už jste fanouškem sjezdových lyží, milujete horskou turistiku a cyklistiku, nebo hledáte klid a odpočinek, tato lokalita vám nabídne vše.
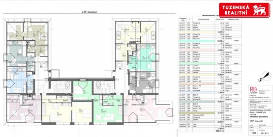
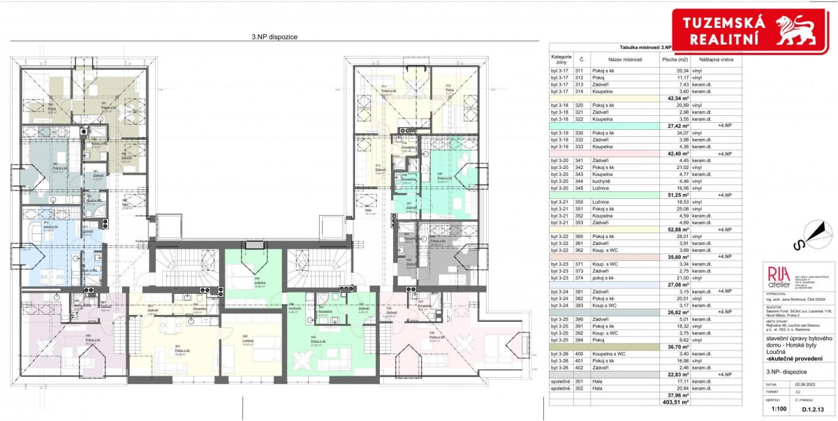
Projekt Údolí Rejhotice představuje 26 horských bytů s komfortním designovým vybavením. Můžete si vybrat z různých dispozic, od 1+kk až po 3+kk, s výměrou od 32 do 88 m2. Některé byty jsou dokonce mezonetové, což přidává další rozměr prostoru a luxusu.
Každý byt je vybaven designovým vybavením, které dokonale ladí s horským prostředím. Budova je kompletně zateplená, včetně nové střechy a plastových oken s trojskly. Podlahové vytápění ve všech bytech zajišťuje, že se v zimě budete cítit útulně a pohodlně. A to není vše. Některá bytová a střešní okna jsou vybavena elektricky ovládanými žaluziemi a markýzou, které vám umožní regulovat světlo podle vašich potřeb.
Ale co by byl domov bez bezpečí a pohodlí? Údolí Rejhotice nabízí dva venkovní bezbariérové prosklené výtahy, nabíjecí stanice pro elektroautomobily a elektrokola a parkovací místo ke každému bytu. A pro ty nejmenší je k dispozici dětské hřiště.
Představte si, jak se procházíte po okolí, obklopeni nádhernou přírodou, a poté se vracíte do svého útulného bytu, kde si můžete vychutnat klid a pohodlí. Ať už plánujete strávit den na sjezdovce, objevovat krásy Jeseníků na kole nebo pěšky, nebo si jen odpočinout a načerpat novou energii, Údolí Rejhotice je to pravé místo pro vás.
Projekt Údolí Rejhotice je místem, kde se můžete odpojit od stresu a shonu každodenního života a načerpat novou energii. Je to místo, kde můžete strávit kvalitní čas se svou rodinou, užívat si přírodu a klidu, a zároveň mít všechny moderní vymoženosti na dosah ruky.
Představte si, jak se probouzíte do nového dne, otevřete okno a nadechnete se čerstvého horského vzduchu. Poté se vydáte na procházku po okolí, kde můžete obdivovat nádherné výhledy na Jeseníky. Po návratu si můžete dopřát relaxaci v pohodlí svého bytu, nebo se vydáte na další dobrodružství.
Údolí Rejhotice je místem, kde můžete žít svůj život naplno. Je to místo, kde můžete najít rovnováhu mezi aktivním životním stylem a klidem a pohodou, které přináší život v přírodě. Je to místo, kde můžete být svobodní, žít své sny a těšit se z každého nového dne.
Vítejte v Údolí Rejhotice, místo, kde se vaše sny stávají skutečností.
Neodkládejte své sny na později. Objevte kouzlo Údolí Rejhotice a zažijte život v harmonii s přírodou. Kontaktujte nás ještě dnes a začněte psát svůj vlastní příběh v srdci Jeseníků.
- Vložení inzerátu:
18.6.2023
- Kód:
321
- Typ nemovitosti:
Byt
- Typ budovy:
Cihlová
- Dispozice:
1+kk
- Vlastnictví:
OV
- Podlaží:
3
- Podlahová plocha:
48 m2
- Stav objektu:
Novostavba
- Bezbariérový byt:
Ano
- Voda:
dálkový vodovod
- Doprava:
vlak, silnice
- Topeni:
ústřední plynové
- Odpad:
kanalizace
- Komunikace:
asfaltová
- Bezbariérový přístup:
Ano
- Nabídky v okolí: