• Sledovat cenu
  •  

Zasílání upozornění emailem:

Prodej bytu 2+kk, 40 m2 - Českobrodská 52, Praha (již není v nabídce)

Cena: 4 490 000 Kč
Stav:archiv
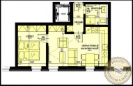
2+kk, 40 m2, cihlová, OV, 2. podlaží
Popis: V exkluzivním zastoupení majitele nabízíme k prodeji byt 2kk v novostavbě z roku 2017. K bytu náleží sklepní kóje 2m2 v suterénu domu a uzavřené venkovní parkovací stání. Jedná se o malý trojpatrový dům s 12 byty.... Byt má výbornou zvukovou izolaci a se prodává zařízený (viz. foto). Nabízený byt je vhodný k trvalému bydlení i jako investiční do pronájmu, v současné době v bytě bydlí velice slušní nájemníci a můžeme smlouvu převést (celková částka nájemné 18100, - kč). Dům se nachází na rozhraní Hrdlořez a Prahy 3. V okolí je dobře rozvinutá občanská vybavenost. Dobrá dopravní dostupnost do centra Prahy. Vedle domu se nachází velký Lidl, pošta, na zástavce «Spojovací» velký Kaufland. „Centrum zdravotní péče Jarov“ dvě zástavky od domu. V blízkosti domu se nachází několik parků plných zeleně (procházkové zóny kolem řeky Rokytka v přírodním parku Smetanka) .
Dispozice bytu: předsíň 3, 5 m2, koupelna se sprchovým koutem a sociální zařízení WC 4 m2, obývací pokoj o ploše 20 m2 s novou kuchyňskou linkou, a dvěma okna, ložnice s velkou posuvnou vestavěnou skříní se zrcadly a manželskou postelí. Byt nabízí dostatek úložného prostoru, stejně jako velké vestavěné a oddělené skříně. Celý byt je řešen velice komfortně, užitně a prakticky. Doporučujeme Vám prohlídku. Byt je možno financovat hypotékou, můžeme vám doporučit vynikajícího hypotečního specialistu. Pro více informací volejte makléřku nemovitosti. Cena je včetně provize.
  • Vložení inzerátu:
    2.7.2020
  • Kód:
    C5206
  • Typ nemovitosti:
    Byt
  • Typ budovy:
    Cihlová
  • Dispozice:
    2+kk
  • Vlastnictví:
    OV
  • Podlaží:
    2
  • Podlahová plocha:
    40 m2
  • Sklep:
    2 m2
  • Stav objektu:
    Novostavba
  • Rok výstavby:
    2017
  • Rok kolaudace:
    2017
  • Telekomunikace:
    Internet, Satelit, Kabelová televize, Kabelové rozvody
  • Voda:
    dálkový vodovod
  • Doprava:
    MHD
  • Topeni:
    ústřední plynové
  • Odpad:
    kanalizace
  • Komunikace:
    asfaltová
  • Zařízený:
    Ano
  • Energetická náročnost:
    C - Úsporná
  • Nabídky v okolí:
  • Informace o obci:
    Obec Praha má 1257158 obyvatel, z toho 889974 v produktivním věku.
    V obci se nachází pošta.
    V obci se nachází škola, popř. školka.
    V obci se nachází zdravotní zařízení.
    V obci je rozvod kanalizace.
    V obci je rozvod městské vody.
    V obci je rozvod plynu.

Podobné nabídky v okolí

Lokalita: Českobrodská 52, Praha, Česká republika Českobrodská 52, Praha