• Sledovat cenu
  •  

Zasílání upozornění emailem:

Prodej bytu 2+kk, 40 m2 - Praha (již není v nabídce)

Cena: 4 299 000 Kč
Stav:archiv
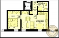
2+kk, 40 m2, cihlová, OV, 2. podlaží
Popis: V exkluzivním zastoupení majitele nabízíme k prodeji ubytovací jednotku 2+kk + venkovní parkovací stání + sklep v novostavbě z roku 2017. Dům se nachází na rozhraní Hrdlořez a P...rahy 3 s výbornou dopravní dostupností nejen do centra Prahy. Dům je nově postavený a zcela cihlový. Byt se prodává zařízený (viz. foto). Nabízený byt je vhodný také jako investiční do pronájmu. Dispozice bytu: předsíň 3, 5 m2, koupelna se sprchovým koutem a sociální zařízení WC 4 m2, obývací pokoj o ploše 20 m2 s novou kuchyňskou linkou a dvěma okna, ložnice s velkou posuvnou vestavěnou skříní se zrcadly a manželskou postelí. Celý byt je řešen velice komfortně, užitně a prakticky, nabízí dostatek úložného prostoru, stejně jako vestavěné a oddělené skříně. K bytu náleží venkovní parkovací stání (ve dvoře za uzavřenou branou) a sklepní kóje v suterénu. V okolí je dobře rozvinutá občanská vybavenost. Vedle domu se nachází Lidl, pošta, na zastávce «Spojovací» Kaufland. V blízkosti domu najdete několik parků plných zeleně (procházkové zóny kolem řeky Rokytka v přírodním parku Smetanka) . Byt je možné financovat hypotékou , můžeme vám doporučit vynikajícího hypotečního specialistu.
  • Vložení inzerátu:
    3.10.2020
  • Kód:
    C5206
  • Typ nemovitosti:
    Byt
  • Typ budovy:
    Cihlová
  • Dispozice:
    2+kk
  • Vlastnictví:
    OV
  • Podlaží:
    2
  • Podlahová plocha:
    40 m2
  • Sklep:
    2 m2
  • Stav objektu:
    Novostavba
  • Rok výstavby:
    2017
  • Rok kolaudace:
    2017
  • Umístění objektu:
    Centrum
  • Telekomunikace:
    Internet, Satelit, Kabelová televize, Kabelové rozvody
  • Voda:
    dálkový vodovod
  • Doprava:
    MHD, autobus
  • Topeni:
    ústřední plynové
  • Odpad:
    kanalizace
  • Komunikace:
    asfaltová
  • Zařízený:
    Ano
  • Energetická náročnost:
    C - Úsporná
  • Podle vyhlášky:
    c. 78/2013 Sb.
  • Nabídky v okolí:
  • Informace o obci:
    Obec Praha má 1257158 obyvatel, z toho 889974 v produktivním věku.
    V obci se nachází pošta.
    V obci se nachází škola, popř. školka.
    V obci se nachází zdravotní zařízení.
    V obci je rozvod kanalizace.
    V obci je rozvod městské vody.
    V obci je rozvod plynu.

Podobné nabídky v okolí

Lokalita: Praha, Česká republika Praha