• Sledovat cenu
  •  

Zasílání upozornění emailem:

Prodej bytu 1+kk, 27 m2 - Spolková, Brno, okr. Brno-město

Cena: 4 700 000 Kč
Stav:Volný
1+kk, 27 m2, cihlová, OV, 3. podlaží
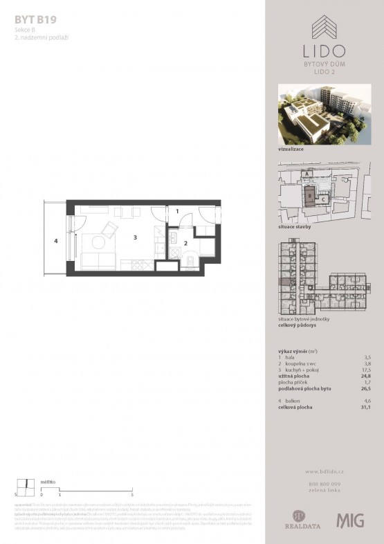
Popis: Ve výhradním zastoupení investora nabízíme k prodeji byt s dispozicí 1+kk s balkonem. Velmi hezký byt vzniká v novém projektu, který navazuje na úspěšnou první etapu. Byt je or...ientovaný do klidného vnitrobloku a splňuje vysoké nároky na klidné a komfortní bydlení. Koupě bytu je skvělou příležitostí pro startovací bydlení nebo výhodnou investicí. Bytový projekt vzniká v progresivní lokalitě s bohatou kulturní historií a výbornou dostupností do centra města. Jednou z mnoha předností projektu bude uzavřený vnitroblok plný zeleně, kde můžete trávit čas s dětmi nebo jen tak odpočívat. K bytu je možnost přikoupit parkovací stání.
Symbiózou nadstandardního zateplení, kvalitních oken, použitých stavebních materiálů a moderních technologií vytápění se podařilo projekt BD LIDO realizovat v energetické třídě A, což znamená mimořádnou úspornost!

Dispozice bytu:
vstupní chodba (3, 5 m²), obývací pokoj s kuchyňským koutem (17, 5 m²), koupelna s sociální zařízení WC (3, 8 m²), balkon (4, 6 m²)
  • Vložení inzerátu:
    9.6.2023
  • Kód:
    D/RSB/149/22-13
  • K dispozici od:
    0.0.0
  • Typ nemovitosti:
    Byt
  • Typ budovy:
    Cihlová
  • Dispozice:
    1+kk
  • Vlastnictví:
    OV
  • Podlaží:
    3
  • Podlahová plocha:
    27 m2
  • Balkón:
    5 m2
  • Stav objektu:
    Ve výstavbě
  • Energetická náročnost:
    A - Mimoˇrádne úsporná
  • Podle vyhlášky:
    c. 78/2013 Sb.
  • Ukazatel náročnosti:
    51 kWh/m2
  • Nabídky v okolí:
  • Informace o obci:
    Obec Brno má 371371 obyvatel, z toho 256490 v produktivním věku.
    V obci se nachází pošta.
    V obci se nachází škola, popř. školka.
    V obci se nachází zdravotní zařízení.
    V obci je rozvod kanalizace.
    V obci je rozvod městské vody.
    V obci je rozvod plynu.
Lokalita: Spolková , Brno, okres Brno-město, Česká republika Spolková, Brno, okr. Brno-město

Kontakt

Bc. Radek Hilšer


Podobné nabídky v okolí


Volná pracovní místa ExpertPrace.cz
  • Objednání prohlídky a více informací
  •  
  • Poslat na e-mail
  •  

Zasílání odkazu na realitu emailem: